3/CP3b Zespół mieszkalny - ul.Tyniecka 43

Transkrypt

3/CP3b Zespół mieszkalny - ul.Tyniecka 43
90
205
90
205
90
205
D3
hp=85
K.C.O.
okap
okap
D3
D3
D3
80
205
80
205
80
205
80
205
205
70
okap
hp=85
SZ1
235
150
90
235
235
150
235
150
235
90
235
150
150
235
90
235
90
235
235
150
235
150
235
90
150
235
150
150
10.99
D3
gA
150
235
3.00
hp=145
w63PE
4.44
235
wA
90
k150
eANN
D2
N
k250
10.99
D2
eANN
w90PE
wA
80
205
k250
2eANN
3.02
SZ1
k200
82.03
hp=85
g160PE
k250
3.50
4.40
k250
150
150
wA
w63PE
niecz.
wA
okap
3.50
5.52
D1
10.00
5.00 5.00
70
205
3.00
3.02
15.49
150
235
eANN
wA
eANN
D3
4.26
wA
82.03
hp=145
w160PE
10.49
20
5.
5
k200
3/CP3b/2 P.Pokój
2,92 m2 w.cem.
00
80
205
k4
150
235
tA
204.41
parking
20
4.39
k15k0 202.
eANN
ndo 02
zasy
p.
204.49
D2
eANN
m
eANN
204.
w 204.
69
204. 90
204.
w w
78
38
w
2eANN tA eANN
w110
kndo
PE niecz.
204.78
204.39
200.88
204.39
204.
85
204.
204.
96
80
204.37
204.51
203.73 20
5.18 20
4.
203.74
48
c
h.be
t. 204. 204.2
1
33
g
gA200
t
sw
aska
ul.Pr
dl. oko
ło 50
k600/9
00
ężnika
na
korekta
kraw
204.57
205.25
203.77
204.72 20
4.39
203.60
w
D2
206.09
206.35
206.08
eANN 206.30ch
.bet.
206.00
204.44
204,65
204.30
204,65
204.25
w
204.39
i2
204.24
wA
g
gA
eANN
k 204. 204.31
16
201.56 g
203.80
203.90
k204.36 k150
201.64
33/1
k
204.36
201.68
90
00
206.48
205.27
204.30
33/1
204.20
przebud
owywan
(służebno
a
ść przejadroga
zdu)
parkingi
realizow (do wspólnego
ane odręb
uż
ną proceytkowania)
durą
N
w 204.
39
205.67
203.67
k k250
90
150
/9
J
205.K
t
29
204.68
204,38
204,36
Trafo
90
235
00
k6
86
206.
H 27
205.
204,42
e
1.50 2.77
204.55
5.00 204,67
AA
204.30
bas.
204.40
235
59
6
7. 78
.6
2007. 3 206
2 .8
6
20
15.49
wA50
2eANN
204.860.75
204.70
204.25
204.33
hp=85
1500
5.14
205.00
7.35
i
k205.53
205.68
eANN
204.59
5.00
g
204.61 2eA
k 20
NN
osad 2.
205
81
.03
205.20
204,80
20
4.81
IV
A
mnpm
205.03
32/2
204.35
203.94
205.47
205.02
204.66
204.82
204.64 201.
204,85
k
81
203.70
w bud. PP
203.72
P=0,00=
202.83 =2
204.90
06,40
204.89
IV
PPP= 0,0
204.30
=206,40 0=
mnpm
IV
204.63
150
K.C.O.
hp=85
AA
0
7.
20
204.65
wA50
k200
ły
204.85
96
dr
6.
20
96
202.25
6.
G
20
30
32
7.
7.
20 .20
207.08
20 .34
7
7
204.96
20
F
56
20
7.
20
f.
67
as
7. 2
20 7.0 38
j.
20 7.
t
20
E
10MP
tA 204.59 D 205.
29
80
7.
205.81205.76
20
205.68
6
ka
ec
ni
Ty
71/2
is
o0Wmd0
f1a b
re
st
204.52
204,84
204.24
204.35
obrys ga
podziem raży
nych
k
k150
0204.56
k10 20
k
2.79
204.37 w w
201.62
w
204.30
204.40
wA
204.32
204.45
204.
205.2055
CP3b
204.61
k 203.06
k 204.60
201.43
eNN
wA
205.03
204.15
4.00
205.55
12580
IV
204.85
204.74
204.73
N
204.50 204.40
201.63
k
204.92
204.30
g 6.02
g
205.55
g
M
k
204.60
k150 20
N
2.
eAN
50 34
k2
wA
204.50
10 20 30 40 50 m
204.50
235
D9
obrys ga
podziem raży
nych
32/3
0.75
20
204,90
4.60 65
204.
204.70
205.95
4.27 5.00
204.93
13.99
PPP= 0,0
=206,40 0=
mnpm
IV
1.50
205.03
204.90
33.49
bet.
204.58
205.19
k
203.00
204.55
205.60
20
4.00
w 205.10
g
205.47
W1
204.69
204.83
6.85
204.98
PPP= 0,0
=206,40 0=
mnpm
204.71
204.75
205.04
205.14
eANN
g
O
g g
205.42
43
5.
20
N
eAN
k20
0
50
wA
eANN
g
204.87
C
IV
205.30
L
205.01
205,00
205.00
205.08205.25
PPP= 0,0
205.03
=206,40 0=
mnpm
205.30
205,18
g
205.21
33.49
PPP= 0,0
=205,80 0=
mnpm
C
g
obrys ga
204.81
podziem raży
nych
204.64
205.30
205.55
g
205.86
e
205.46
tA
gA
80
okap
205
21.86
g
205.21
206.65
206.72
206.03
206.00
3MP
206.02
g
18.39
P
g
R g
g
205.21
205.21
205.38 205. 205.42
83 205.
205.96
39
206.00
4.00
205.53
206.30
205
eANN .55
205.38
B
205.20
205.55
IV
206.45
PPP= 0,0
=206,95 0= g
mnpm
206.65
208.40
g
g15.49
g
00
205.53
went.mech.
E
205.01
B
i
206.70
205.90
206.53
208.15
206
208.15 .53
g
k2
205.50wA
205.46
k20
0
205.65
39
/1
205
D2
D2
i
213.15
w
łó
wya
op odległość
0dt
16,0 m od
f5oams
lasu
re
st
40/3
207.16
A
g
205.41
eANN
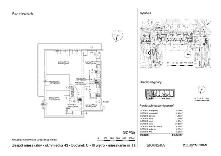
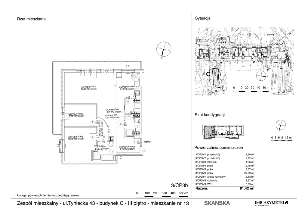
Zespół mieszkalny - ul.Tyniecka 43 - budynek C - III piętro - mieszkanie nr 13
g
N
eAN
N
eAN
N
eAN
205.77
205.73
80
81,42 m2
Razem:
3/CP3b
SZ1
SZ1
CP3a
W+G
CP2a
W2
150
D2
D2
8,76 m2
2,92 m2
4,96 m2
13,76 m2
9,67 m2
27,32 m2
8,13 m2
2,27 m2
3,63 m2
przedpokój
przedpokój
łazienka
pokój
pokój
pokój
aneks kuchenny
spiżarnia
WC
3/CP3b/1
3/CP3b/2
3/CP3b/3
3/CP3b/4
3/CP3b/5
3/CP3b/6
3/CP3b/7
3/CP3b/8
3/CP3b/9
60
90
206.30
g
D9
.0
obrys ga
podziem raży
nych
proj. furtka
208.50
206.75
16.00
NN
500cm
400
300
200
100
eA
K.C.O.
150
150
0
Uwaga: powierzchnie nie uwzględniają tynków
Powierzchnia pomieszczeń
3/CP3b/1 P.Pokój
8,76 m2 w.cem.
3/CP3b/3 Łaz.
4,96 m2 w.cem.
90
205
00
80
80
K.C.O.
K.C.O.
210
W3
W4
W3
k2
SZ1
60
90
D3
0
207.
205
205
80
205
80
205
CP3b
90
3/CP3b/4 Pokój
13,76 m2 w.cem.
204.5
CP2a
W+G
205
D3
80
80
205
5
0 3 6 9 12 m
150
90
W4
205
150
90
150
235
90
210
SZ1
SZ1
80
205
80
205
Rzut kondygnacji
3/CP3b/9 WC
3,63 m2 w.cem.
3/CP3b/5 Pokój
9,67 m2 w.cem.
5
ni
w65ePcz.
E wA
3/CP3b/8 Spiż.
2,27 m2 w.cem.
150
235
7.
20
205
0
8.
20
eANN
eANN
0
0
205.0
3/CP3b/7 Aneks kuch.
8,13 m2 w.cem.
3/CP3b/6 Pokój
27,32 m2 w.cem.
8.
20
C
hp=85
9.
20
proj. ścież
łączącej ka rowerowa
do
z leśną śc
ieżką furtki
Sytuacja
Rzut mieszkania
4.05
N