2000A_10 Kosz do koszykówki - na mokro

Transkrypt

2000A_10 Kosz do koszykówki - na mokro
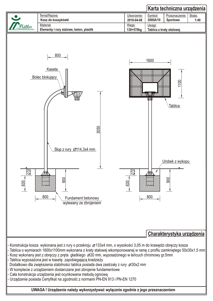
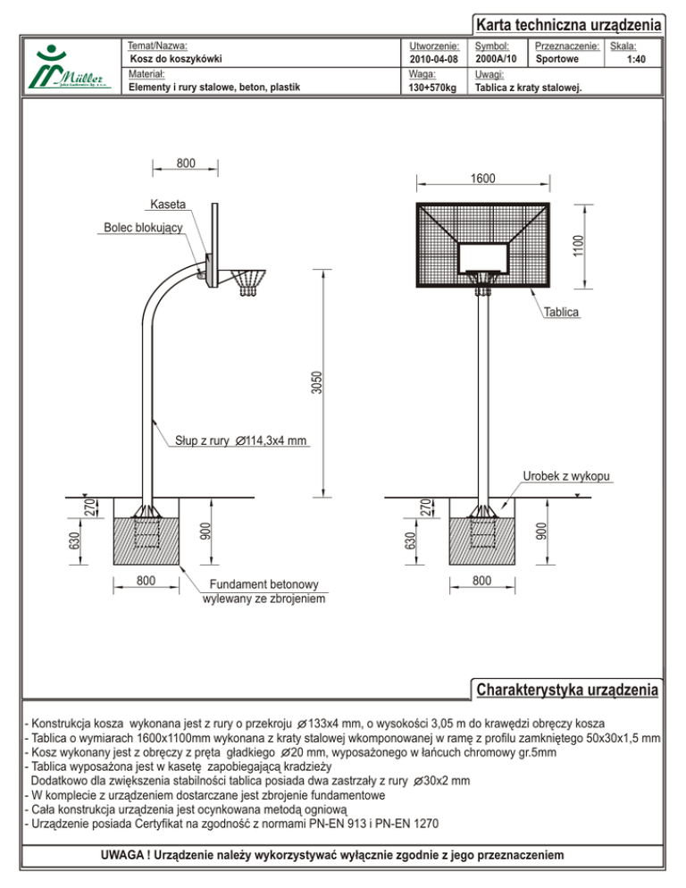
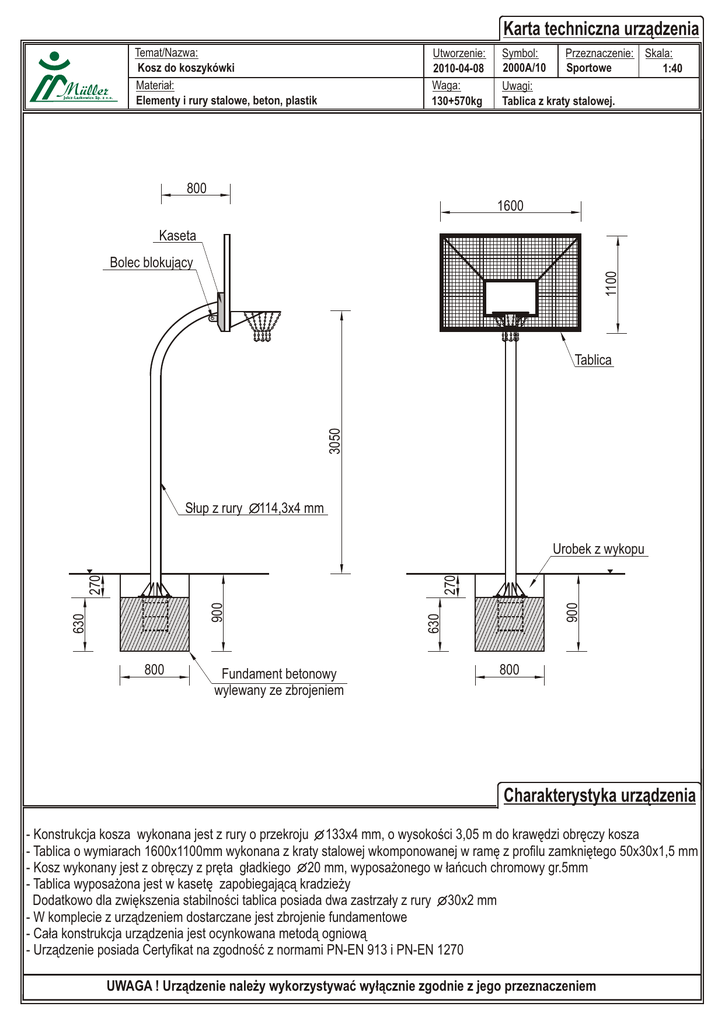
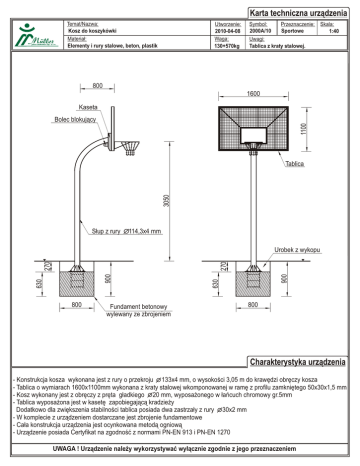
Karta techniczna urz¹dzenia
Temat/Nazwa:
Kosz do koszykówki
Materia³:
Elementy i rury stalowe, beton, plastik
Utworzenie:
2010-04-08
Waga:
130+570kg
Przeznaczenie: Skala:
Symbol:
2000A/10
Sportowe
1:40
Uwagi:
Tablica z kraty stalowej.
800
1600
Kaseta
1100
Bolec blokuj¹cy
3050
Tablica
S³up z rury
114,3x4 mm
Fundament betonowy
wylewany ze zbrojeniem
900
270
800
630
630
900
270
Urobek z wykopu
800
Charakterystyka urz¹dzenia
- Konstrukcja kosza wykonana jest z rury o przekroju 133x4 mm, o wysokoœci 3,05 m do krawêdzi obrêczy kosza
- Tablica o wymiarach 1600x1100mm wykonana z kraty stalowej wkomponowanej w ramê z profilu zamkniêtego 50x30x1,5 mm
- Kosz wykonany jest z obrêczy z prêta g³adkiego 20 mm, wyposa¿onego w ³añcuch chromowy gr.5mm
- Tablica wyposa¿ona jest w kasetê zapobiegaj¹c¹ kradzie¿y
Dodatkowo dla zwiêkszenia stabilnoœci tablica posiada dwa zastrza³y z rury 30x2 mm
- W komplecie z urz¹dzeniem dostarczane jest zbrojenie fundamentowe
- Ca³a konstrukcja urz¹dzenia jest ocynkowana metod¹ ogniow¹
- Urz¹dzenie posiada Certyfikat na zgodnoœæ z normami PN-EN 913 i PN-EN 1270
UWAGA ! Urz¹dzenie nale¿y wykorzystywaæ wy³¹cznie zgodnie z jego przeznaczeniem