AW3

Transkrypt

AW3
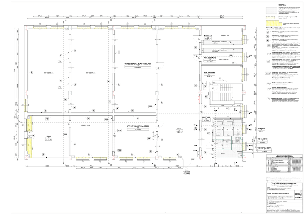
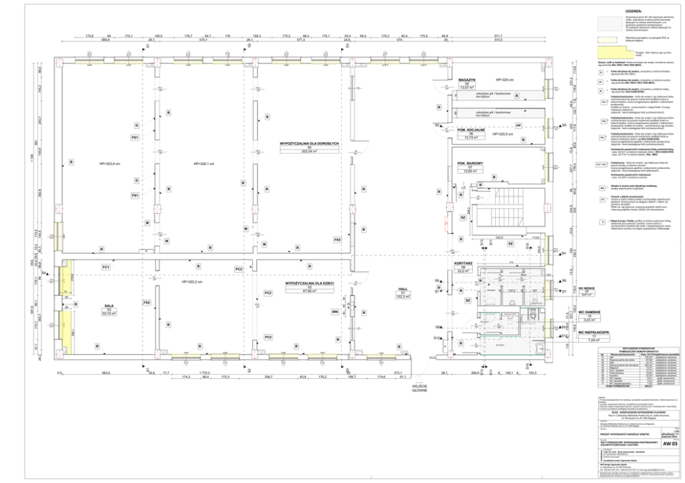
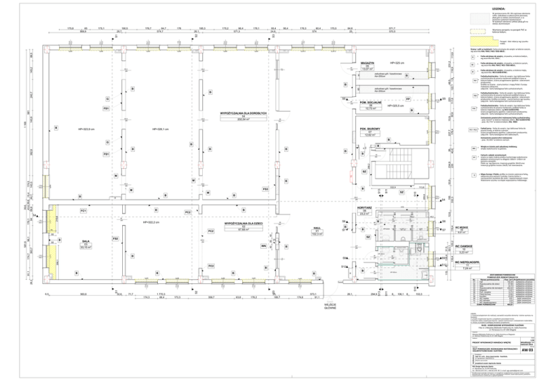
LEGENDA:
W pomieszczeniu 05 i 06 częściowe obniżenie
sufitu. Zabudowa w płaszczyźnie pionowej
płytą g/k na stelażu aluminiowym, a w
poziomie systemem kasetonowym.
W toaletach obniżenie sufitów płytą g/k na
stelażu aluminiowym
175,1
190,5
176,7
28,7
64,7
574,7
176
185,3
175,2
26,1
66,4
571,3
176,1
93,4
24,6
95,4
176,3
60,4
574
175,5
84,8
25
571,7
570,5
Wymiana parapetu na parapet PVC w
kolorze białym;
175,1
172,2
176,7
173,4
176
174,05
175,2
173,2
176,1
174,2
176,3
173
175,5
173,5
hp 89
hp 89
hp 89
hp 89
hp 89
hp 89
hp 87,6
hp 87,6
Parapet - blat roboczy wg rysunku
mebli;
hp 145
60
zabudowa g/k / kasetonowa
Hs=300cm
116,9
143
240,7
B
Farba akrylowa do wnętrz, zmywalna, w kolorze białym,
wg wzornika RAL 9003 ;
SZ
Farba akrylowa do wnętrz, zmywalna, w kolorze szarym,
wg wzornika RAL 7043 / NCS 7202-B81G ;
Farba akrylowa do wnętrz, zmywalna, w kolorze mięty,
wg wzornika NCS S1030-B70G ;
M
B
zabudowa g/k / kasetonowa
Hs=300cm
60
B
B
48,5
122,1 1,9
90
200
146,8
250
hp 0
145,2
280
231,2
116,9
88,5
145,2
145,2
280
HP=325 cm
MAGAZYN
05
13,07 m2
B
FarbaSuchościeralna - farba do wnętrz, typ tablicowa farba
suchościeralna do pisania markerami podklad ściany w
kolorze białym, ściana przygotowana zgodnie z zaleceniami
producenta;
Grafika na ścianie - czarny kontur z mapą Polski i Europy
malowany odręcznie.
załącznik - karta katalogowa farb suchościeralnych;
FS1
FarbaSuchościeralna - farba do wnętrz, typ tablicowa farba
suchościeralna do pisania markerami podkład ściany w
kolorze białym, ściana przygotowana zgodnie z zaleceniami
producenta; Grafika na ścianie - czarne kontury wg rysunku.
załącznik - karta katalogowa farb suchościeralnych;
S5
FP
POM. SOCJALNE
06
12,73 m2
HP=323,9 cm
FarbaSuchościeralna - farba do wnętrz, typ tablicowa farba
suchościeralna do pisania markerami, podkład farba w
kolorze miętowej zieleni, wg NCS S1030-B70G
ściana przygotowana zgodnie z zaleceniami producenta;
załącznik - karta katalogowa farb suchościeralnych;
FS3
15,9
93,6
B
POK. BIUROWY
07
12,62 m2
HP=326,1 cm
Zestawienie powierzchni malowanej farbą suchościeralną:
- pow. 8,01m2 w kolorze miętowej zieleni, NCS S1030-B70G
- pow. 43,77m2 w kolorze białym, RAL 9003
176,4
205,6
FarbaCzarna - farba do wnętrz, typ tablicowa farba do
pisania kredą, w kolorze czarnym
ściana przygotowana zgodnie z zaleceniami producenta;
załącznik - karta katalogowa farb tablicowych;
FC1 / FC2
Zestawienie powierzchni malowanej:
- pow. 33,10m2 w kolorze czarnym
B
G
B
B
B
B
B
80
200
Fartuch z płytek ceramicznych
ściana w części mokrej aneksu kuchennego wykończona
płytkami ceramicznymi na długości 300cm i 140cm od
poziomu posadzki.
Płytki np. wg Opoczno, Inwencja graphite 10x10 oraz
Inwencja graphite mosaic 20x20, lub równoważne.
FP
298,2
FS1
Wnęka w ścianie pod zabudowę meblową;
wnęka wykończona na gotowo.
WN
26
40,6
B
234,9
235
B
362,8
HP=325,5 cm
96
200
90
200
B
146,8
280
S5
227,7
176,4
145,9
280
WYPOŻYCZALNIA DLA DOROSŁYCH
04
202,04 m2
117,8
143
hp 85
145,9
981
FS1
hp 145
G
223
117,8
FS2
90
200
1 168
Ściany i sufit w toaletach: Farba emulsyjna do wnętrz w kolorze szarym,
wg wzornika RAL 7043 / NCS 7202-B81G ;
113,6
175,8
173,4
S3
S2
65
569,9
S1
175,8
SZ
53,9
40
173,3
63,8
176,2
25
185,7
hp 85
193
332,3
12,6
S7
174,6
S9
WC MĘSKIE
09
8,61 m2
8
H
90
200
WC DAMSKIE
10
3,23 m2
WC NIEPEŁNOSPR.
11
7,24 m2
115
B
116,4
hp 145
116,4
143
S12
HP=300cm
hp 85
ZESTAWIENIE POWIERZCHNI
POMIESZCZEŃ REMONTOWANYCH
Nr.
573,1
91,1
26,1
WEJŚCIE
GŁÓWNE
294,9
S10
S3
358,7
80
200
174,6
173
175,6
173
173,3
173
1 770,3
66,4
90
200
S12
hp 85
116,4
143
8
106,1
8
153,3
01
02
03
04
05
06
07
08
09
10
11
Nazwa pomieszczenia
Hall
Wypożyczalnia dla dzieci
Sala
Wypożyczalnia dla dorosłych
Magazyn
Pom. socjalne
Pokój biurowy
Korytarz
WC męskie
WC damskie
WC niepełnosprawny
SUMA POWIERZCHNI
Pow. [m2] Projektowana posadzka
102,30
67,68
33,15
202,04
13,07
12,73
12,62
23,20
8,61
3,23
7,24
485,87
wykładzina winylowa
wykładzina winylowa
wykładzina winylowa
wykładzina winylowa
wykładzina winylowa
wykładzina winylowa
wykładzina winylowa
wykładzina winylowa
płytki ceramiczne
płytki ceramiczne
płytki ceramiczne
UWAGI:
1. Przed przystapieniem do realizacji, sprawdzić wszystkie elementy i istotne wymiary na
budowie.
2. projekt rozpatrywać łącznie z projektami pozostałych branż.
3. Rysunki należy rozpatrywać łącznie z opisem technicznym i zestawieniem materiałów.
4. Zmiany w projekcie podlegają akceptacji projektanta.
BLOG - KOMPLEKSOWE WYPOSAŻENIE PLACÓWKI
Filia nr 2 Miejskiej Biblioteki Publicznej im. Galla Anonima
ul. Perseusza 13, 67-200 Głogów
Inwestor
Miejskia Biblioteka Publiczna im. Galla Anonima w Głogowie
ul. Jedności Robotniczej 15, 67-200 Głogów
Skala
Stadium
PROJEKT WYKONAWCZY ARANŻACJI WNĘTRZ
1:50
aktualizacja Data
kwiecień 2015
Nr rys.
Rysunek
RZUT POMIESZCZEŃ. ROZWIAZANIA MATERIAŁOWE I
KOLORYSTYCZNE ŚCIAN I SUFITÓW.
Architektura
174,3
hp 85
127
116,4
8
zabudowa h=140cm
S9
146
250
B
S2
71,7
205,8
S10
127,2
31,5
531,1
120,2
227
280
B
hp 85
174,3
173
S1
8
zabudowa H=140cm
B
hp 0
266,1
91,1
hp 85
28,2
HP=300cm
S6
SZ
B
B
32,6
B
HP=300cm
FC2
563,6
B
48,2
20
B
B
6,5
50
WN
hp 85
174,7
393,7
423,8
250
176,2
173
581,6
96,1
174,7
200,7
SALA
03
33,15 m2
FS2
90
200
B
S7
HALL
01
102,3 m2
S4
138,4
FC2
S6
96
200
WYPOŻYCZALNIA DLA DZIECI
02
67,68 m2
262,2
80
200
80
200
hp 145
HP=322,2 cm
55
B
S11
8
90
200
176,4
205,6
412
KORYTARZ
08
23,2 m2
B
FC2
70
55
SZ
przewijak dla
niemowląt składany
218,6
176,1
203,1
hp 85
176,1
94
B
113,6
225,2
280
H
FC1
S4
B
S11
B
M
B
S13
39,6
43,6 39,6 15,4
66,8
44,7
M
332,9
B
FS3
S13
hp 86
174,5
204,4
B
146,6
280
40
174,5
143,5
M
143,5
280
Mapa Europy i Polski, grafika na ścianie wykonana farbą,
odręcznie przy pomocy rzutnika. Czarny kontur z
zaznaczeniem punktów dla stolic i najważniejszych miast.
Wykonanie rysunku na etapie wyposażenia meblowego.
G
TG
M
AW 03
Projektant
mgr inż. arch. Anna Jaworowska - Swarbuła,
nr uprawnień 196/DOŚ/12
Wnętrza opracowała
projektant wnętrz Agnieszka Opiela
REA Design Agnieszka Opiela
ul. Ogrodowa 5a, 55-093 Kiełczów,
tel. +48 501 874 747 / +48 501 874 787 / e-mail: [email protected]
Wszelkie prawa autorskie zastrzeżone, ze szczególnym uwzględnieniem przepisów Ustawy o prawie
autorskim (Dz.U.Nr 34/52 poz. 234 wraz z późniejszymi zmianami). każde wykorzystanie, powielanie i
rozpowszechnianie możliwe jest za zgodą Projektanta.