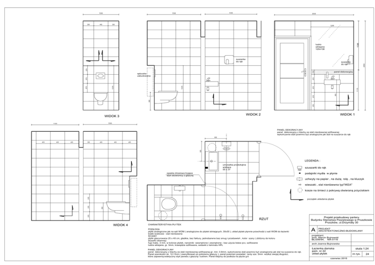
rzut widok 2 widok 1 widok 3 widok 4 - BIP

Transkrypt

rzut widok 2 widok 1 widok 3 widok 4 - BIP
100
40
222
30
120
138
30
145
150
lustro
wklejane
120x138
suszarka
do rąk
13
25
25
panel dekoracyjny
25
50
25
85
113
25
125
25
125
25
spłuczka
zabudowana
250
suszarka
do rąk
WIDOK 2
WIDOK 3
WIDOK 1
150
133
PANEL DEKORACYJNY
panel dekoracyjny z blachy ze stali nierdzewnej szlifowanej
wykończenie stali powinno być analogiczne jak stal na suszarce do rąk
60
40
40
40
55
30
LEGENDA :
umywalka prostokątna
wisząca
55 x 37
szuszarki do rąk
podajniki mydła w płynie
opaska drzwiowa kryjąca
styk ościerznicy z glazurą
uchwyty na papier , na dużą rolę , na kluczyk
wieszaki , stal nierdzewna typ"IKEA"
kosze na śmieci z pokrywą otwieraną przyciskiem
25
początek układania płytek
50
40
25
40
25
40
RZUT
WIDOK 4
Projekt przebudowy parteru
Budynku Starostwa Powiatowego w Pruszkowie
Pruszków, ul.Drzymały 30
CHARAKTERYSTYKA PŁYTEK
PODŁOGA
płytki analogiczne jak na sali WOM ( analogiczne do płytek istniejących, 30x30 ), układ płytek płynnie przechodzi z sali WOM do łazienki
kratki ściekowe - stal nierdzewna
ŚCIANY
płytki glazurowane 25 x 40 cm, gładkie, bez faktury, jednobarwne bez smug i przebawień , kolor szary ( zbliżony do koloru
ślusarki okiennej)
fugi maks. 3 mm, w kolorze płytek, narożniki wewnętrzne i zewnętrzne - bez użycia listew pcv, szlifowane
lustra wklejane, gr. 5mm, krawędzie szlifowane, wstawki z laminatu HPL
PANEL DEKORACYJNY
panel dekoracyjny z blachy ze stali nierdzewnej szlifowanej gr. min. 0.8mm, wykończenie stali powinno być analogiczne jak stal na suszarce do rąk.
Panel szerokości ok. 12-13cm ( zweryfikować po położeniu glazury ), panel powinien posiadać ranty sze. 5mm wzdłuż swojej długości,
które zapewnią estetyczny styk panela z glazurą i lustrem. Panel klejony do podłoża na płycie g-k
A
PROJEKT
ARCHITEKTONICZNO-BUDOWLANY
projektant:
arch. Marcin Bujnowski
BŁ/299/94, MA-0118
arch.Joanna Bujnowska
Łazienka damska
pom. nr 22
układ płytek
czerwiec 2015
skala 1:24
nr.rys.
24