PW_S_03_studnia rewizyjna.DWG

Transkrypt

PW_S_03_studnia rewizyjna.DWG
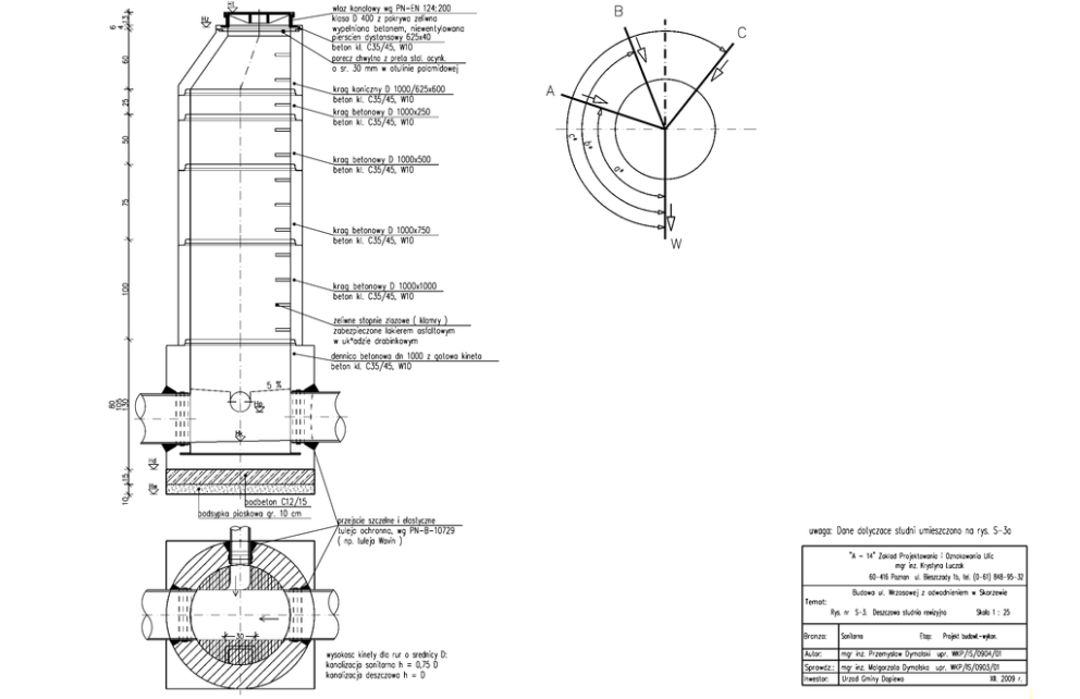
wlaz kanalowy wg PN-EN 124:200
B
klasa D 400 z pokrywa zeliwna
Hz
4
6
13
Ht
wypelniona betonem, niewentylowana
pierscien dystansowy 625x40
C
60
beton kl. C35/45, W10
porecz chwytna z preta stal. ocynk.
o sr. 30 mm w otulinie polamidowej
krag koniczny D 1000/625x600
A
25
beton kl. C35/45, W10
krag betonowy D 1000x250
beton kl. C35/45, W10
b*
50
c*
krag betonowy D 1000x500
75
a*
beton kl. C35/45, W10
krag betonowy D 1000x750
100
beton kl. C35/45, W10
W
krag betonowy D 1000x1000
beton kl. C35/45, W10
zeliwne stopnie zlazowe ( klamry )
zabezpieczone lakierem asfaltowym
w uk*adzie drabinkowym
dennica betonowa dn 1000 z gotowa kineta
beton kl. C35/45, W10
80
105
130
5%
Hp
Hk
15
Hd
10
Hw
podbeton C12/15
podsypka piaskowa gr. 10 cm
przejscie szczelne i elastyczne
tuleja ochronna, wg PN-B-10729
uwaga: Dane dotyczace studni umieszczono na rys. S-3a
( np. tuleja Wavin )
"A - 14" Zaklad Projektowania i Oznakowania Ulic
mgr inz. Krystyna Luczak
60-416 Poznan ul. Bieszczady 1b, tel. (0-61) 848-95-32
Budowa ul. Wrzosowej z odwodnieniem w Skorzewie
Temat:
Rys. nr S-3. Deszczowa studnia rewizyjna
Branza:
Sanitarna
wysokosc kinety dla rur o srednicy D:
Autor:
mgr inz. Przemyslaw Dymalski upr. WKP/IS/0904/01
kanalizacja sanitarna h = 0,75 D
Sprawdz.:mgr inz. Malgorzata Dymalska upr. WKP/IS/0903/01
30
kanalizacja deszczowa h = D
Inwestor:
Urzad Gminy Dopiewo
Etap:
Skala 1 : 25
Projekt budowl.-wykon.
XII. 2009 r.