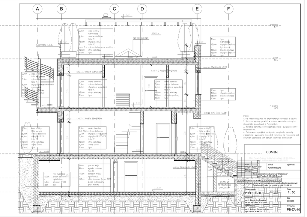
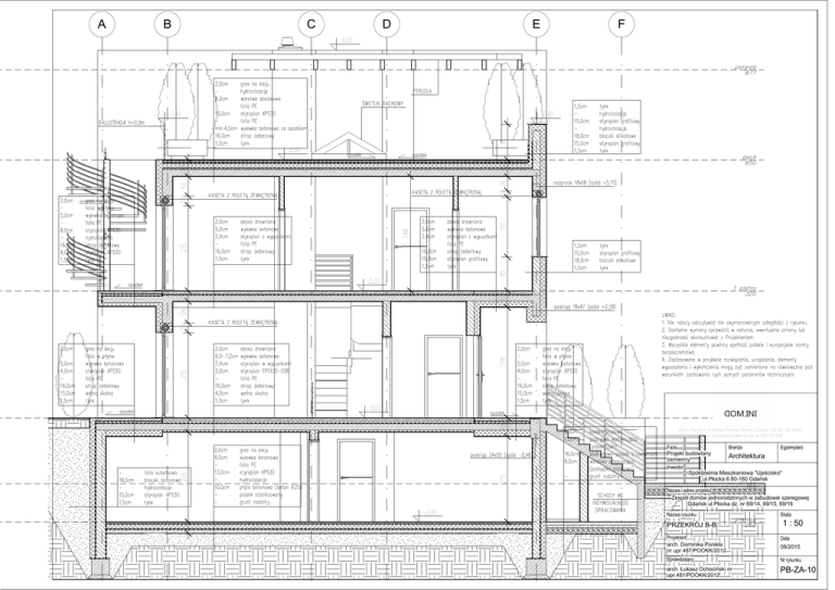
przekrój

Transkrypt

przekrój
A
B
C
D
E
F
9,26
pergola
877
6,50
PERGOLA
ŚWIETLIK DACHOWY
90
spadek
spadek
deska drewniana
wylewka betonowa
styropian z wypustkami
folia PE
strop żelbetowy
tynk
2,0cm
5,0cm
2,4cm
16,0cm
15,0cm
1,5cm
deska drewniana
wylewka betonowa
styropian z wypustkami
folia PE
strop żelbetowy
styropian grafitowy
tynk
1,5cm
15,0cm
18,0cm
1,5cm
85
288
2,0cm
5,0cm
2,4cm
16,0cm
1,5cm
42
27
1 piętro
320
2,0cm
6,0-7,0cm
2,4cm
2,0cm
16,0cm
4,0cm
1,5cm
deska drewniana
wylewka betonowa
styropian w wypustkami
styropian EPS100-038
folia PE
strop żelbetowy
wełna skalna
tynk
0,00
48
gres na kleju
wylewka betonowa
folia PE
styropian XPS30
hydroizolacja
płyta betonowa (beton B25)
piasek stabilizowany
grunt rodzimy
podciąg 24x50 (spód -0,48)
215
2,0cm
4,0cm
13,0cm
10,0cm
-
-2,62
29
2,0cm
5,0cm
4,0cm
16,0cm
15,0cm
1,5cm
gres na kleju
folia w płynie
wylewka betonowa
styropian XPS30
folia PE
strop żelbetowy
wełna skalna
tynk
spadek
37
226
folia kubełkowa
bloczki betonowe
hydroizolacja
styropian XPS30
tynk
UWAGI:
1. Nie należy odczytywać nie zwymiarowanych odległości z rysunku.
2. Dokładne wymiary sprawdzić w naturze, ewentualne zmiany lub
niezgodności skonsultować z Projektantem.
3. Wszystkie elementy powinny spełniać polskie i europejskie normy
bezpieczeństwa.
4. Zastosowane w projekcie rozwiązania, urządzenia, elementy
wyposażenia i wykończenia mogą być zamienione na równoważne pod
warunkiem zachowania tych samych parametów technicznych.
KASETA Z ROLETĄ ZEWNĘTRZNĄ
278
24
54
podciąg 18x47 (spód +2,58)
spadek
18,0cm
15,0cm
1,5cm
tynk
styropian grafitowy
bloczki silikatowe
tynk
3,20
215
gres na kleju
folia w płynie
wylewka betonowa
styropian XPS30
folia PE
strop żelbetowy
wełna skalna
tynk
dach
650
43
KASETA Z ROLETĄ ZEWNĘTRZNĄ
KASETA Z ROLETĄ ZEWNĘTRZNĄ
spadek
2,0cm
5,0cm
4,0cm
16,0cm
15,0cm
1,5cm
tynk
hydroizolacja
styropian grafitowy
hydroizolacja
bloczki silikatowe
styropian grafitowy
tynk
nadproże 18x18 (spód +5,71)
17 36
49
24
gres na kleju
folia w płynie
wylewka betonowa
folia PE
styropian XPS30
hydroizolacja
strop żelbetowy
styropian XPS30
tynk
215
2,0cm
5,0cm
8,0cm
16,0cm
8,0cm
1,5cm
1,5cm
15,0cm
18,0cm
15,0cm
1,5cm
7,40
43
BALUSTRADA h=0,9m
gres na kleju
hydroziolacja
warstwa dociskowa
folia PE
styropian XPS30
folia PE
wylewka betonowa ze spadkiem
strop żelbetowy
tynk
150
7,40
2,0cm
4,0cm
15,0cm
min.4,0cm
16,0cm
1,5cm
parter
0
8,0cm
6,0cm
16,0cm
8,0cm
-
kostka brukowa
podsypka wyrównująca
(piasek/żwir)
podbudowa-piasek z cementem
warstwa odsączająca
(podsypka piaskowa)
grunt rodzimy
SCHODY WG
INDYWIDUALNEGO
OPRACOWANIA
DOM.ini Pracownia Projektowa Dominika Ponikła ul.Elewów 1/21 80-298 Gdańsk
e-mail: [email protected] tel.608-310-838
Faza
Branża
Egzemplarz
Projekt budowlany
Architektura
zamienny
Inwestor
Spółdzielnia Mieszkaniowa "Ujeścisko"
ul.Płocka 6 80-180
Gdańsk
droga
-165
Nazwa i adres projektu
Zespół domów jednorodzinnych w zabudowie szeregowej
Gdańsk ul.Płocka dz. nr 69/14, 69/15, 69/16
Nazwa rysunku
PRZEKRÓJ B-B
piwnica
-262
Skala
1 : 50
Projektant
arch. Dominika Ponikła
nr upr 487/POOKK/2012
Data
09/2015
Sprawdzający
Nr rysunku
arch. Łukasz Ochociński nr
upr.481/POOKK/2012
PB-ZA-10