Slowianska 88 91

Transkrypt

Slowianska 88 91
143
27
11
27
182
Garderoba
1,87 m2
27
3,29 m2
9,84 m2
312
Pokój
12,73 m2
11
228
15
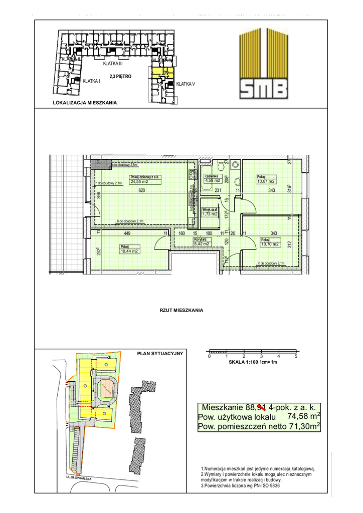
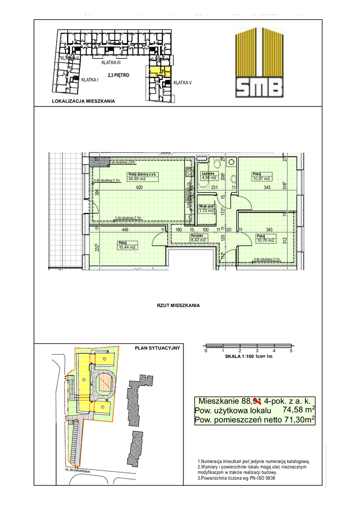
KLATKA V
103
rekuper.
200
Kuchnia
8,68 m2
11
Wnęk.szaf
364
11
1,40 m2
LOKALIZACJA MIESZKANIA
Pokój dzienny
3885
Pokój
315
6075
lodowka
11
2,3 PIĘTRO
408
KLATKA I
335
Korytarz
KLATKA IV
KLATKA III
15
Łazienka
PK
PK
KLATKA II
10,20 m2
300
27
27
141
1915
27
27
282
2385
27
2055
3135
12,85 m2
19,16 m2
Łazienka
4,45 m2
408
15
224
15
478
4,59 m2
h do obudowy 2,1m
24,55 m2
Wnęk.szaf
11
160
11 120
Korytarz
2325
27
100
15
8,42 m2
Pokój
343
11
1,73 m2
1725
449
11
120 11
11
h do obudowy 2,1m
10,87 m2
231
15
15
lodowka
396
620
Pokój
2085
Łazienka
Pokój dzienny z a.k.
h do obudowy 2,1m
11
343
Pokój
10,70 m2
27
PK
rekuper.
h do obudowy 2,1m
27
27
1125
10,44 m2
27
2 679
3165
h do obudowy 2,5m
312
rekuper.
27
27
PK
15
27
181
195
285
RZUT MIESZKANIA
295
11
2 0715
4,24 m2
225
15
292
26,66 m2
Łazienka
246
2935
8,90 m2
246
lo dowka
188 5
Korytarz
Kuchnia
Korytarz
10,48 m2
PLAN SYTUACYJNY
350
11
171
27
38
143
0
15
1
2
3
4
180
285
SKALA 1:100 1cm= 1m
5
rekuper.
lodowka
P
L
V
11
27
V
27
2995
415
12,43 m2
Pokój
C
Z
A
B
A
10,01 m2
W
27
Pokój
11,00 m2
210
11
440
Mieszkanie
88,91
4-pok. z a. k.
Pow. użytkowa lokalu 74,58 m2
Pow. pomieszczeń
netto 71,30m2
Pokój
11
V
11
11
10,01 m2
2275
5735
3145
12,02 m2
2275
A
Kuchnia
Korytarz
21,71 m2
1.Numeracja mieszkań jest jedynie numeracją katalogową.
2.Wymiary i powierzchnie lokalu
mogą ulec nieznacznym
Pokój dzienny
16,18budowy.
m2
modyfikacjom w trakcie realizacji
4,37 m2
3.Powierzchnia
liczona wg PN-ISO
206
15
440 9836
Łazienka
ŃS KA
532
27
387
UL.SŁOWIA
15
385
Pokój dzienny