C:\Dokumenty\AUTOCAD\Czernikowo\Rysunki_do_projektu

Transkrypt

C:\Dokumenty\AUTOCAD\Czernikowo\Rysunki_do_projektu
9
2
7
2
1
2
sala spotkań ze sceną
na 80 osób
podłoga drewniana
istniejąca
15
schowek podr.
20
25
25
0.00
(98.05)
20
25
25
5.6 m panele laminowane
4
Kr.7
20
20
magazyn śr. czystości
2
31.5 m
8
Kr.6
2.6 m płytki cer.
50
i=4%
O4
7
HW25
Hydrant HP-25
140 + 33 = 173 m
płytki ceramiczne
sanit.dla mężczyzn
Kr.2
20
Kr.5
2
20
20
20
90
180
6
8.5 m
2
schowek materiałowy
panele laminowane
K
szatnia użytkowników
160 i=4%
panele laminowane
Kr.8
2
12 13
4
19.7 m
2 N / 210
2 N / 150
- 0.18
A
rozbiórka dobudówki
SKALA 1 : 100
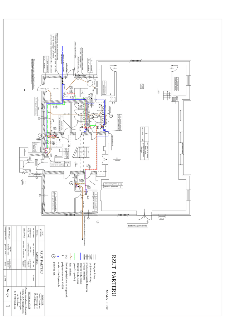
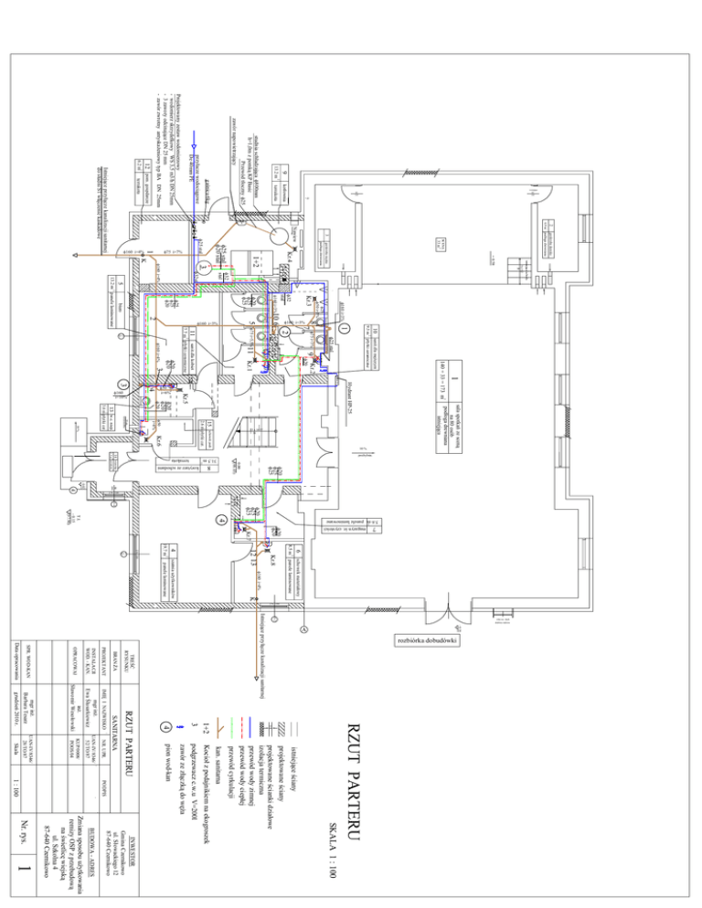
RZUT PARTERU
istniejące ściany
projektowane ściany
projektowane ścianki działowe
izolacja termiczna
przewód wody zimnej
przewód wody ciepłej
przewód cyrkulacji
Kocioł z podajnikiem na ekogroszek
kan. sanitarna
1+2
podgrzewacz c.w.u V=200l
korytarz ze schodami
terrakota
INSTALACJI
WOD. - KAN.
PROJEKTANT
inż.
Sławomir Wesołowski
mgr inż.
Ewa Ślusarkiewicz
IMIĘ I NAZWISKO
Skala
UAN-IV/8346/
28/TO/87
KUP/0008/
POOS/04
UAN-IV/8346/
52/TO/87
NR. UPR.
1 : 100
PODPIS
zawór ze złączką do węża
3
pion wod-kan
OPRACOWAł
mgr inż.
Barbara Tesarz
2
Nr. rys.
1
Zmiana sposobu użytkowania
remizy OSP z przebudową
na świetlicę wiejską
ul. Szkolna 4
87-640 Czernikowo
BUDOWA - ADRES
Gmina Czernikowo
ul. Słowackiego 12
87-640 Czernikowo
INWESTOR
4
RZUT PARTERU
SPR. WOD-KAN
grudzień 2010 r.
SANITARNA
Data opracowania
BRAN ŻA
TREŚĆ
RYSUNKU
Istniejące przyłącze kanalizacji sanitarnej
O2
właz na dach
drabina stalowa
garderoba damska
5x15.2
30
2
9
4
wiatrołap
2 N / 120
istniejące schody
+ 0.58
10
25 stal
75 i=3%
9.3 m
1
7
21
2
3.5 m terrakota
14
pochylnia.
2
33 m2
160 i=3%
8
2
11 Kr.1
sanit.dla kobiet
75 i=5,5%
2
3
50 cm
nad posadzką
w.c. niep.
T.I.
- 0.15
(97.90)
12
SCENA
garderoba męska
25
50 i=3%
Kr.3
5
11
160 i=4%
20
20
7.7 m płytki ceramiczne
2 N / 210
3
2
10 %.
6.9 m podłoga drewniana
3
podłoga drewniana
Nawiew
Kr.4
160 i=3%
32
stal
2
10 6
terrakota
biuro
25
25
20
20
25
25
kotłownia
32st.
160 i=4%
3
1+2
25stal
20 stal
25 stal
1
K
5
13
3.6 m płytki cer.
- 0.02
4
34
13.2 m
studnia schładzająca 800mm
h=1,0m z pomką KP Basic
Przewód tłoczny 25
gaśnica 6kg
terrakota
pom. gospdarcze
Projektowany zestaw wodomierzowy
- wodomierz skrzydełkowy WS 3,5 m3/h DN 25mm
- 3 zawory odcinające DN 25 mm
- zawór zwrotny antyskażeniowy typ BA DN 25mm
przyłacze wodociągowe
De 40mm PE
zawór napowietrzający
32
stal
2
13.2 m panele laminowane
15 x 16.57
30
10 %.
O1
50
i=6%
160
i=10%
12
2
6.2 m
Istniejące przyłącze kanalizacji sanitarnej
do studni S1 włączenie kaskadowe
O1
75 i=7%
160 i=4%
160 i=3%
160 i=3%
istniejące
82
192
82
192