Przykładowe schematy instalacji

Transkrypt

Przykładowe schematy instalacji
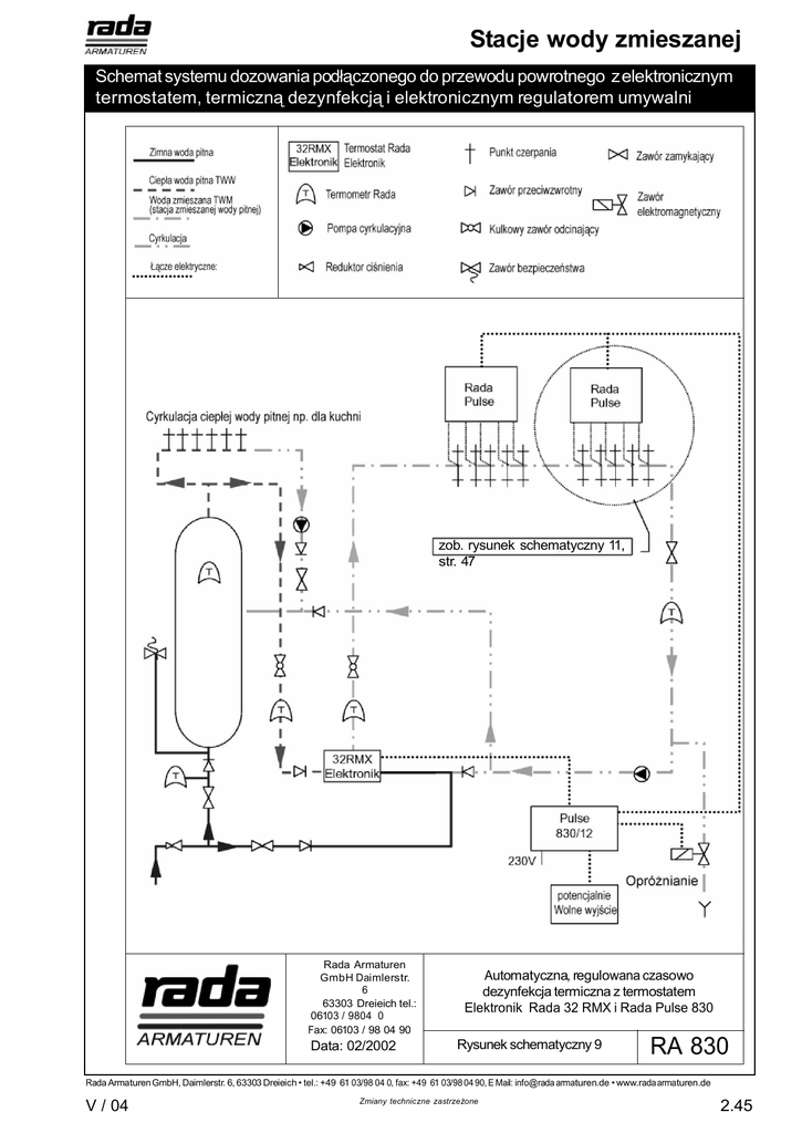
Stacje wody zmieszanej
Schemat systemu dozowania pod czonego do przewodu powrotnego zelektronicznym
termostatem, termiczn dezynfekcj i elektronicznym regulatorem umywalni
zob. rysunek schematyczny 11,
str. 47
Rada Armaturen
GmbH Daimlerstr.
6
63303 Dreieich tel.:
06103 / 9804 0
Fax: 06103 / 98 04 90
Data: 02/2002
Automatyczna, regulowana czasowo
dezynfekcja termiczna z termostatem
Elektronik Rada 32 RMX i Rada Pulse 830
Rysunek schematyczny 9
RA 830
Rada Armaturen GmbH, Daimlerstr. 6, 63303 Dreieich • tel.: +49 61 03/98 04 0, fax: +49 61 03/98 04 90, E Mail: info@rada armaturen.de • www.rada armaturen.de
V / 04
Zmiany techniczne zastrze one
2.45
Stacje wody zmieszanej
Schemat systemu dozowania pod czonego do przewodu powrotnego z termostatem
Thermoscopic®, termiczn dezynfekcj i elektronicznym regulatorem umywalni
zob. rysunek schematyczny 11,
str. 47
Rada Armaturen
GmbH Daimlerstr.
6
63303 Dreieich tel.:
06103 / 9804 0
Fax: 06103 / 98 04 90
Data: 02/2002
Automatyczna, regulowana czasowo
dezynfekcja termiczna z termostatem Rada
Thermocopic® i Rada Meltronic 850
Rysunek schematyczny 10
RA 850
Rada Armaturen GmbH, Daimlerstr. 6, 63303 Dreieich • tel.: +49 61 03/98 04 0, fax: +49 61 03/98 04 90, E Mail: info@rada armaturen.de • www.rada armaturen.de
2.46
Zmiany techniczne zastrze one
V / 04
Stacje wody zmieszanej
Schemat elektronicznej regulacji umywalni z
termiczn dezynfekcj do punktu wylotu
Rada Armaturen
GmbH Daimlerstr.
6
63303 Dreieich tel.:
06103 / 9804 0
Fax: 06103 / 98 04 90
Data: 02/2002
Automatyczna, regulowana czasowo
dezynfekcja przewodów poboru i g owic
natryskowych z systemem Rada Pulse
Rysunek schematyczny 11
RA 830_A
Rada Armaturen GmbH, Daimlerstr. 6, 63303 Dreieich • tel.: +49 61 03/98 04 0, fax: +49 61 03/98 04 90, E Mail: info@rada armaturen.de • www.rada armaturen.de
V / 04
Zmiany techniczne zastrze one
2.47