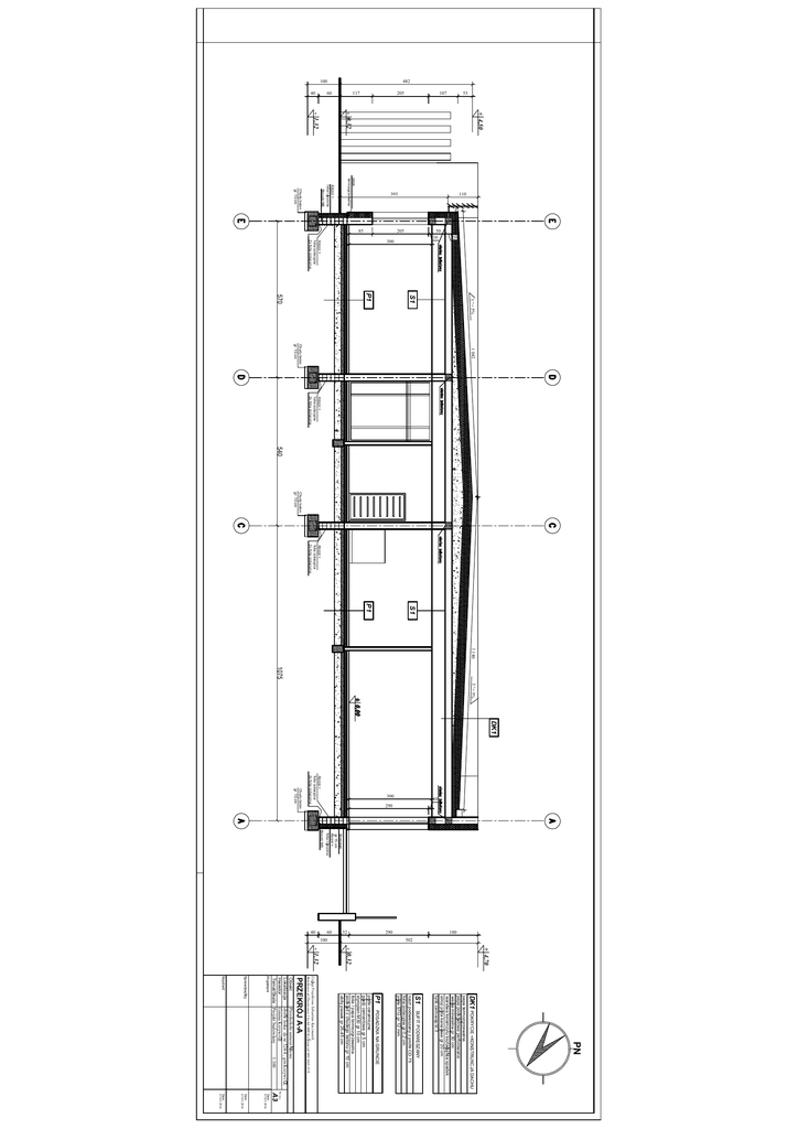
przekrój

Transkrypt

przekrój
+ 4,50
- 0,32
- 1,32
110
Abizol +
folia t łoczona
Bloczki M6
papa
termozgrzewalna
393
Chudy beton
gr. 10 cm
300
Abizol +
folia izolacyjna
2x folia izolacyjna
3 °= 5%
S1
P1
570
1 042
Chudy beton
gr. 10 cm
Abizol +
folia izolacyjna
2x folia izolacyjna
540
Chudy beton
gr. 10 cm
Abizol +
folia izolacyjna
2x folia izolacyjna
S1
P1
1 140
1075
3 °= 5%
DK1
Abizol +
folia izolacyjna
2x folia izolacyjna
290
Chudy beton
gr. 10 cm
Styropian
gr 15 cm
Abizol +
folia t łoczona
Bloczki M6
502
100
180
290
32
60
40
10
300
20
50
10
205
85
53
107
205
117
60
40
482
100
+ 4,70
- 0,32
- 1,32
PN
DK1 POKRYCIE +KONSTRUKCJA DACHU
SUFIT PODWIESZANY
papa termozgrzewalna
papa podkładowa perforowana
wełna mineralna gr 30 cm
warstwa keramzytu kształtująca spadek
strop płyta kanałowa gr 20 cm
tynk cem-wap kl 3
S1
POSADZKA NA GRUNCIE
ruszt podwieszany z profili CD 75
folia izolacyjna gr 0,2 cm
płyta STG gr 12 mm
P1
płytki ceramiczne
gładz cementowa gr 5 cm
styropian M30 gr 10 cm
folia / papa termozgrzewalna
podkład z chudego betonu gr 10 cm
ubity piasek gr 25-45 cm
Przedszkole samorz ądowe
obręb Jerka dz nr 524/4 , gm.Krzywi ń
Gmina Krzywiń
Projekt budowlany
1:100
PRZEKRÓJ A-A
Usługi Projektowe Sebastian Kaczmarek
Bonikowo ul.Dworcowa 11a 64-000 Kościan tel.601-663-519
Obiekt
Lokalizacja
Inwestor
Temat/Skala
Nr rys.
07-03-2016
Data
A3
Data
Projektant
Sprawdzający
Data
07-03-2016
07-03-2016
Asystent