deklaracja WU dla CT

Transkrypt

deklaracja WU dla CT
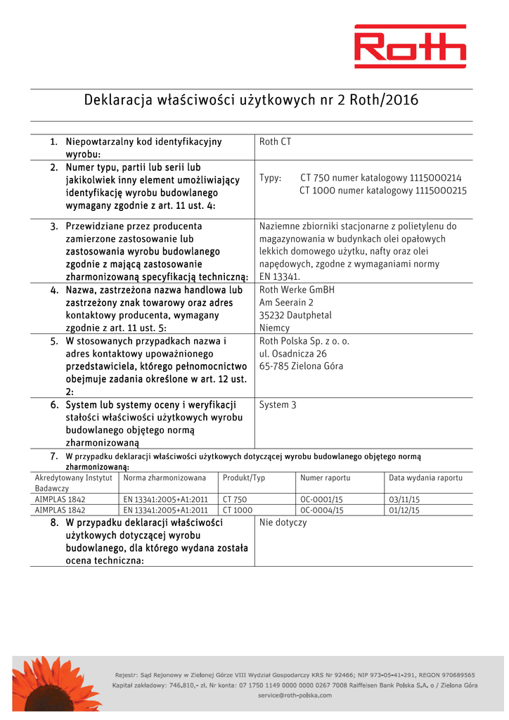
Deklaracja właściwości użytkowych nr 2 Roth/2016
Roth/2016
1. Niepowtarzalny kod identyfikacyjny
wyrobu:
wyrobu:
2. Numer typu, partii lub serii lub
jakikolwiek inny element umożliwiający
identyfikację wyrobu budowlanego
wymagany zgodnie z art. 11 ust. 4:
Roth CT
Typy:
CT 750 numer katalogowy 1115000214
CT 1000 numer katalogowy 1115000215
3. Przewidziane przez producenta
Naziemne zbiorniki stacjonarne z polietylenu do
zamierzone zastosowanie lub
magazynowania w budynkach olei opałowych
zastosowania wyrobu budowlanego
lekkich domowego użytku, nafty oraz olei
zgodnie z mającą zastosowanie
napędowych, zgodne z wymaganiami normy
zharmonizowaną specyfikacją techniczną: EN 13341.
4. Nazwa, zastrzeżona nazwa handlowa lub
Roth Werke GmBH
zastrzeżony znak towarowy oraz adres
Am Seerain 2
kontaktowy producenta, wymagany
35232 Dautphetal
zgodnie z art. 11 ust. 5:
Niemcy
5. W stosowanych przypadkach nazwa i
Roth Polska Sp. z o. o.
adres kontaktowy upoważnionego
ul. Osadnicza 26
przedstawiciela, którego pełnomocnictwo 65-785 Zielona Góra
obejmuje zadania określone w art. 12 ust.
2:
6. System lub systemy oceny i weryfikacji
System 3
stałości właściwości użytkowych wyrobu
budowlanego objętego normą
zharmonizowaną
7. W przypadku deklaracji właściwości użytkowych dotyczącej wyrobu budowlanego objętego normą
zharmonizowaną:
Akredytowany Instytut Norma zharmonizowana
Badawczy
AIMPLAS 1842
EN 13341:2005+A1:2011
AIMPLAS 1842
EN 13341:2005+A1:2011
Produkt/Typ
Numer raportu
Data wydania raportu
CT 750
CT 1000
OC-0001/15
0C-0004/15
03/11/15
01/12/15
8. W przypadku deklaracji właściwości
użytkowych dotyczącej wyrobu
budowlanego, dla którego wydana została
ocena techniczna:
Nie dotyczy
9. Deklarowane właściwości użytkowe
Typy
CT 750
CT 1000
Ciężar
24,85 kg
32,1 kg
Objętość formy
763,5 l
1026,85 l
Grubość ścianki
≥ 3,0 mm
≥ 3,2 mm
Masowy wskaźnik
płynięcia
Szczelność
zaliczony
Wytrzymałość na
rozciąganie
Reakcja na ogień
zaliczony
Wytrzymałość na
ściskanie
Odporność na uderzenia
zaliczony
Odporność na ciecze
Szczelność
Test na działanie wpływów
atmosferycznych w
pomieszczeniu wewnętrznym
Odkształcenia
zaliczony
F
zaliczony
zaliczony (do olei opałowych lekkich domowego
użytku, nafty oraz olei napędowych)
zaliczony
zaliczony (do zastosowania stacjonarnego w
pomieszczeniach wewnętrznych)
EN 13341:2005+A1:2011
Zharmonizowana
specyfikacja
techniczna
Wynik
EN 1350113501-1
EN 13341:2005+A1:2011
Zasadnicze
charakterystyki
zaliczony
10. Właściwości użytkowe wyrobu określone w pkt. 1 i 2 są zgodne z właściwościami
użytkowymi
użytkowymi deklarowanymi w pkt. 9
Niniejsza deklaracja właściwości użytkowych wydana zostaje na wyłączną odpowiedzialność producenta
określonego w pkt. 5.
W imieniu producenta:
Justyna Pytkowska
Specjalista ds. technicznych
Roth Polska Sp. z o. o.
Zielona Góra, 04.03.2016