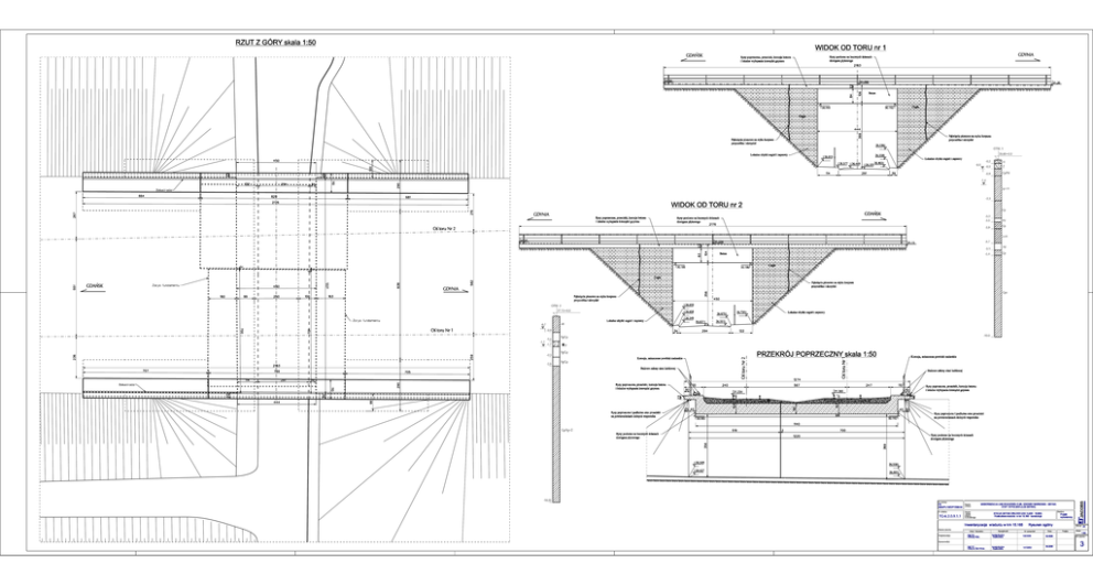
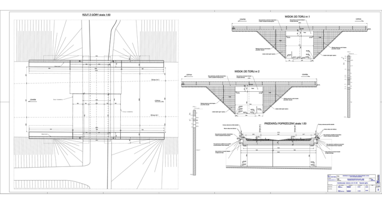
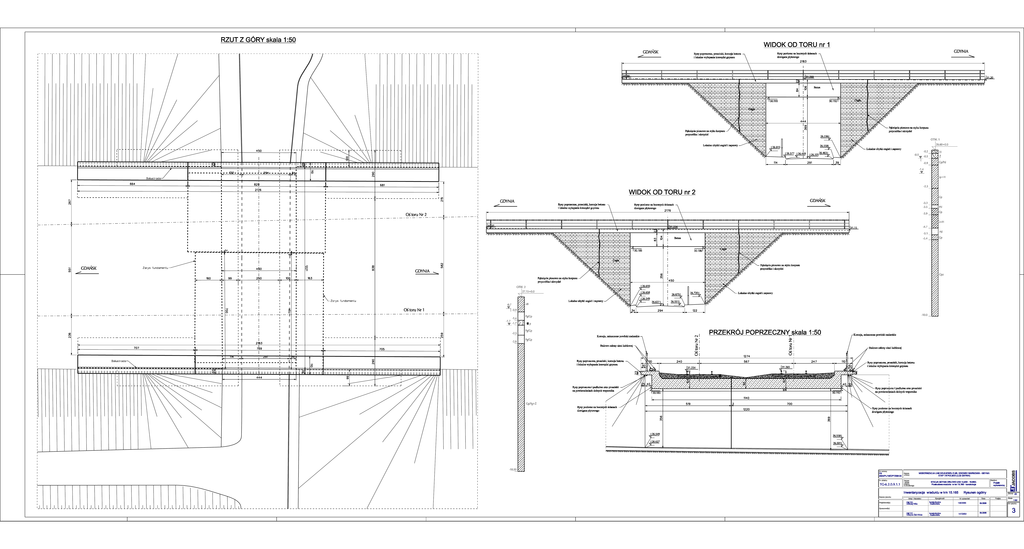
3 RZUT Z GRY skala 1:50 WIDOK OD TORU nr - przetargi.plk

Transkrypt

3 RZUT Z GRY skala 1:50 WIDOK OD TORU nr - przetargi.plk
RZUT Z GRY skala 1:50
WIDOK OD TORU nr 1
GDASK
Rysy poprzeczne, przecieki, korozja betonu
Rysy
poziome
i lokalne wy‡upania krawŒdzi gzymsu
dzwigara p‡ytowego
na
bocznych
GDYNIA
cianach
2183
31.30
31.265
84
106
22
31.20
Beton
Ceg‡a
30.192
30.193
Ceg‡a
369
444
PŒkniŒcia pionowe na styku korpusu
PŒkniŒcia pionowe na styku korpusu
przycz‡ka i skrzyde‡
przycz‡ka i skrzyde‡
26.536
OTW. 1
Lokalne ubytki cegie‡ i zaprawy
26.60=0.0
26.558
26.613
Lokalne ubytki cegie‡ i zaprawy
450
26.459
26.501
26.463
-0.5
1
34
291
39
-0.2
H
-0.5
fl
-0.9
Gp/Pd
-1.4
290
294
110
122
664
114
25
25
100
26.577
829
1
Gp+H
681
-2.3
2176
WIDOK OD TORU nr 2
267
215
Gp
GDASK
GDYNIA
Rysy poprzeczne, przecieki, korozja betonu
Rysy
i lokalne wy‡upania krawŒdzi gzymsu
poziome
na
bocznych
-3.3
cianach
-3.5
dzwigara p‡ytowego
2176
-3.9
O toru Nr 2
Pd
Gp
G+H
31.27
31.224
-4.7
23
31.15
83
104
-5.1
Beton
-5.4
2
30.185
Gp
Ceg‡a
2
30.186
Pd
99
160
582
przycz‡ka i skrzyde‡
GDYNIA
PŒkniŒcia pionowe na styku korpusu
163
100
250
PŒkniŒcia pionowe na styku korpusu
356
450
838
GDASK
1221
551
Ceg‡a
Gpz
450
przycz‡ka i skrzyde‡
26.610
OTW. 2
27.15=0.0
26.658
26.720
26.675
Lokalne ubytki cegie‡ i zaprawy
26.549
Lokalne ubytki cegie‡ i zaprawy
701
700
O toru Nr 1
26.551
26.627
nB
-0.7
-0.9
-1.4
34
294
122
-10.0
Pg/Gp
-1.7
p
-2.8
Pg/Gp
Stalowe os‡ony sieci kablowej
291
705
1274
39
Rysy poprzeczne, przecieki, korozja betonu
110
110
i lokalne wy‡upania krawŒdzi gzymsu
240
567
30
110
- Rysy poprzeczne, przecieki, korozja betonu
i lokalne wy‡upania krawŒdzi gzymsu
30
22
25
60
104
99
23
30
247
31.265
31.224
40
40
Rysy poprzeczne i pod‡u¿ne oraz przecieki
30
- Rysy poprzeczne i pod‡u¿ne oraz przecieki
15
na powierzchniach dolnych wspornika
na powierzchniach dolnych wspornika
30.192
30.185
1140
Gp/Pg+fl
519
Rysy
poziome
na
bocznych
2
700
cianach
-
1220
dzwigara p‡ytowego
Rysy
poziome
na
bocznych
cianach
dzwigara p‡ytowego
356
444
- Stalowe os‡ony sieci kablowej
26.549
26.627
369
114
1
107
769
290
1
33
707
- Korozja, zniszczone pow‡oki malarskie
26.558
26.501
-10.50
Nr umowy
FS
2004/PL/16/C/PT/006-04
Nr obiektu
TG-6.2.0.9.1.1
Nazwa
umowy
MODERNIZACJA LINII KOLEJOWEJ E-65, ODCINEK WARSZAWA - GDYNIA
Nazwa
i adres
obiektu
budowlanego
ETAP I W POLSCE (LCS GDYNIA)
Stadium
STACJA GDYNIA OR£OWO (KM 14,800 - 16,650)
Projekt
Przebudowa wiaduktu w km 15.165 - konstrukcja
Inwentaryzacja wiaduktu w km 15.165
wykonawczy
Rysunek oglny
R
2183
PRZEKRJ POPRZECZNY skala 1:50
Korozja, zniszczone pow‡oki malarskie
O toru Nr 2
259
236
Pg/Gp
-2.3
O toru Nr 1
-1.7
Strona 20
Nazwa rysunku
ImiŒ i Nazwisko
Specjalno
Nr uprawnieæ
Data
Podpis
Skala
1:50
Projektowa‡(a)
mgr in¿.
Andrzej Mika
konstrukcyjno
- budowlana
120/2000
mgr in¿.
Gra¿yna flak-Weiss
konstrukcyjno
- budowlana
147/2002
09.2008
Nr rysunku
09.2008
3
Opracowa‡(a)