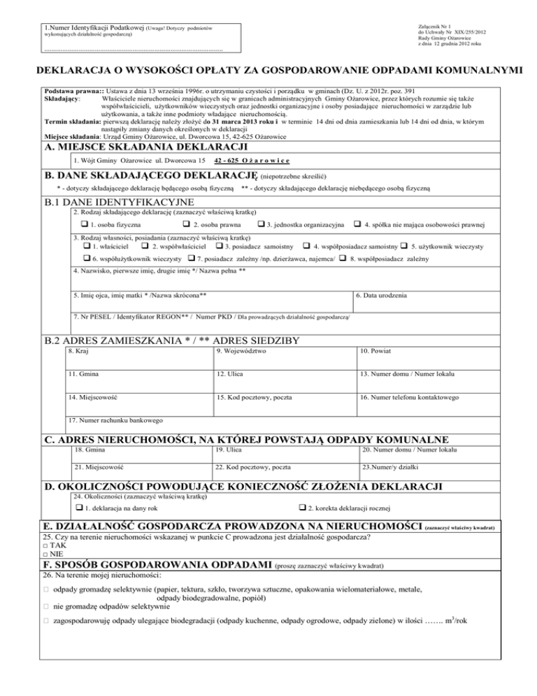
DEKLARACJA O WYSOKOŚCI OPŁATY ZA

Transkrypt

DEKLARACJA O WYSOKOŚCI OPŁATY ZA
1.Numer Identyfikacji Podatkowej (Uwaga! Dotyczy
Załącznik Nr 1
do Uchwały Nr XIX/255/2012
Rady Gminy Ożarowice
z dnia 12 grudnia 2012 roku
podmiotów
wykonujących działalność gospodarczą)
...................................................................................................
DEKLARACJA O WYSOKOŚCI OPŁATY ZA GOSPODAROWANIE ODPADAMI KOMUNALNYMI
Podstawa prawna:: Ustawa z dnia 13 września 1996r. o utrzymaniu czystości i porządku w gminach (Dz. U. z 2012r. poz. 391
Składający:
Właściciele nieruchomości znajdujących się w granicach administracyjnych Gminy Ożarowice, przez których rozumie się także
współwłaścicieli, użytkowników wieczystych oraz jednostki organizacyjne i osoby posiadające nieruchomości w zarządzie lub
użytkowania, a także inne podmioty władające nieruchomością.
Termin składania: pierwszą deklarację należy złożyć do 31 marca 2013 roku i w terminie 14 dni od dnia zamieszkania lub 14 dni od dnia, w którym
nastąpiły zmiany danych określonych w deklaracji
Miejsce składania: Urząd Gminy Ożarowice, ul. Dworcowa 15, 42-625 Ożarowice
A. MIEJSCE SKŁADANIA DEKLARACJI
1. Wójt Gminy Ożarowice ul. Dworcowa 15
42 - 625 O ż a r o w i c e
B. DANE SKŁADAJĄCEGO DEKLARACJĘ (niepotrzebne skreślić)
* - dotyczy składającego deklarację będącego osobą fizyczną
** - dotyczy składającego deklarację niebędącego osobą fizyczną
B.1 DANE IDENTYFIKACYJNE
2. Rodzaj składającego deklarację (zaznaczyć właściwą kratkę)
 1. osoba fizyczna

2. osoba prawna
 3. jednostka organizacyjna
3. Rodzaj własności, posiadania (zaznaczyć właściwą kratkę)
 1. właściciel  2. współwłaściciel  3. posiadacz samoistny
 6. współużytkownik wieczysty  7. posiadacz


4. spółka nie mająca osobowości prawnej
4. współposiadacz samoistny  5. użytkownik wieczysty
zależny /np. dzierżawca, najemca/

8. współposiadacz zależny
4. Nazwisko, pierwsze imię, drugie imię */ Nazwa pełna **
5. Imię ojca, imię matki * /Nazwa skrócona**
6. Data urodzenia
7. Nr PESEL / Identyfikator REGON** / Numer PKD / Dla prowadzących działalność gospodarczą/
B.2 ADRES ZAMIESZKANIA * / ** ADRES SIEDZIBY
8. Kraj
9. Województwo
10. Powiat
11. Gmina
12. Ulica
13. Numer domu / Numer lokalu
14. Miejscowość
15. Kod pocztowy, poczta
16. Numer telefonu kontaktowego
17. Numer rachunku bankowego
C. ADRES NIERUCHOMOŚCI, NA KTÓREJ POWSTAJĄ ODPADY KOMUNALNE
18. Gmina
19. Ulica
20. Numer domu / Numer lokalu
21. Miejscowość
22. Kod pocztowy, poczta
23.Numer/y działki
D. OKOLICZNOŚCI POWODUJĄCE KONIECZNOŚĆ ZŁOŻENIA DEKLARACJI
24. Okoliczności (zaznaczyć właściwą kratkę)
 1. deklaracja na dany rok
 2. korekta deklaracji rocznej
E. DZIAŁALNOŚĆ GOSPODARCZA PROWADZONA NA NIERUCHOMOŚCI (zaznaczyć właściwy kwadrat)
25. Czy na terenie nieruchomości wskazanej w punkcie C prowadzona jest działalność gospodarcza?
□ TAK
□ NIE
F. SPOSÓB GOSPODAROWANIA ODPADAMI (proszę zaznaczyć właściwy kwadrat)
26. Na terenie mojej nieruchomości:
odpady gromadzę selektywnie (papier, tektura, szkło, tworzywa sztuczne, opakowania wielomateriałowe, metale,
odpady biodegradowalne, popiół)
nie gromadzę odpadów selektywnie
zagospodarowuję odpady ulegające biodegradacji (odpady kuchenne, odpady ogrodowe, odpady zielone) w ilości ……. m3/rok
G. OŚWIADCZENIE WŁAŚCICIELI NIERUCHOMOŚCI ZAMIESZKAŁYCH
27. Oświadczam, że na terenie nieruchomości na której powstają odpady zamieszkuje: ………………….……………………….
(liczba mieszkańców)
28. Wyliczenie miesięcznej opłaty:
…………………………………… X ………………………………….. = ………………………..…………………………….. zł
(liczba mieszkańców)
(stawka opłaty)
(iloczyn liczby mieszkańców i stawki opłaty)
29. Wysokość opłaty miesięcznej za gospodarowanie odpadami komunalnymi wynosi ……………………….. zł
(słownie …..………………………………………………………………………………………………………………………………………..…………….)
H. OŚWIADCZENIE WŁAŚCICIELI NIERUCHOMOŚCI NIEZAMIESZKAŁYCH, NA
KTÓRYCH POWSTAJĄ ODPADY
30. Oświadczam, że na terenie nieruchomości na której powstają odpady komunalne gromadzone są:
……………………………………………………………………………………………………………………………………………………………………
(liczba i rodzaj pojemników)
31. Wyliczenie miesięcznej opłaty:
……………………………………………X …………………………………………=……………………………………………………………zł
(liczba pojemników)
(stawka opłaty)
(iloczyn liczby pojemników i stawki opłaty)
32. Wysokość opłaty miesięcznej za gospodarowanie odpadami komunalnymi wynosi ………………………. zł
( słownie…………………………………………………………………………………………………………………………………………………………)
I. ZAŁĄCZNIKI (należy wymienić rodzaj załącznika)
33.
1.Kopia umowy z Przedsiębiorcą na odbieranie odpadów komunalnych – obowiązkowo przy pierwszej deklaracji
2. ………………………………….
J. OŚWIADCZENIE I PODPIS SKŁADAJĄCEGO / OSOBY REPREZENTUJĄCEJ
SKŁADAJĄCEGO
Oświadczam, że podane przeze mnie dane są zgodne z prawdą.
34. Imię
36. Data wypełnienia (dzień - miesiąc - rok)
35. Nazwisko
37. Podpis (pieczęć) składającego / osoby reprezentującej składającego
K. ADNOTACJE ORGANU PODATKOWEGO
38. Uwagi organu podatkowego
W wyniku wstępnej kontroli przypada : do przypisu.......................................................zł ; do odpisu..........................................................zł
Przypisano – odpisano kwotę ...................................................decyzją Nr...........................................z dnia....................................20.....roku
Zaksięgowano pod pozycją dziennika obrotów nr..............................kwotę............................................dnia.....................................20….roku.
39. Data i podpis sprawdzającego formularz
40. Podpis księgowego
POUCZENIE:
1. Właściciel nieruchomości jest obowiązany złożyć do Wójta Gminy Ożarowice: pierwszą deklarację do 31 marca 2013 roku, deklarację o wysokości
opłaty za gospodarowanie odpadami komunalnymi w terminie 14 dni od dnia zamieszkania na danej nieruchomości, a w przypadku zmiany danych
będących podstawą ustalenia opłaty, w terminie 14 dni od dnia nastąpienia zmiany. Opłatę za gospodarowanie odpadami komunalnymi w zmienionej
wysokości uiszcza się od miesiąca, w którym nastąpiła zmiana.
2. Niezłożenie deklaracji w terminach określonych w art. 6m ustawy z dnia 13 września 1996 r. o utrzymaniu czystości i porządku w gminach (t. j. Dz. U.
2012 r., poz. 391) albo w przypadku uzasadnionych wątpliwości co do danych zawartych w deklaracji, spowoduje określenie (na podstawie art. 6o ww.
ustawy) przez Wójta Gminy Ożarowice w drodze decyzji wysokości opłaty za gospodarowanie odpadami.
3. Składający deklarację są obowiązani wpłacać obliczoną w deklaracji opłatę – bez wezwania - na rachunek: GMINY OŻAROWICE
BS ŚWIERKLANIEC K-to nr 48 8467 0001 0000 2974 2000 0011 lub w kasie Banku Spółdzielczego w Świerklańcu bądź jego filiach w
Tąpkowicach i Ożarowicach. Opłatę należy uiszczać kwartalnie do 15 dnia pierwszego miesiąca kwartału tj. do 15 stycznia, 15 kwietnia, 15 lipca, 15
października.
4. Deklaracja stanowi podstawę do wystawienia tytułu wykonawczego zgodnie z art. 3a ustawy z dnia 17 czerwca 1966 roku o postępowaniu
egzekucyjnym w administracji ( tekst jednolity Dz. U. z 2005 roku Nr 229, poz. 1954 z późn. zm.).
5. Miesięczne stawki opłaty za gospodarowanie odpadami komunalnymi reguluje odrębna uchwała.
6. Sposób zbierania odpadów będzie podlegał kontroli. W przypadku niewywiązywania się z obowiązku selektywnego zbierania odpadów komunalnych
właściwy organ w drodze decyzji naliczy opłatę za odbieranie odpadów zbieranych w sposób nieselektywny wraz z zaległymi odsetkami.
UWAGA
W związku z wejście w życie w dniu 1 lipca 2013 roku nowych przepisów regulujących gospodarkę odpadami komunalnymi, właściciele nieruchomości winni
wypowiedzieć dotychczasowe umowy na wywóz odpadów ze skutkiem na dzień 30 czerwca 2013 roku.