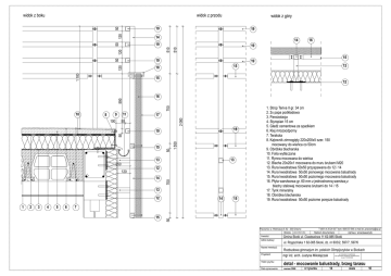
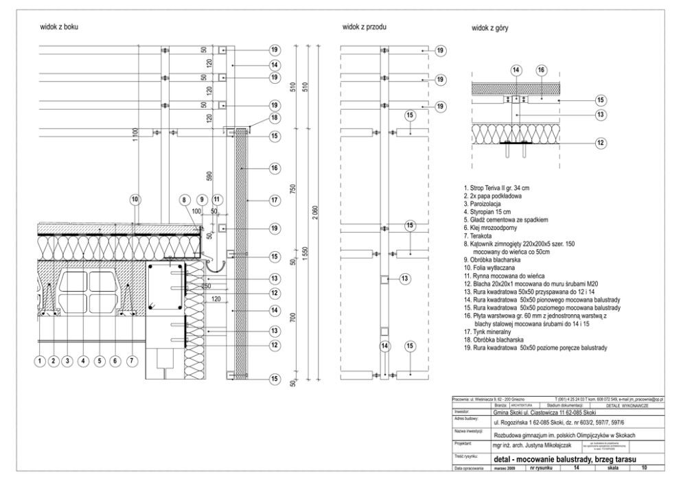
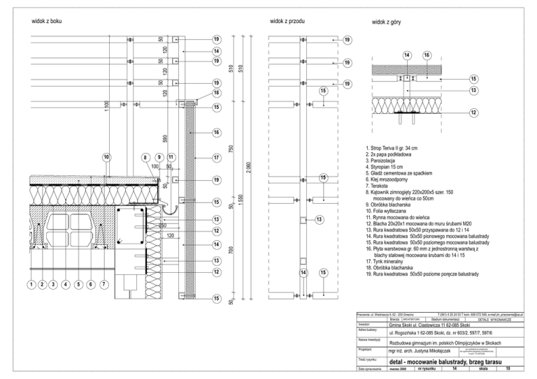
det balustrady taras _ 14

Transkrypt

det balustrady taras _ 14
widok z przodu
50
widok z boku
widok z góry
120
19
19
50
14
14
50
15
120
19
19
15
12
16
750
590
11
9
17
2 060
8
100
50
15
1 550
15
50
50
19
13
13
250
12
14
700
120
13
12
2
3
4
5
6
14
15
1. Strop Teriva II gr. 34 cm
2. 2x papa podkładowa
3. Paroizolacja
4. Styropian 15 cm
5. Gładź cementowa ze spadkiem
6. Klej mrozoodporny
7. Terakota
8. Kątownik zimnogięty 220x200x5 szer. 150
mocowany do wieńca co 50cm
9. Obróbka blacharska
10. Folia wytłaczana
11. Rynna mocowana do wieńca
12. Blacha 20x20x1 mocowana do muru śrubami M20
13. Rura kwadratowa 50x50 przyspawana do 12 i 14
14. Rura kwadratowa 50x50 pionowego mocowana balustrady
15. Rura kwadratowa 50x50 poziomego mocowana balustrady
16. Płyta warstwowa gr. 60 mm z jednostronną warstwą z
blachy stalowej mocowana śrubami do 14 i 15
17. Tynk mineralny
18. Obróbka blacharska
19. Rura kwadratowa 50x50 poziome poręcze balustrady
7
15
50
1
13
15
18
1 100
10
16
19
510
120
510
19
Pracownia: ul. Wieśniacza 9, 62 - 200 Gniezno
T (061) 4 25 24 03 T kom. 608 072 549, e-mail [email protected]
BranŜa: ARCHITEKTURA
Stadium dokumentacji:
DETALE WYKONAWCZE
Inwestor:
Gmina Skoki ul. Ciastowicza 11 62-085 Skoki
Adres budowy:
Nazwa inwestycji:
ul. Rogozińska 1 62-085 Skoki, dz. nr 603/2, 597/7, 597/6
Rozbudowa gimnazjum im. polskich Olimpijczyków w Skokach
Projektant:
mgr inŜ. arch. Justyna Mikołajczak
Treść rysynku:
detal - mocowanie balustrady, brzeg tarasu
Data opracowania
marzec 2009
nr rysunku
upr. budowlane do projektownia
bez ograniczeńw specjalności architektonicznej
nr ewid. 7131/6/P/2005
14
skala
10