04 310 15 04 14 02 Adria II_PL
Transkrypt
04 310 15 04 14 02 Adria II_PL
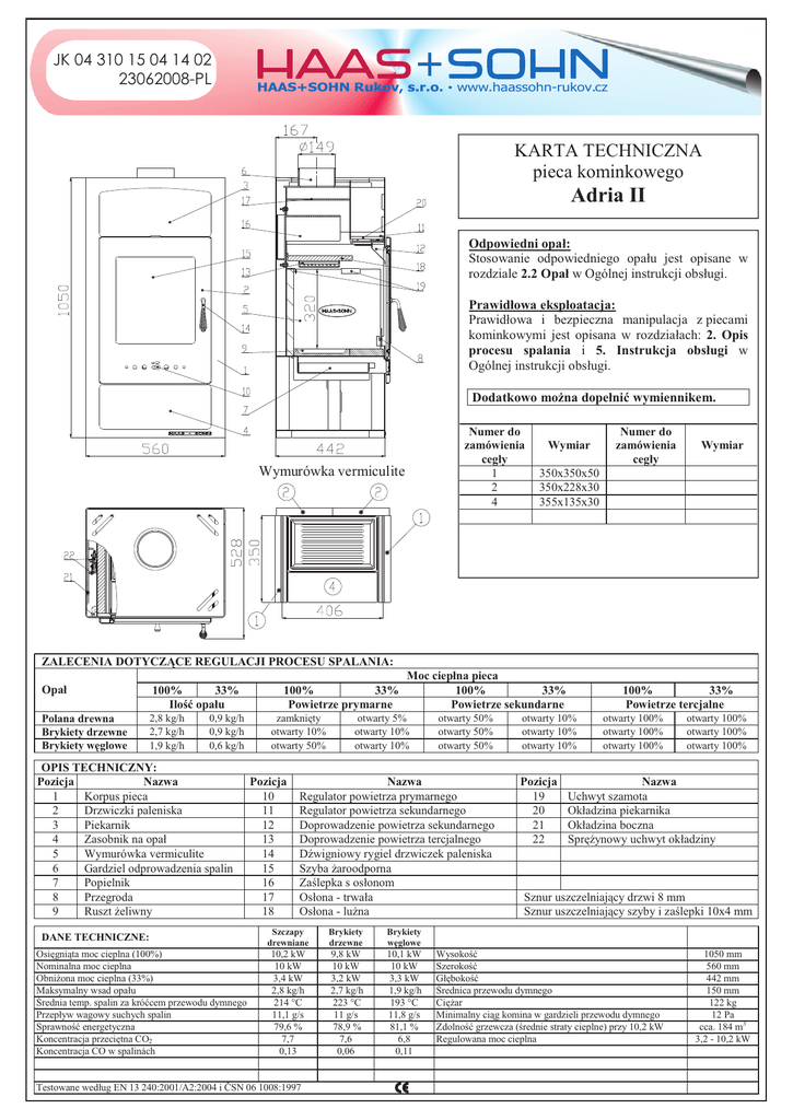
JK 04 310 15 04 14 02 23062008-PL HAAS+SOHN Rukov, s.r.o. • www.haassohn-rukov.cz KARTA TECHNICZNA pieca kominkowego Adria II Odpowiedni opa³: Stosowanie odpowiedniego opa³u jest opisane w rozdziale 2.2 Opa³ w Ogólnej instrukcji obs³ugi. Prawid³owa eksploatacja: Prawid³owa i bezpieczna manipulacja z piecami kominkowymi jest opisana w rozdzia³ach: 2. Opis procesu spalania i 5. Instrukcja obs³ugi w Ogólnej instrukcji obs³ugi. Dodatkowo mo¿na dope³niæ wymiennikem. Numer do zamówienia ceg³y 1 2 4 Wymurówka vermiculite Wymiar Numer do zamówienia ceg³y Wymiar 350x350x50 350x228x30 355x135x30 ZALECENIA DOTYCZ¥CE REGULACJI PROCESU SPALANIA: Opa³ 100% 33% Iloœæ opa³u Polana drewna Brykiety drzewne Brykiety wêglowe 2,8 kg/h 2,7 kg/h 1,9 kg/h 0,9 kg/h 0,9 kg/h 0,6 kg/h OPIS TECHNICZNY: Pozicja Nazwa 1 Korpus pieca 2 Drzwiczki paleniska 3 Piekarnik 4 Zasobnik na opa³ 5 Wymurówka vermiculite 6 Gardziel odprowadzenia spalin 7 Popielnik 8 Przegroda 9 Ruszt ¿eliwny DANE TECHNICZNE: Osiêgni¹ta moc cieplna (100%) Nominalna moc cieplna Obni¿ona moc cieplna (33%) Maksymalny wsad opa³u Œrednia temp. spalin za króæcem przewodu dymnego Przep³yw wagowy suchych spalin Sprawnoœæ energetyczna Koncentracja przeciêtna CO2 Koncentracja CO w spalinách 100% 33% Powietrze prymarne zamkniêty otwarty 10% otwarty 50% Pozicja 10 11 12 13 14 15 16 17 18 Moc ciep³na pieca 100% 33% Powietrze sekundarne otwarty 5% otwarty 10% otwarty 10% otwarty 50% otwarty 50% otwarty 50% Nazwa Regulator powietrza prymarnego Regulator powietrza sekundarnego Doprowadzenie powietrza sekundarnego Doprowadzenie powietrza tercjalnego DŸwigniowy rygiel drzwiczek paleniska Szyba ¿aroodporna Zaœlepka s os³onom Os³ona - trwa³a Os³ona - lu¿na Szczapy drewniane Brykiety drzewne Brykiety wêglowe 10,2 kW 10 kW 3,4 kW 2,8 kg/h 214 °C 11,1 g/s 79,6 % 7,7 0,13 9,8 kW 10 kW 3,2 kW 2,7 kg/h 223 °C 11 g/s 78,9 % 7,6 0,06 10,1 kW 10 kW 3,3 kW 1,9 kg/h 193 °C 11,8 g/s 81,1 % 6,8 0,11 Testowane wed³ug EN 13 240:2001/A2:2004 i ÈSN 06 1008:1997 100% 33% Powietrze tercjalne otwarty 10% otwarty 10% otwarty 10% Pozicja 19 20 21 22 otwarty 100% otwarty 100% otwarty 100% otwarty 100% otwarty 100% otwarty 100% Nazwa Uchwyt szamota Ok³adzina piekarnika Ok³adzina boczna Sprê¿ynowy uchwyt ok³adziny Sznur uszczelniaj¹cy drzwi 8 mm Sznur uszczelniaj¹cy szyby i zaœlepki 10x4 mm Wysokoœæ Szerokoœæ G³êbokoœæ Œrednica przewodu dymnego Ciê¿ar Minimalny ci¹g komina w gardzieli przewodu dymnego Zdolnoœæ grzewcza (œrednie straty cieplne) przy 10,2 kW Regulowana moc cieplna 1050 mm 560 mm 442 mm 150 mm 122 kg 12 Pa cca. 184 m3 3,2 - 10,2 kW JK 04 310 15 04 14 02 23062008-PL HAAS+SOHN Rukov, s.r.o. • www.haassohn-rukov.cz SCHEMAT WYMIAROWY PIECA KOMINKOWEGO Z MONTA¯EM KOLANA PRZEWODU DYMOWEGO DOSTARCZONEGO JAK WYPOSA¯ENIE SPECJALNE