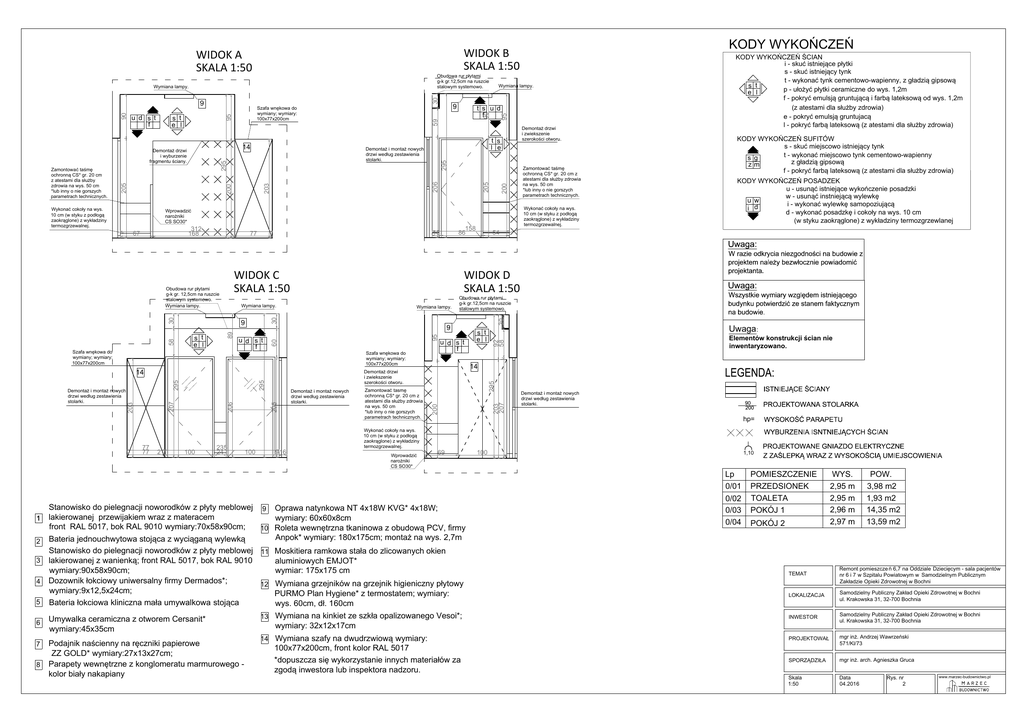
KODY WYKOŃCZEŃ

Transkrypt

KODY WYKOŃCZEŃ
WIDOK B
SKALA 1:50
g-k gr.12,5cm na ruszcie
stalowym systemowo.
30
Wymiana lampy.
t s u d
f
90
s t
e l
9
59
u d s t
f
wymiany; wymiary:
100x77x200cm
95
90
9
14
295
s g
zm
200
205
200
203
206
CS* gr. 20 cm z
205
na wys. 50 cm
*lub inny o nie gorszych
parametrach technicznych.
u w
i d
CS SO30*
WIDOK C
SKALA 1:50
89
Wymiana lampy.
wymiany; wymiary:
100x77x200cm
u d s t
f
wymiany; wymiary:
100x77x200cm
14
s t
e l
Uwaga:
inwentaryzowano.
14
295
i zwiekszenie
otworu.
295
295
g-k gr.12,5cm na ruszcie
stalowym systemowo.
9
u d s t
f
95
30
58
WIDOK D
SKALA 1:50
Wymiana lampy.
9
s t
e l
54
30
g-k gr. 12,5cm na ruszcie
stalowym systemowo.
Wymiana lampy.
termozgrzewalnej.
158
86
18
77
92
58
312
168
67
30
termozgrzewalnej.
60
zdrowia na wys. 50 cm
*lub inny o nie gorszych
parametrach technicznych.
stolarki.
295
Zamontowa
CS* gr. 20 cm
i zwiekszenie
otworu.
t s
l e
i wyburzenie
s t
e l
Wymiana lampy.
95
WIDOK A
SKALA 1:50
77
77
2
100
235
24
na wys. 50 cm
*lub inny o nie gorszych
parametrach technicznych.
203
207
stolarki.
200
205
206
203
207
CS* gr. 20 cm z
stolarki.
stolarki.
hp=
termozgrzewalnej.
100
9 16
69
100
1,10
CS SO30*
9
1
lakierowanej przewijakiem wraz z materacem
front RAL 5017, bok RAL 9010 wymiary:70x58x90cm;
2
Bateria
Oprawa natynkowa NT 4x18W KVG* 4x18W;
wymiary: 60x60x8cm
10
Lp
0/01
0/02
0/03
0/04
POMIESZCZENIE
PRZEDSIONEK
TOALETA
WYS.
2,95 m
2,95 m
2,96 m
2,97 m
POW.
3,98 m2
1,93 m2
14,35 m2
13,59 m2
11
aluminiowych EMJOT*
wymiar: 175x175 cm
3
wymiary:90x58x90cm;
4
wymiary:9x12,5x24cm;
Umywalka ceramiczna z otworem Cersanit*
wymiary:45x35cm
PURMO Plan Hygiene* z termostatem; wymiary:
60cm
13
LOKALIZACJA
INWESTOR
wymiary: 32x12x17cm
14 Wymiana
7
ZZ GOLD* wymiary:27x13x27cm;
Remont pomieszcze
na Oddziale
nr 6 i 7 w Szpitalu Powiatowym w Samodzielnym Publicznym
12
5
6
TEMAT
wymiary:
100x77x200cm, front kolor RAL 5017
ul. Krakowska 31, 32-700 Bochnia
ul. Krakowska 31, 32-700 Bochnia
571/Kl/73
8
Skala
1:50
Data
04.2016
Rys. nr
2
www.marzec-budownictwo.pl
H:\pliki\praca\Marzec
Budownictwo\Apteka\logo-01.jpg
C:\Users\Ludek\Desktop\Praca\logo.jpg