I5 Elewacje

Transkrypt

I5 Elewacje
20
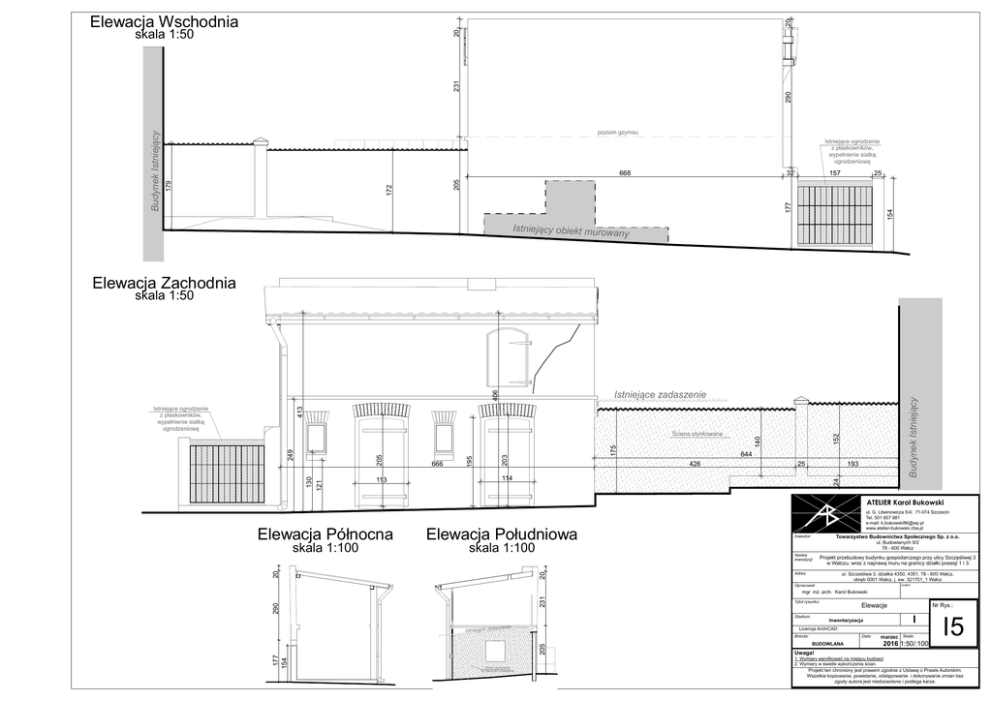
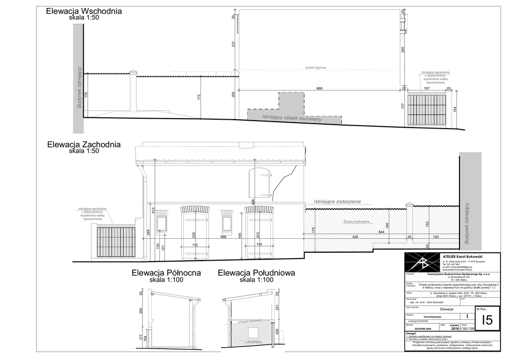
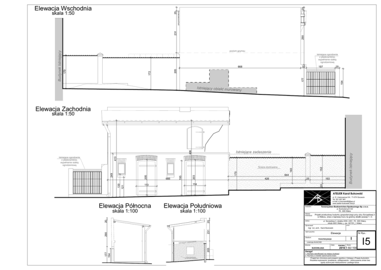
Elewacja Wschodnia
poziom gzymsu
Istniejące ogrodzenie
z płaskowników,
wypełnienie siatką
ogrodzeniową
32
157
25
154
177
172
205
668
179
Budynek Istniejący
290
231
20
skala 1:50
Istniejący obiekt murowa
ny
Elewacja Zachodnia
406
skala 1:50
Budynek Istniejący
113
140
175
203
195
666
644
426
25
193
114
24
130
121
205
249
Ściana otynkowana
152
413
Istniejące ogrodzenie
z płaskowników,
wypełnienie siatką
ogrodzeniową
Istniejące zadaszenie
ATELIER Karol Bukowski
Elewacja Północna
skala 1:100
Inwestor:
Towarzystwo Budownictwa Społecznego Sp. z o.o.
ul. Budowlanych 9/2
78 - 600 Wałcz
Nazwa
inwestycji:
20
20
skala 1:100
Elewacja Południowa
ul. G. Litwinowicza 5/4; 71-074 Szczecin
Tel. 501 657 981
e-mail: [email protected]
www.atelier-bukowski.cba.pl
Projekt przebudowy budynku gospodarczego przy ulicy Szczęśliwej 3
w Wałczu, wraz z naprawą muru na granicy działki posesji 1 i 3.
Adres:
ul. Szcześliwa 3, działka 4350, 4351, 78 - 600 Wałcz,
obręb 0001 Wałcz, j. ew. 321701_1 Wałcz
podpis:
Opracował:
290
231
mgr inż. arch. Karol Bukowski
Tytuł rysunku:
Stadium:
aszenie
Istniejące zad
Elewacje
I
Inwentaryzacja
Licencja ArchiCAD:
205
Branża:
177
154
Nr Rys.:
Data:
BUDOWLANA
marzec
Skala:
I5
2016 1:50/:100
Uwaga!
1. Wymiary weryfikować na miejscu budowy!
2. Wymiary w świetle wykończenia ścian.
Ściana otynkowana
do wysokości zadaszenia
Projekt ten chroniony jest prawem zgodnie z Ustawą o Prawie Autorskim.
Wszelkie kopiowanie, powielanie, odstępowanie i dokonywanie zmian bez
zgody autora jest niedozwolone i podlega karze.