rys. 6

Transkrypt

rys. 6
'
'
'
'
'
'
'
00
ksA1
'
'
334.10
g
'
g
td
ks200
324.62
g
g
g25
'
g
331.46
g
'
341
'
l.
ciep
'
329.92
332.74
g
A
330.93
eN
w
g
g
339/2
328.80
324.08
PE90 12.0m
322.45
11RM9
g25
g40
ciepl.
pl.
cie
R
g
'
331.58
w
338/1
322.69
325.14
40
328.94
'
pp341216
R
g
'
g
41
340/2
g40
122/1
68a
'
340/1
R
323.99
342/1
'
eSA
ks200
S
S
'
323.63
323.72
121
R
'
R
'
R
339/3
wA32
#
Y
323.67
'
R
323.55
R
'
2k
g
42/1
322.89
wA32
325.15
322.17
324.86
323.67
42
323.75
338/2
g
g
323.66
R
R
'
0
323.53
42/1a
'
R
'
211
PE90 3.0m
g
71
g
'
g
g
)
g
w90
323.58
g
g
g
210;3
322.86
210;2
g
)
325.83
g
2
3
g
m2
0
g
5
g
0
214
323.17
323.63
w40
wA32
210;1
g
59
g
2k
27
w
209;3
321.61
324.98
pp47
206
209;2
0
0
1
A
ks 46/1
324.41 46
324.42
ps46
k
321.77
s
2
0
0
R
A
w
324.58
45
321.83
PE90 15.0m
ks200
209
208
0
20
ks
ksA100
0
5
g
g
325.21
R
A
42/3
323.08
eN
5
2
28/1
S
209;1
k
209;4
s
2
0
w 0
4
0
g
g
207;2
207;3
207;4
m
g
323.68
)
R
S
R
)
g40
215
A
td
g
g
g
ks200
R
0
5
1
A
w
321.43
R
m
m
)
207;1
w
22.61
PE110 13m
)
216
R
.6
3
2
224
205;1
w
4
100
0
ksA
205;2
0
0
2
s
k
323.88
51
321.11
ks200
)
R
42/5
323.59
g
325.14
217
R
28/2
S
S
58
g
R
320.99
52
g
g
g
g
g
R
323.52
R
PE110 5m
g
)
7RM3
223
g
m
205;3
R
202
017 K
DD
42/4
g
PE110 4m
323.88
50
321.28
29
323.09
324.65
0
0
2
s
321.38
k
w
32 207;6
wA
g
N
R
7RM2
324.18
49a
w
4
0
324.33
s
k
48
0
0
2
0
10
ks
g
207;5
0
207
5
5
205
g
pp563
2
g
210
212
323.24
323.62
td
g
g
g
0
2
ks
324.49
44
321.89
R
0
0
2
s
k
6
4
3
120
119
264
0
6
g
w
R
ks200
0
5
A
1
S
g
g
m
204;2
204;3
204;4
pp52
225
g
g
R
w90
)
202;5
204;6
g
204;1
0
20
ks
pp562
221
g
204;5
202;6
Ps
R
324.00
326.93
2
3
A
w
ie
R
67
323.37
n
n
s
k
0
g
s
2
k
0
218
0
0
S
m
R
ksA
120
3
A
w
2
57
g
w
g
327.21
4
0
Ps
g
g
30/1
R
g
2
A
3
w
2
5
2
3
w
60
m2
R
320.72
324.36
199/2;1
323.24
60/1
323.80
k
0
0
2
s
58/2
233;1
k
0
0
2
d
A
229
S
S
w
0
325.33
31
S
324.95
327.13
220/2
42/8
327.12
327.67
0
0
15
g4
wA
g
42/81 ks1
A0
0
g
55
w
g
g
0
g
g
m2
k
230
502
0
g
g
g
R
g
g
g
52
g
327.61
2
g
m
g
g
R
R
231
ZL1
S
m
236;2
B
g
324.17
505
R
506
R
g
g
507
Ps
g
237/2;2
325.23
236;3
64/4
w
A
3
2
325.47
w
64/3
3
323.42
2
235/6
235/6;4
R
235/8;3
g
0
15
R
328.05
g
S
0
g4
)
3
)
R
)
R
g
51
33/3
pp341218
33/2
S
g
S
237/2;3
g
td
232
331.73
A
15
0
33/4
332.32
333.42
331.71
329.10
42/12
w
g
w
)
331.20
42/11
w
4
509
S
R
)
S
R
R
'
237/2
238;4
R
508
3RM2
017 KDD
42/10
327.41
ks
20
0
329.51
R
33/1
B-R I I I a
g
kdA
328.38
A
w
53
S
504
g
R
m2
235/6;1
g
236;1
5
2
g
0
Miechów-Charsznica
42/91
326.24
ks
20
0
328.23
ps42/9 328.21
325.68
ks
20
w
0
42/9a
233;4
397
0 503
233;3
1
1
+
0
g
g
w
324.38
322.60
63
ps66
235/8
235/8;2
S
234/1
2
s
5
323.95
wA32
0
4
w
m
k 324.53
s
64
2
0
0
322.36
235/8;4
323.37
0
061/1
322.02
1
A
s
g
k
pp55a
501
R
327.74
w
m
1
g
0
kl
233;2
220/2;2
327,88
0
w
54
ks
20
32
g
w
323.61
235/6;2
3RM2
220/2;1
g
g
322.42
ks200+11
55b
0
320.87
td
g
s
2
235/8;1
k
234/1;2
m
2
3
A
w
321.79
62
324.01
65
0
0
235/6;3g
2
322.51
PE110 4.5m
m
w
321.90
3
2
323.90
pp61
324.06
62/1
234/1;3
321.47
323.41
59
g
325.05
2
A
3
w
g
5
0
s
2
s
2
0
k
325.78
0
326.55
325.30
0
'
0
'
'
'
'
#
Y
'
'
'
'
'
'
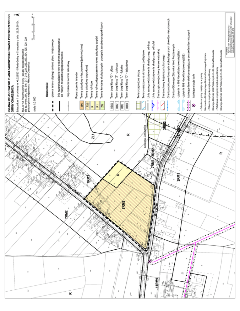
Istniej¹ce stacje trafo
Istniej¹ce linie elektroenergetyczne ze strefami technicznymi
- zbiornik 409 Niecki Miechowskiej (SE)
- zbiornik nr 408 Niecki Miechowskiej (NW)
Granica G³ównego Zbiornika Wód Podziemnych
'
40
z siedzib¹ w Katowicach KT- 313
cz³onek po³udniowej Okrêgowej Izby Urbanistów
mgr in¿. arch. Andrzej Banaœkiewicz -
Projektant:
G³ównego Zbiornika Wód Podziemnych nr 409 - Niecka Miechowska
- Po³udniowa czêœæ gminy znajduje siê w Granicy
G³ównego Zbiornika Wód Podziemnych nr 408 - Niecka Miechowska
- Pó³nocna czêœæ gminy znajduje siê w Granicy
'
20
Granica udokumentowanych archeologicznych obiektów nieruchomych
Strefa ochrony krajobrazu kulturowego
Strefa czêœciowej ochrony konserwatorskiej
Linie zasiêgu oddzia³ywania akustycznego od kolei
Linie zasiêgu oddzia³ywania akustycznego od drogi
Tereny nara¿one na okresowe podtapianie
Tereny zagro¿one erozj¹
Teren drogi klasy "D" - dojazdowa
Teren drogi klasy "L" - lokalna
Teren drogi klasy "Z" - zbiorcza
Teren drogi klasy "G" - g³ówa
Miechowsko - Dzia³oszyckiego Obszaru Chronionego Krajobrazu
'
0
26.08.2010r.
Tereny korytarzy ekologicznych i przedpola zasobów przyrodniczych
Tereny rolne z dopuszczeniem nowej zabudowy zagród
Tereny rolnicze
Tereny zabudowy zagrodowej
Tereny zabudowy mieszkaniowej jednorodzinnej
Przeznaczenie terenów:
nieprzekraczalne linie zabudowy
lub ró¿nym zasadach zagospodarowania
linie rozgraniczaj¹ce tereny o ró¿nym przeznaczeniu
- Ca³y obszar gminy znajduje siê w granicy
'
'
'
KDD
KDL
KDZ
KDG
ZN
R1
R
RM
MN
)
20
granica terenu objêtego zmian¹ planu miejscowego
Oznaczenia:
skala 1:2 000
po³o¿onych w miejscowoœci Miechów-Charsznica
dla dz. nr ew. 214, 215, 216, 217, 218, 221, 222, 223, 224, 225, 228, 229
Rys. nr 1/6 Przeznaczenie terenu i zasady zagospodarowania
Za³¹cznik nr 1 do uchwa³y nr XL/229/2010 Rady Gminy w Charsznicy z dnia
GMINY CHARSZNICA
m
N
ZMIANA MIEJSCOWEGO PLANU ZAGOSPODAROWANIA PRZESTRZENNEGO
R
ps562a
'
td
1
1
+
0
0
2
s
k
PE90 2m
R
0
4
w
g
198/1
198/1;3
324.80
w
A
3 198/1;1
w 2
4
0
k w
s
A
1
0
0
321.64
234/1;1
58/1
55
231;4
322.75
g
5
0
198/1;2
321.74
323.67
m
m2
7RM1
R
323.97
g
g
199/3;1
60/2
322.80
k
s
2
0
0
231;1
220/1
ks20
56
i2k
g
231;3
g
A
PE110 13m
0
2
0
5
s
k
228
325.78
324.84
326.09
42/71
S
219;3
219;1
219;2
219
42/7
324.44
37
30/2
w
g
323.32
318.54
P1
231;2
0
6
230;1
1
R
s
k
227;2
R
323.30
57
322.29
58
321.23 g2
321.25
3RM1
ks20
S
320.71
54
0
1
1
s
k
0
0
B-RII
m
4
0
w
5
2
g
323.14
54/1
320.97
323.26
226
1
1
s
A
227
227;1
226;1
y
5
2
g
PE110 13m
0
57/1
k
s
2
0
0
4
2
201/1;1
m2
200;2
200;1
0
A10
ks
e
N
199/3;2
199/2;2
g
g
R
0
g
2
g
5
6
2
2
0
R
199/2;3
5
2
201/2;1
g
g
S
w
3
A
PE110 4.5m
k
57/5
m
w
201/2;6
m
323.49
202;3
321.44
m
g
201/2;2
201/2;5
g
7RM3
R
R
g
4202;1
0
202;2
w
g
201/2;4
201/1;2
201/2;3
321.86
y
z
c
2
ks
m2
3
2
n
g
g
g
g
A
S
201/1;3
ps342/6
ps42/6
325.33
320.82
A
w
m2
222
53
S
5
323.35
2
g
)
g
202;4
R
R
R
eN
2
2
4
s
k
6
0
a
199/3
g
5
w
201/2
2
0
204
1
5
3
ks200
0
0
0
0
118
'
'
'
0
ks20
122/2
'
66
00
R
'
rmp
'
5
g2
179
'
R
'
g40
'
2
ks
'
'
'
ks20
'
'
w
0
'
'
5
g
'
'
'
'
'
'
123/2
0
1
3
w
.2
A7
1
5
2
k
s
0
1
w
9
2
c
2
s
k
A3
ie
g
3
0
203
9
w
0
5
10
1 .58
3
.4
7
5
g
2
3
7
6
1
5
w
D
K
7
w
n
A3
0
0
5
1
A
w
5
w
L
a
1
3
0
g
5
2
y
n
n
z
y
g2
5
6
0
0
1
3
0
0
a
0
0
9
0
2
0
2
s
k
9
2
9
0
3
2
wA3
'
'
w40
5
0
2
15
3
3
w40
1
1
0
5
1
w
2
s
k
A
0
td
0
w
4
ks
ks
20
0
g2
g2
'
'
'
'
'
'
32
'
'
'
'
A
'
'
'
'
'
w
'
'
'
'
'
'
'
'
'
'
'
'
'
'
'
'
L
'
'
'
'
'
'
eNA
'
'
'
'
0
s
8
2
5
0
+
ks
20
0
20
ks
k
g
0
6
a
0
0
0
5
A
0
0
6
g
w
2
s
k
7
2
2
1
0
+
5
A
1 ks
5
0
1
0
g2
2
1
32
eN
2
5
1
w
2
2
1
+
1
2
0
wA32
w
A
3
2
1
+
0
0
ks
20
0+
1
1
+
0
0
2
s
k
k
k
s
2
w
A
w
32
w
'
'
'
'
'
'
'
'
'
'
'
'
'
'
'
'
'
'
' '
A3
)
w
)
0
)
0
)
2
32
ks
A
w
w
5
)
g2
)
2
A
32
w
32
3
32
A
w
w
)
2
)
5
)
2
)
g
)
wA
3
0
0
4
w
1
0
2
ks
0
1
1
+
0
11
0
0
0
2
s
k
2
1
+
0
2
0
ks
0
1
0
w
2
5
s
w
A
3
32 2
ks200
k
eNA
g2
0
4
w
'
0
0
2
'
s
'
k
td
'
A
'
N
'
e
'