Roto_AluVision T540-6 do okien z mech. ruchomego słupka

Transkrypt

Roto_AluVision T540-6 do okien z mech. ruchomego słupka
PL
GB
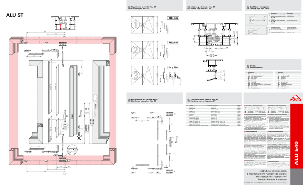
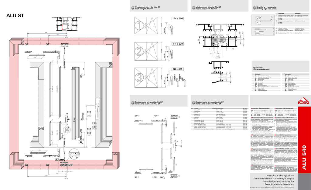
Wysokości skrzydeł Alu ST
Sash height Alu ST
PL
GB
ALU ST
Miejsce pod okucie Alu ST
Space required Alu ST
PL
GB
Szablony i narzędzia
Drilling jigs and tools
1
FH ≥ 590
10.1
2
3
12,5
700
14
GH ≥ 356
FH ≥ 590
1
1a
4
116
Oznaczenie
1
1a
Szablon do mech. klamki, listwy Jig for gearbox, connecting
popychacza, blokada rozwarcia rod, safety lock
Nr SAP:
212 544
Szablon do listwy popychacza
Jig for connecting rod
Nr SAP:
212 573
Description
2
3
4
Wkrętak krzyżowy
Philips screwdriver
DIN 5260 PH 2 - ISO 8764
DIN 5260 PH 2 - ISO 8764
Klucz sześciokątny SW 2,5 mm
Allen key 2.5 mm
Klucz sześciokątny SW 4 mm
Allen key 4 mm
24
RB i/2
FH ≥ 630
2
10.1
FH ≥630
17
GH ≥ 397
511
11,5
3
min. 31
max. 38
7
12,5
GH ≥ 424
14
FH ≥ 680
F H-G HS -175
F H-G HS -72
Zestawienie el. okucia Alu ST
Hardware overview Alu ST
1 ≥ 100
2 ≥ 100
3 ≥ 168
PL
GB
PL
GB
1
1
6
4
Ø6
7
10
Nr
1
2
3
4
5
6
7
8
Oznaczenia
Description
DK
RHi
RBi
FB
FH
FL
ÜBB
ÜBH
GH
GHS
FG
SP
MV
DK
RHi
RBi
FB
FH
FL
ÜBB
ÜBH
GH
GHS
FG
SP
MV
okucie rozwierno-uchylne
Wysokość ościeżnicy wewnątrz
Szer. ościeżnicy wewnątrz
Szer. skrzydła
Wys. skrzydła
Luz wrębowy
Szer. przylgi
Wys. przylgi
Wys. osadzenia klamki Wys. osadzenia klamki dla mech. ruchomego słupka
Masa skrzydła
Blokada obrotu
Zamknięcie środkowe
Artykuł
Component description
Zaczep V.01
Striker V.01
Zaczep V.02
Striker V.02
Czop 33
Locking pin 33
Najazd V.01
Run- up block V.01
Najazd V.02
Run- up block V.02
Narożnik
Corner drive
Najazd
Run- up block
Zaczep rygla VB 1/2
Striker VB 1/2
Zaczep rygla VB 3/4
Striker VB 3/4
Zaczep rygla VB 5/6
Striker VB 5/6
Rygiel VS1, B19,1 L152
Shootbolt rod VS1, B19,1 L152
Rygiel VS2, B18,3 L152
Shootbolt rod VS2, B18,3 L152
Rygiel VS3, B17,5 L152
Shootbolt rod VS3, B17,5 L152
Mechanizm ruchomego słupka wewnątrz
Concealed lever- operated espagnolette
Nr SAP:
212633
212634
212004
212762
212512
211995
212008
212118
212119
212120
212144
212145
212146
212264
Oznaczenia / zakres stosowania
ÜBB
FL
FB
FH
- Szerokość przylgi 21,5/22 mm
- Luz wrębowy
11,5 mm
- Szer. skrzydła
- Wys. skrzydła
Description / Field of application
22 mm
12 mm
370 mm - max.1600 mm
max. 2400 mm
Bezpieczeństwo funkcjonowania okuć
W celu zapewnienia stałej niezawodności funkcjonowania okuć należy przestrzegać:
1.Fachowego i prawidłowego montażu ele-
mentów okucia zgodniez niniejszą instrukcją.
2.Fachowego i prawidłowego montażu elementów w oknie.
3. Producent okien jest zobowiązany do przeka
zania użytkownikowi okna instrukcji obsługi-
i konserwacji lub warunków gwarancji.
4.Całe okucie może się składać wyłącznie
z oryginalnych elementów systemu Roto. Użycie elementów spoza systemu wyklucza dochodzenie wszelkich roszczeń gwarancyjnych.
Nie stosować uszczelnień z zawartością kwasów, ponieważ mogą powodować korozję okuć.
Przy szkleniu okien należy przestrzegać wytycznych wypierania szyb do konkretnych typów
okien. Narożniki profili muszą być prostokątne,
powierzchnia gładka i bez kleju. Sprawdzić okno
pod względem funkcjonalności i prawidłowości
montażu okucia. Należy bezwzględnie przestrzegać warunków bezpieczeństwa i wskazówek
montażowych.
8
Wyłączenie odpowiedzialności
511
Producent okuć nie odpowiada za wadliwe
funkcjonowanie i usterki elementów okuć czy
wyposażonych w nie okien lub drzwi balkonowych, jeśli wynikają one z niedostatecznych danych oferty przetargowej, nieprzestrzegania
przepisów montażu czy diagramów ilustrujących
zakres stosowania, albo jeśli są narażone na nadmierne zanieczyszczenie.
Gwarancja dotyczy tylko oryginalnych elementów
okucia Roto (elementy okucia i śruby/wkręty).
Należy przestrzegać dodatkowych wytycznych
dotyczących odpowiedzialności produktowej.
7
4
23
8,5
Tilt-and-turn hardware
Internal frame height
Internal frame width
Sash width
Sash height
Clearance
Sash overlap width
Sash overlap height
Handle height
Handle height espagnolette
Sash weight
Mishandling device
Centre lock
Zestawienie el. okucia Alu ST
Hardware overview Alu ST
Przepisy gwarancyjne
106
6
G HS -175
10
1 GHS ≥ 256
2 GHS ≥ 297
3 GHS ≥ 256
20
1 GH ≥ 356
2 GH ≥ 397
3 GH ≥ 424
2
Skróty
Abbreviations
Bezpieczeństwo
ÜBB
FL
FB
FH
- Sash overlap width 2
1,5/22 mm
- Clearance
11,5 mm
- Sash width
- Sash height
22 mm
12 mm
370 mm - max.1600 mm
max. 2400 mm
Functional safety of the hardware
To ensure continual functional safety of the hardware,
the following should be observed:
1. Professional installation of the hardware components according to these installation instructions.
2. Professional installation of the elements during
the window installation process.
3. The window fabricator has to give the maintenance and operation instructions, and where
appropriate, the product liability guidelines to the user.
4. The entire hardware may consist of only original
Roto system components. The use of non-Roto
components excludes any liability.
Product liability regulations
Do not use any acid cross-linked sealing compounds which could lead to corrosion of the hardware components. The glazing spacer-block regulations for the glazing method are to be
adhered to.
Profile corners must be right-angled and free of burrs
and adhesive. After completion of the hardware
installation, an operational check must be carried out on
the window. The “safety instructions” and “important
information“ are to be adhered to without fail.
Product liability – Liability exclusion
The hardware manufacturer is not liable for malfunctions or damage to the hardware and to the
windows or balcony-doors equipped with the
hardware, if any such malfunctions or damage
have been caused by inadequate tendering procedures or failure to
adhere to the installation instructions or application drawings or a high level of soiling. The
guarantee only covers original Roto components
(hardware components and screws).
Please observe the additional product liability guidelines.
Safety instructions
W przypadku braku danych patrz instrukcje
For missing specificatons see installation
ALU 540 (AB 3140), (AB 3141) lub (AB 3144).
Wszystkie rysunki pokazują okno prawe. instructions ALU 540 (AB 3140), (AB 3140) or (AB
3144). All drawings are shown as a “DIN rightWymiary podane w mm.
hand version“- according to DIN German Industrial
Norm (viewed from inside). All dimensions are in
5
2
116
700
6
1
RB i/2
1
3
Instrukcja obsługi okien
z mechanizmem ruchomego słupka
Installation instructions for
French-window hardware
AB 3143-0 PL Stan: Sierpień 2009 Zastrzega się możliwość zmian / Subject to change
ALU 540
106
FH ≥ 680
3
G HS -72
PL
GB
PL
GB
Wys. skrzydła:
Sash height
PL
GB
ALU ST-A / ST-R
Rygiel krawędziowy do mechanizmu ruchomego słupka (ST-K)
Mounting information
PL
GB
RBi/2+8
FH ≥ 620
Artykuł
Zaczep rygla ST-K
Najazd
Wkręt 3,9x25
Rygiel krawędziowy ST dolny
Rygiel krawędziowy ST górny
Domponent description
Striker ST- K
Run- up block
Countersunk tapping screw 3,9x25
Bottom shootbolt
Top shootbolt
GH ≥ 388
106
(Ø3)
(68)
10.1
FH ≥ 620
1
Nr
1
2
3
4
5
Zestawienie el. okucia ST-K
Hardware overview ST-K
PL
GB
(210)
3
Wysokości skrzydeł Alu ST-K
Sash height Alu ST-K
- na zapytanie
- on request
(Ø3)
FH ≥ 670
10.1
FH ≥ 670
2
14
FH ≥ 660
12-13,9
5
RB i/2
GH ≥ 335
min. 3
max. 4,2
GH ≥ 428
(Ø3)
FH ≥ 660
10.1
FH ≥ 780
FH ≥ 710
(210)
3
FH ≥ 780
GH ≥ 390
FH ≥ 710
3
106
(68)
GH ≥ 450
FB2
F H-G HS -175
ST-R
FB1
2
1
RBi/2+14
PL
GB
Zestawienie elementów okucia ST-A, ST-R
Hardware overview ST-A, ST-R
ST-A
ST-R
1 ≥ 100
2 ≥ 100
3 ≥ 162
ST-A
PL
GB
1
Zestawienie elementów okucia ST-A, ST-R
Hardware overview ST-A, ST-R
Numer
1 Zaczep rygla VB 1/2
Zaczep rygla VB 3/4
Zaczep rygla VB 5/6
2 Najazd
3 Rygiel VS1, B19,1 L152
Rygiel VS2, B18,3 L152
Rygiel VS3, B17,5 L152
4 Suwak ST-R VS1
Suwak ST-R VS2
Suwak ST-R VS3
5 Nakładany mech. słupka (ST-A)
PL
GB
Zatrzask
Bullet catch
Artykuł
component description Nr SAP:
Striker VB 1/2
212118
Striker VB 3/4
212119
Striker VB 5/6
212120
Run- up block
212008
Shootbolt rod VS1, B19,1 L152
212144
Shootbolt rod VS2, B18,3 L152
212145
Shootbolt rod VS3, B17,5 L152
212146
Slider ST-R VS1
212141
Slider ST-R VS2
212142
Slider ST-R VS3
212143
Surface- mounted lever espagnolette
211994
3
PL
GB
10
1 GHS ≥ 288
2 GHS ≥ 328
3 GHS ≥ 288
3
Miejsce pod okucie dla Alu ST-A, ST-R
Space required ALU ST-A, ST-R
106
5
10
198
6
6
10
6
G HS - 175
1 GH ≥ 388
2 GH ≥ 428
3 GH ≥ 450
1
10
4
(Ø3)
SW 2,5
Wys. osadz. klamki
106
(Ø3)
198
7
10
FB2
42
41
13
18
26
4
5
3
max. 7
7.5 +1.5
11,5
min. 11.5
2,5
5
2,5
FB2-84
Zatrzask
Nr Il. szt. Artykuł
41
1
Zatrzask
Kolor
Nr SAP:
Il. szt./op.
-
334 667
10
Bullet catch
10 -1
3
3
8,5
2
2
RB i/2
1
1
Pos. Pcs. Description
41
Miejsce pod okucie, nakładany
mechanizm ruchomego słupka (ST-A)
Space required
lever operated espagnolette (ST-A)
Miejsce pod okucie:
patrz rowek ościeżnicy
Space required
please see groove in the frame
1
Bullet catch
Colour
Mat.-No.
-
334 667
Pack.unit.
10
Nr SAP:
301548
212008
213006
301547
301545