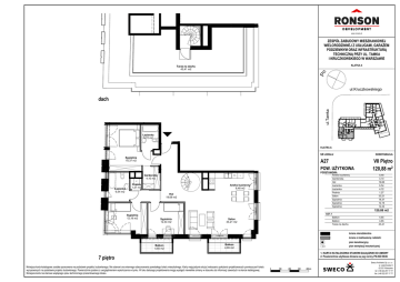
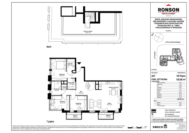
Pn A27 VII Piętro 120,88 m2 7 piętro dach

Transkrypt

Pn A27 VII Piętro 120,88 m2 7 piętro dach
www.ronson.pl
ZESPÓŁ ZABUDOWY MIESZKANIOWEJ
WIELORODZINNEJ Z USŁUGAMI, GARAŻEM
PODZIEMNYM ORAZ INFRASTRUKTURĄ
TECHNICZNĄ PRZY UL. TAMKA
I KRUCZKOWSKIEGO W WARSZAWIE
KLATKA A
Pn
Taras na dachu
43,41 m2
ul.Kruczkowskiego
dach
g=22,69
1 nawiewni
ul.Tamka
d=22.14
k
1 nawiewni
k
1 nawiewni
k
2 nawiewni
ki
1 nawiewni
k
1 nawiewni
k
1 nawiewni
W+
1 nawiewnik
k
CO
1 nawiewnik
1 nawiewnik
1 nawiewni
k
1 nawiewni
k
1 nawiewni
1 nawiewnik
k
1 nawiewnik
Łazienka
4,72 m2
1 nawiewnik
1 nawiewnik
1 nawiewnik
KLATKA A
NR LOKALU
Sypialnia
18,37 m2
KONDYGNACJA
A27
VII Piętro
120,88 m2
POW. UŻYTKOWA
PODSTAWOWA
Zm
P
Aneks kuchenny
8,48 m2
Hol
19,69 m2
Sypialnia
12,16 m2
1 nawiewnik
Łazienka
6,54 m2
Pralnia
1,27 m2
Aneks kuchenny
Garderoba
Hol
Łazienka
Łazienka
Pralnia
Salon
Sypialnia
Sypialnia
Sypialnia
L
1 nawiewnik
Garderoba
4,10 m2
Sypialnia
12,34 m2
1 nawiewnik
Balkon
4,65 m2
120,88 m2
A27.1
Balkon
Balkon
Taras na dachu
Salon
33,21 m2
1 nawiewnik
8,48
4,10
19,69
6,54
4,72
1,27
33,21
18,37
12,16
12,34
4,65
4,65
43,41
ściana nierozbieralna
1 nawiewnik
ściana z możliwością rozbiórki
pion kanalizacyjny
pion wentylacji mechanicznej
Balkon
4,65 m2
1. KARTA KATALOGOWA STANOWI ZAŁĄCZNIK DO UMOWY
2. Powierzchnie użytkowe zliczane są wg normy PN­ISO 9836
7 piętro
Niniejsza karta katalogowa została opracowana na podstawie projektu budowlanego. Nie stanowi ona wiernego odwzorowania powstałego lokalu mieszkalnego. Karty mają jedynie służyć wskazaniu położenia projektowanych pomieszczeń lokalu
wyrysowanych na podstawie projektu budowlanego. Powierzchnie podano z uwzględnieniem wykończenia w tynku. W toku dalszego projektowania mogą wystąpić niewielkie zmiany w stosunku do informacji zawartych na karcie katalogowej.
Niniejsza karta nie stanowi wiążącego opisu technicznego prezentowanego lokalu.
0
100
200
300
400cm
Sweco Architekci Sp. z o. o.
ul. Lelechowska 5
02­351 Warszawa
tel: (+48 22) 257 17 77
fax: (+48 22) 257 17 77