Projekt Wykonawczy

Transkrypt

Projekt Wykonawczy
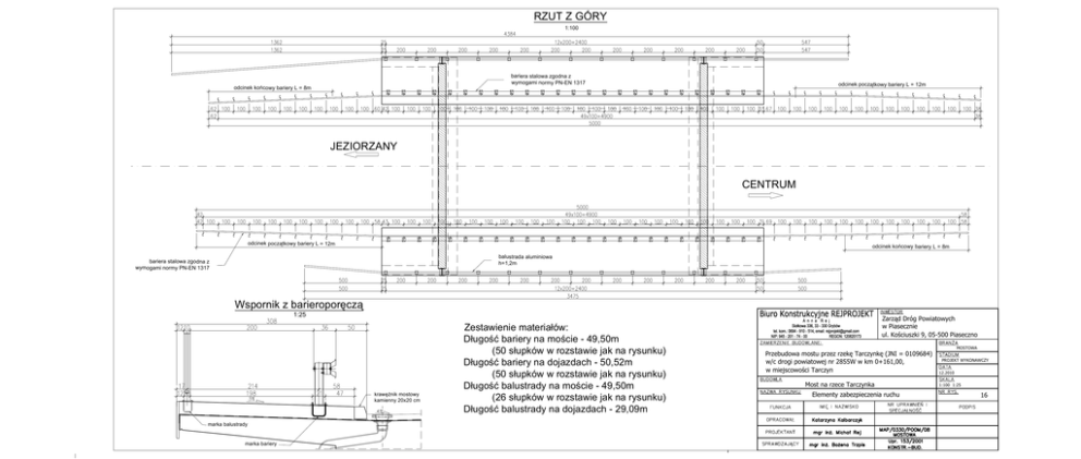
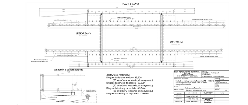
RZUT Z GÓRY
1:100
bariera stalowa zgodna z
wymogami normy PN-EN 1317
odcinek końcowy bariery L = 8m
odcinek początkowy bariery L = 12m
JEZIORZANY
CENTRUM
odcinek początkowy bariery L = 12m
odcinek końcowy bariery L = 8m
balustrada aluminiowa
h=1,2m
bariera stalowa zgodna z
wymogami normy PN-EN 1317
Wspornik z barieroporęczą
1:25
krawęŜnik mostowy
kamienny 20x20 cm
marka balustrady
marka bariery
Zestawienie materiałów:
Długość bariery na moście - 49,50m
(50 słupków w rozstawie jak na rysunku)
Długość bariery na dojazdach - 50,52m
(50 słupków w rozstawie jak na rysunku)
Długość balustrady na moście - 49,50m
(26 słupków w rozstawie jak na rysunku)
Długość balustrady na dojazdach - 29,09m
Zarząd Dróg Powiatowych
w Piasecznie
ul. Kościuszki 9, 05-500 Piaseczno
MOSTOWA
Przebudowa mostu przez rzekę Tarczynkę (JNI = 0109684)
w/c drogi powiatowej nr 2855W w km 0+161,00,
w miejscowości Tarczyn
Most na rzece Tarczynka
Elementy zabezpieczenia ruchu
PROJEKT WYKONAWCZY
12.2010
1:100 1:25
16