Ankieta - pompy ciepła

Transkrypt

Ankieta - pompy ciepła
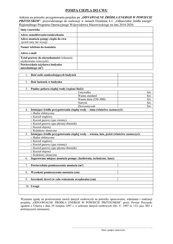
POMPA CIEPŁA DO CWU
Ankieta na potrzeby przygotowania projektu pn „ODNAWIALNE ŹRÓDŁA ENERGII W POWIECIE
PRZYSUSKIM”, przewidzianego do realizacji w ramach Działania 4.1: „Odnawialne źródła energii”
Regionalnego Programu Operacyjnego Województwa Mazowieckiego na lata 2014-2020.
Imię i nazwisko
Adres zameldowania/zamieszkania
Adres montażu pompy ciepła do cwu
(jeżeli inny niż wyżej)
Numer telefonu do kontaktu
Adres e-mail
Tytuł prawny do nieruchomości (własność,
użytkowanie wieczyste)
Powierzchnia użytkowa budynku
mieszkalnego (m2)
1.
Ilość osób zamieszkujących budynek
2.
Ilość łazienek w budynku
Punkty poboru ciepłej wody (wpisać ilość):
Umywalka
Wanna standard
Wanna duża (250-300l)
Natrysk
Zlewozmywak
4. Istniejące źródło przygotowania ciepłej wody – zima (właściwe zaznaczyć):
□ Bojler elektryczny
□ Kocioł węglowy
□ Kocioł gazowy (gaz ziemny)
□ Kocioł gazowy (gaz płynny/zbiornik)
□ Kocioł olejowy
□ Kolektory słoneczne
5. Istniejące źródło przygotowania ciepłej wody – wiosna, lato, jesień (właściwe zaznaczyć):
□ Bojler elektryczny
□ Kocioł węglowy
□ Kocioł gazowy (gaz ziemny)
□ Kocioł gazowy (gaz płynny/zbiornik)
□ Kocioł olejowy
□ Kolektory słoneczne
6. Sugerowane miejsce montażu pompy: (kotłownia, techniczne, inne):
3.
7.
Powierzchnia pomieszczenia montażu (m²)
8.
Wysokość pomieszczenia montażu (cm)
9.
Szerokość drzwi (w celu wniesienia urządzenia) (cm)
Szt.
Szt.
Szt.
Szt.
Szt.
10. Uwagi:
Wyrażam zgodę na przetwarzanie moich danych osobowych na potrzeby opracowania, wdrażania i realizacji
projektu „ODNAWIALNE ŹRÓDŁA ENERGII W POWIECIE PRZYSUSKIM” przez Powiat Przysuski
zgodnie z Ustawą z dnia 29 sierpnia 1997 r. o ochronie danych osobowych (Dz. U. 1997 nr 133, poz. 883 z
późniejszymi zmianami).
..………………………………………………………………..
Data i podpis właściciela