PB Poddasza - TPR Inwestycje

Transkrypt

PB Poddasza - TPR Inwestycje
SCHODY ŻELBETOWE gr. 15cm
P.04
PŁYTKI GRESOWE NA KLEJU gr. 1cm
SCHODY ŻELBETOWE gr. 20cm
LEGENDA:
1- Gazowy kocioł dwufunkcyjny
firmy Viessmann z zamkniętą komorą
- piony wody zimnej i ciepłej
W1
- piony kanalizacji sanitarnej
K1
1
2
3
- piony gazowy
G1
4
D.01
POKRYCIE Z DACHÓWKI BETONOWEJ
ŁATY 5x5cm
KONTRŁATY 5X3c
FOLIA PAROPRZEPUSZCZALNA PRZYMOCOWANA DO KROKWI
KROKWIE wg. konstrukcji
instalacja gazu
kanalizacja sanitarna
D.02
PAPA NAWIERZCHNIWA
PAPA OPODKŁADOWA
TERMOIZOLACJA gr. 14cm
PAROIZOLACJA
WARSTWA SPADKOWA WYLEWKA BETONOWA gr. 3-6cm
STROP ŻELBETOWY gr. 15cm
TYNK GIPSOWY gr. 1cm
instalacja wodociągowa
instalacje elektryczne
1 281
28
9
1 207
445
9
315
28
465
granica działki
140
155
164
130
TYPA 900
170
18
15
Sz.04
155
164
2%
budynek
C
C
0
0
1 Ks 1
1
40st
-1
RS
K2
18
0
1
18
0
40st
H=1,9m
0,5%
RS
D.01
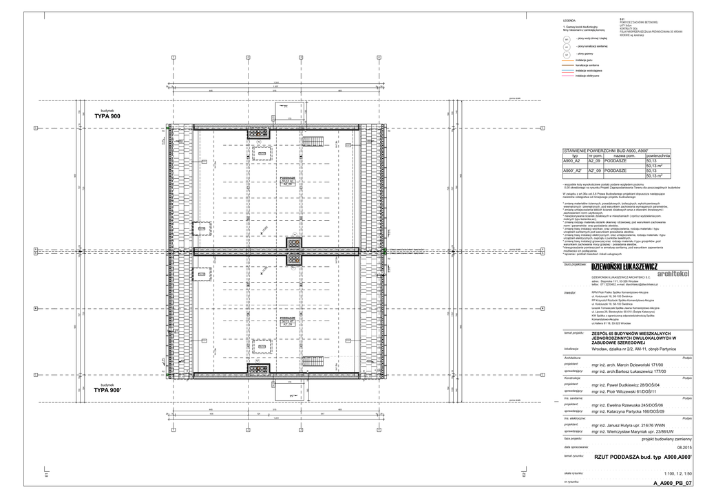
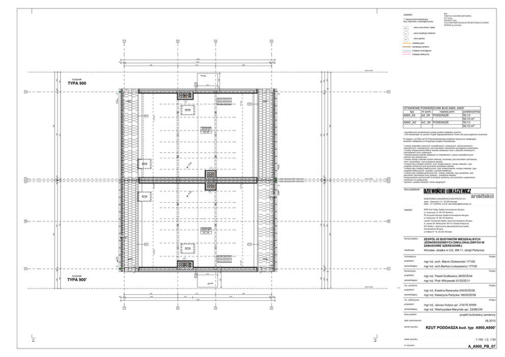
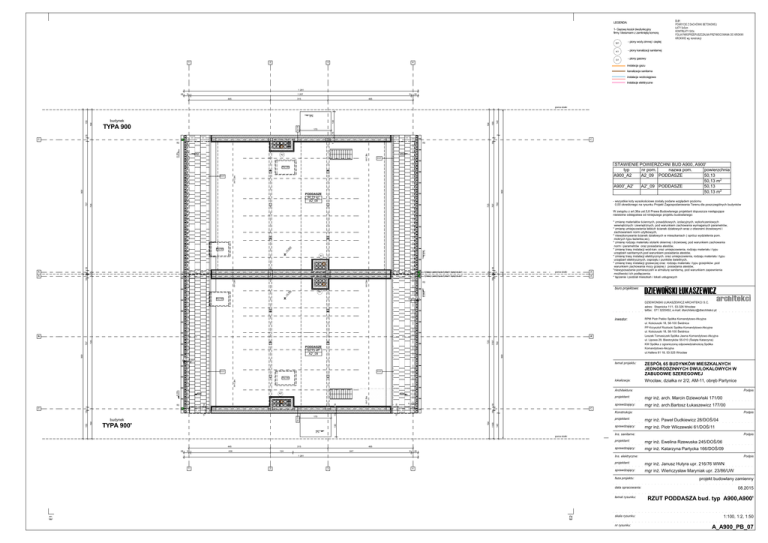
ZESTAWIENIE POWIERZCHNI BUD A900, A900'
typ
nr pom.
nazwa pom.
powierzchnia
A900_A2
A2_09 PODDASZE
50,13
50,13 m2
A900'_A2'
A2'_09 PODDASZE
50,13
50,13 m2
78x140
900
- wszystkie koty wysokościowe zostały podane względem poziomu
0,00 określonego na rysunku Projekt Zagospodarowania Terenu dla poszczególnych budynków
760
707
725
PODDASZE
50,13 m2
A2_09
725
707
900
H=1,9m
D.01
W związku z art.36a ust.5,6 Prawa Budowlanego projektant dopuszcza następujące
nieistotne odstępstwa od niniejszego projektu budowlanego:
0,5%
00
,9
+5
0
18
-1
dylatacja pomiędzy budynkami styropian 2cm
0
2
1 Ks
00
,9
+5
-1
H=1,9m
H=1,9m
2
A
granica działki
A
18
dylatacja pomiędzy budynkami styropian 2cm
RS
biuro projektowe:
K1'
78x140
16
18
0,5%
18
A
2
22
2 2
A
1 Ks
22
18
K1
2
2 2
78x140
* zmianę materiałów ściennych, posadzkowych, izolacyjnych, wykończeniowych
wewnętrznych i zewnętrznych, pod warunkiem zachowania wymaganych parametrów,
* zmianę umiejscowienia lekkich ścianek działowych wraz z otworami drzwiowymi i
zachowaniem norm użytkowych,
* niewykonywanie ścianek działowych w mieszkaniach ( oprócz wydzielenia pom.
mokrych typu łazienka,wc),
* zmianę rodzaju materiału stolarki okiennej i drzwiowej, pod warunkiem zachowania
norm i parametrów oraz posiadania atestów,
* zmianę trasy instalacji wod-kan. oraz umiejscowienia, rodzaju materiału i typu
urządzeń sanitarnych,pod warunkiem posiadania atestów,
* zmianę trasy instalacji elektrycznych. oraz umiejscowienia, rodzaju materiału i typu
urządzeń elektrycznych, osprzętu i punktów świetlnych,
* zmianę trasy instalacji grzewczej oraz rodzaju materiału i typu grzejników ,pod
warunkiem zachowania mocy grzejnej i posiadania atestów,
*niewyposażanie pomieszczeń w armaturę sanitarną, pod warunkiem zapewnienia
możliwości ich podłączenia.
* łączenie i podział mieszkań i lokali usługowych
3
DZIEWOŃSKI ŁUKASZEWICZ ARCHITEKCI S.C.
adres: Stopnicka 11/1, 53-326 Wrocław
telfax: 071 3220452, e-mail: [email protected]
RPM Piotr Paśko Spółka Komandytowo-Akcyjna
ul. Kościuszki 18, 58-100 Świdnica
PP Krzysztof Roztocki Spółka Komandytowo-Akcyjna
ul. Kościuszki 18, 58-100 Świdnica
Leszek Tomasiczek Spółka Jawna Komandytowo-Akcyjna
ul. Lipowa 29, Biestrzyków 55-010 (Święta Katarzyna)
KW Spółka z ograniczoną odpowiedzialnością Spółka
Komandytowo-Akcyjna
ul.Hallera 81 18, 53-325 Wrocław
temat projektu:
ZESPÓŁ 65 BUDYNKÓW MIESZKALNYCH
JEDNORODZINNYCH DWULOKALOWYCH W
ZABUDOWIE SZEREGOWEJ
lokalizacja:
Wrocław, działka nr 2/2, AM-11, obręb Partynice
3
900
16
760
725
900
PODDASZE
50,13 m2
A2'_09
707
707
725
A
707
A
inwestor:
18
D.01
D.01
40st
1 Ks 1
1
0
0
0
-1
0
18
1
H=1,9m
K2'
18
RS
Architektura:
4,55 m2
18
40st
18
0,5%
H=1,9m
78x140
mgr inż. arch. Marcin Dziewoński 171/00
sprawdzający:
mgr inż. arch.Bartosz Łukaszewicz 177/00
C
18
Konstrukcja:
140
130
TYPA 900'
15
15
170
164
budynek
155
155
Sz.04
164
155
15
18
C
2%
445
9
315
436
465
124
647
9
2
mgr inż. Paweł Dudkiewicz 28/DOŚ/04
sprawdzający:
mgr inż. Piotr Wilczewski 61/DOŚ/11
mgr inż. Ewelina Rzewuska 245/DOŚ/06
sprawdzający:
mgr inż. Katarzyna Partycka 166/DOŚ/09
Ins. elektryczne:
3
4
mgr inż. Janusz Hutyra upr. 216/76 WWN
sprawdzający:
mgr inż. Wieńczysław Maryniak upr. 23/86/UW
data opracowania:
E2
Podpis
projektant:
faza projektu:
E1
Podpis
projektant:
28
1 281
1
Podpis
projektant:
Ins. sanitarne:
granica działki
28
Podpis
projektant:
projekt budowlany zamienny
08.2015
temat rysunku:
RZUT PODDASZA bud. typ A900,A900'
skala rysunku:
1:100, 1:2, 1:50
nr rysunku:
A_A900_PB_07