doczz
  • Wejść
  • Rejestracja
Katalog

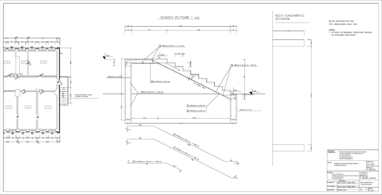
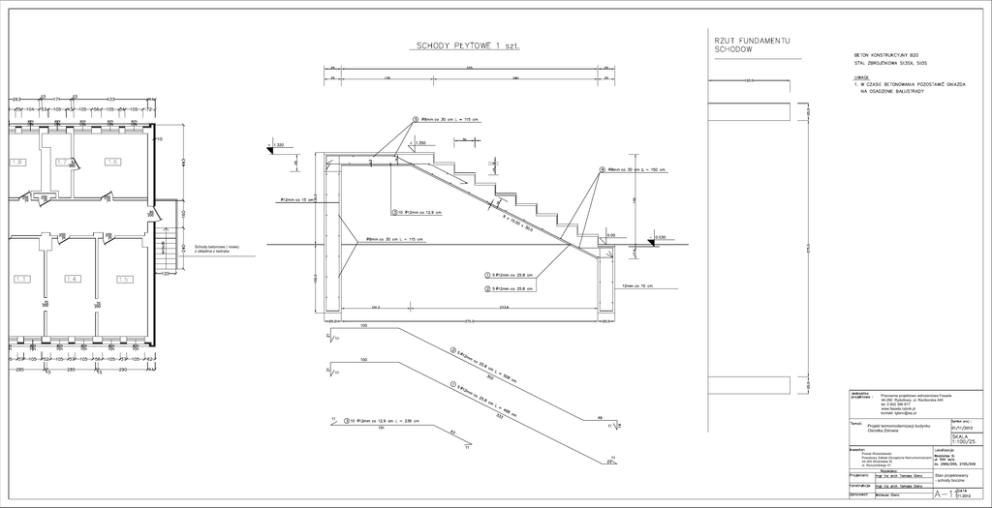
Schody betonowe ( nowe)

download Reklamacja

Transkrypt

Schody betonowe ( nowe)
Schody betonowe ( nowe)
z okładina z lastryka
Pracownia projektowo wdrozeniowa Fasada
44-280 Rydultowy, ul. Raciborska 445
tel. 0 602 396 817
www.fasada.rybnik.pl
kontakt: [email protected]
Projekt termomodernizacji budynku
Ośrodka Zdrowia
Powiat Wodzisławski
Powiatowy Zakład Zarządznia Nieruchomościami
44-300 Wodzisław Sl.
ul. Wyszyńskiego 41
Stan projektowany
- schody boczne

Podobne dokumenty

Schody Oferujemy Państwu schody na konstrukcji drewnianej jak i

Schody Oferujemy Państwu schody na konstrukcji drewnianej jak i

Bardziej szczegółowo

kraty pomostowe i stopnie

kraty pomostowe i stopnie

Bardziej szczegółowo

Występami dzieci ze szkoły specjalnej oraz pokazem szermierki

Występami dzieci ze szkoły specjalnej oraz pokazem szermierki

Bardziej szczegółowo

Opis projektu - Mapa Dotacji

Opis projektu - Mapa Dotacji

Bardziej szczegółowo

Schody kręcone Rintal

Schody kręcone Rintal

Bardziej szczegółowo

MJGranit - Schody granitowe

MJGranit - Schody granitowe

Bardziej szczegółowo

"Schubert" Producent Schodow i Balustrad, Kalisz

"Schubert" Producent Schodow i Balustrad, Kalisz

Bardziej szczegółowo

Fasada czyścik_INF

Fasada czyścik_INF

Bardziej szczegółowo

PROGRAM KURSU CAD+3D

PROGRAM KURSU CAD+3D

Bardziej szczegółowo

Wicemiss Polski chce na dyskoteki. A tu zaczynają

Wicemiss Polski chce na dyskoteki. A tu zaczynają

Bardziej szczegółowo

SCHODY ATRIUM SYSTEM SCHODY KRECONE ATRIUM 13

SCHODY ATRIUM SYSTEM SCHODY KRECONE ATRIUM 13

Bardziej szczegółowo

Projekt budowlany przebudowy wraz z jego termomodernizacją

Projekt budowlany przebudowy wraz z jego termomodernizacją

Bardziej szczegółowo
2026 © doczz.pl
O nas | DMCA / GDPR | Nadużycie