przedwiośnie 45 A4 poddasze

Transkrypt

przedwiośnie 45 A4 poddasze
92
51
8
5
skala 1:20
8
35
proj. wentylacja z rury SPIRO Ø15
8
proj. wentylacja z rury SPIRO Ø15
5
24
16
k
65
proj. wentylacja z rury SPIRO Ø15
16
11
16
11
D
11
67
63
65
935
16 16
11 11
9 7
11
4
5a
16
B
4
5a
67
nr 6
11
4 5a
4 5a
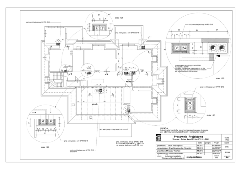
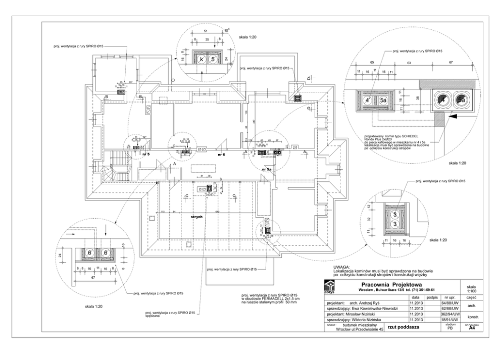
projektowany komin typu SCHIEDEL
Rondo Plus 2xØ20
do pieca kaflowego w mieszkaniu nr 4 i 5a
lokalizacja musi być sprawdzona na budowie
po odkryciu konstrukcji stropów
67
27
A
65
63
11
11 16 16 11
38
6 6
129
A
11
nr 5
8
24
16
24
16 8
k 5
16 16
8 8 11 8
133
925
51
8 35 8
16
88
447
156
11
D
B
38
11
11
skala 1:20
252
A
nr 5a
38
11 16 11
54
proj. wentylacja z rury SPIRO Ø15
C
12
C
45
8
11 32 11
305
81
110
84
640
3
3
3
3
11
11 32 12
32
strych
11 16 16
16
16
skala 1:20
16
11
8 8
6
11
16
16
8
8
24
6
proj. wentylacja z rury SPIRO Ø15
67
UWAGA:
Lokalizacja kominów musi być sprawdzona na budowie
po odkryciu konstrukcji stropów i konstrukcji więźby
Pracownia Projektowa
proj. wentylacja z rury SPIRO Ø15
skala 1:20
proj. wentylacja z rury SPIRO Ø15
spędzana
proj. wentylacja z rury SPIRO Ø15
w obudowie FERMACELL 2x1,5 cm
na ruszcie stalowym profil 50 mm
abrys
Wrocław , Bulwar Ikara 13/5 tel. (71) 351-59-61
data
podpis
nr upr.
projektant: arch. Andrzej Ryś
11.2013
64/88/UW
sprawdzający: Ewa Kowalewska-Niewadzi
11.2013
62/88/UW
projektant: Mirosław Niziński
11.2013
362/94/UW
sprawdzający: Wiktoria Nizińska
11.2013
18/91/UW
stadium
obiekt :
budynek mieszkalny
rzut poddasza
PB
Wrocław ul.Przedwiośnie 45
skala
1:100
częsć
arch.
konstr.
nr rysunku
A4