projekt zamienny do projektu pawilonu zaplecza sportowego dla

Transkrypt

projekt zamienny do projektu pawilonu zaplecza sportowego dla
LEGENDA:
- ściana nowoprojektowana - Porotherm
gr. 25cm
dozownik w płynie 0,5l
MERIDA D27S
45
45
45
- elementy betonowe
305
205
305
205
0.14-2
100
85
15
205
305
80
305
250
0.12-2
0.12-4
0.12
suszarka do włosów SLON f-my MARTELA
umywalka KOŁO NOVA TOP 45cm
0.12-3
Widok - 0.12-1
Widok - 0.12-2
Widok - 0.12-3
Widok - 0.12-4
60
30
67
30
60
30
60
30
305
205
250
305
305
205
250
013.-2
mydelniczka
MERIDA
Widok - 0.13-1
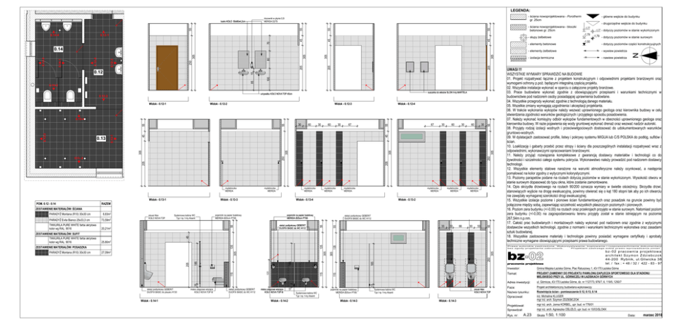
POM. 0.12 - 0.14
67
55
30
55
60
45
55
30
45
305
0.13
0.13-1
0.13-3
55
0.13-4
mydelniczka
MERIDA
mydelniczka
MERIDA
Widok - 0.13-3
mydelniczka
MERIDA
mydelniczka
MERIDA
mydelniczka
MERIDA
Widok - 0.13-4
mydelniczka
MERIDA
mydelniczka
MERIDA
Widok - 0.13-2
RAZEM
ZESTAWIENIE MATERIAŁÓW: ŚCIANA
20,21m2
ZESTAWIENIE MATERIAŁÓW: SUFIT
TIKKURILA PURE WHITE farba akrylowa
kolor wg RAL: 9016
25,80m2
Systemowa kabina WC
Typ I np. f-my Alsanit
pojemnik na papier toaletowy
MERIDA Ø25cm PT9S
stelaż podtynkowy GEBERIT
DUOFIX BASIC do WC H112
stelaż podtynkowy GEBERIT
DUOFIX BASIC do WC H112
33
30
66
30
53
305
135
185
250
305
135
15
miska ustępowa wisząca
KOŁO NOVA TOP 6l
Widok - 0.14-2
15
stelaż podtynkowy GEBERIT
DUOFIX BASIC do WC H112
Systemowa kabina WC
Typ I np. f-my Alsanit
- nawiew powietrza
bz-02
pojemnik na papier toaletowy
MERIDA Ø25cm PT9S
pisuar Alex
KOŁO NOVA TOP
Systemowa kabina WC
Typ I np. f-my Alsanit
Temat:
Gmina Miejska Łaziska Górne, Plac Ratuszowy 1, 43-170 Łaziska Górne
_________________________________________________________________________________________
PROJEKT ZAMIENNY DO PROJEKTU PAWILONU ZAPLECZA SPORTOWEGO DLA STADIONU
_________________________________________________________________________________________
MIEJSKIEGO PRZY UL. GÓRNICZEJ W ŁAZISKACH GÓRNYCH
_________________________________________________________________________________________
Adres inwestycji:
ul. Górnicza, 43-170 Łaziska Górne, dz. nr 1127/73, 976/7, 6, 119/5, 1250/7
_________________________________________________________________________________________
Faza:
architektoniczny budowlano-wykonawczy
Projekt
_________________________________________________________________________________________
ścian - pomieszczenie 0.12, 0.13, 0.14
Rozwinięcia
_________________________________________________________________________________________
inż. Michalina KLUGER
_________________________________________________________________________________________
inż. arch. Szymon ZDZIEBCZOK
mgr
_________________________________________________________________________________________
inż. arch. Jonna KORBEL, upr. bud. nr 776/01
mgr
_________________________________________________________________________________________
Nazwa rysunku:
Opracował:
Widok - 0.14-3
bz-02 pracownia projektowa
architekt Szymon Zdziebczok
44-200 Rybnik, ul.Gliwicka 38
tel. / fax : + 48 / 32 / 422 - 83 - 97
pracownia projektowa
115
115
125
115
Widok - 0.14-1
miska ustępowa wisząca
KOŁO NOVA TOP 6l
- wywiew powietrza
UWAGI !!!
WSZYSTKIE WYMIARY SPRAWDZIĆ NA BUDOWIE
01. Projekt rozpatrywać łącznie z projektem konstrukcyjnym i odpowiednimi projektami branżowymi oraz
wymogami ochrony p.poż. będącymi integralną częścią projektu.
02. Wszystkie instalacje wykonać w oparciu o załączone projekty branżowe.
03. Prace budowlane wykonać zgodnie z obowiązującymi przepisami i warunkami technicznymi w
budownictwie pod nadzorem osoby posiadającej uprawnienia budowlane.
04. Wszystkie przegrody wykonać zgodnie z technologią danego materiału.
05. Wszelkie zmiany wymagają uzgodnienia i akceptacji projektanta.
06. W trakcie wykonania wykopów należy wezwać uprawnionego geologa oraz kierownika budowy w celu
stwierdzenia zgodności warunków geologicznych i przyjętego sposobu posadowienia.
07. Należy wykonać komisyjny odbiór wykopów fundamentowych w obecności uprawnionego geologa oraz
kierownika budowy. W razie pojawienia się wody gruntowej wykonać drenaż oraz wezwać nadzór autorski.
08. Przyjęty rodzaj izolacji wodnych i przeciwwilgociowych dostosować do udokumentowanych warunków
gruntowo-wodnych.
09. W dylatacjach zastosować profile, listwy i pokrywy systemu MIGUA lub C/S POLSKA do podłóg, sufitów i
ścian.
10. Loaklizację i gabarty przebić przez stropy i ściany dla poszczególnych instalatacji rozpatrywać wraz z
odpowiednimi, wykonawczymi opracowaniami branżowymi.
11. Należy przyjąć rozwiązania kompleksowe z gwarancją dostawcy materiałów i technologii co do
żywotności i szczelności całego systemu pokrycia. Wykonawstwo należy prowadzić pod nadzorem dostawcy
technologii.
12. Wszystkie elementy stalowe narażone na warunki atmosferyczne należy ocynkować, a następnie
pomalować na kolor zgodny z wytycznymi kolorystycznymi.
13. Poziomy parapetów podane na rzutach dotyczą poziomów w stanie wykończonym. Wysokość otworu w
stanie surowym dopasować do typu okna, które zostanie zamontowane.
14. Opis skrzydła drzwiowego na rzutach 90/200 oznacza wymiary w świetle ościeżnicy. Skrzydła drzwi,
stanowiących wyjście na drogę ewakuacyjną, powinny otwierać się o kąt 180 stopni tak aby po ich otwarciu
nie zawężały wymaganej szerokości drogi ewakuacyjnej.
15. Wszystkie izolacje poziome i pionowe ścian fundamentowych oraz posadzek na gruncie powinny być
połączone między sobą, zapewniając szczelność wszystkich płaszczyzn poziomych i pionowych.
16. Poziom zera budynku (+/-0,00) na rzutach oraz przekrojach przyjęto w stanie surowym. Natomiast poziom
zera budynku (+/-0,00) na zagospodarowaniu terenu przyjęty został w stanie istniejącym na poziomie
267,54m n.p.nm.
17. Całość prac budowlanych i montażowych należy wykonać pod nadzorem oraz zgodnie z wytycznymi
dostawców wszystkich technologii, zgodnie z normami i warunkami technicznymi wykonstwa oraz zasadami
sztuki budowlanej.
18. Wszystkie zastosowane materiały i technologie powinny posiadać wymagane certyfikaty i aprobaty
techniczne wymagane obowiązującymi przepisami prawa budowlanego.
Inwestor:
15
stelaż podtynkowy GEBERIT
DUOFIX BASIC do pisuaru H130
- dotyczy poziomów części konstrukcyujnych
Prawa autorskie zastrzeżone. Wykorzystywanie, kopiowanie i rozpowszechnianie dokumentacji
Projektant zastrzega sobie prawo wprowadzania zmian.
bez zgody projektanta zabronione.
185
185
205
305
27,09m2
305
135
ZESTAWIENIE MATERIAŁÓW: POSADZKA
PARADYŻ Montana (R10) 30x30 cm
pojemnik na papier toaletowy
MERIDA Ø25cm PT9S
55
TIKKURILA PURE WHITE farba akrylowa
kolor wg RAL: 9016
pisuar Alex
KOŁO NOVA TOP
55
73,59m2
55
PARADYŻ Evita Bianco 25x33,3 cm
55
8,83m2
45
PARADYŻ Montana (R10) 30x30 cm
- dotyczy poziomów w stanie wykończonym
-1,79 - dotyczy poziomów w stanie surowym
N
W
- izolacja termiczna
-1,77
-1,50
- elementy żelbetowe
0.14-1
0.14-3
-1,79
- słupy żelbetowe
0.14
-1,77
N
55
55
55
- ściana nowoprojektowana - bloczki
betonowe gr. 25cm
0.12-1
70
0.14-4
- główne wejście do budynku
- drugorzędne wejście do budynku
55
lustro KOŁO 50x80x4,2cm
Widok - 0.14-3
Projektował:
Sprawdzał:
Rys. nr:
A.23
mgr inż. arch. Agnieszka OŚLIZŁO, upr. bud. nr 10/03/SLOKK
_________________________________________________________________________________________
Skala 1:50,
1:100
Data:
marzec 2010