TREISTE SF40 karta techniczna_widok_przekroj

Transkrypt

TREISTE SF40 karta techniczna_widok_przekroj
TRIESTE SF40
Quality product of
TREISTE SF40
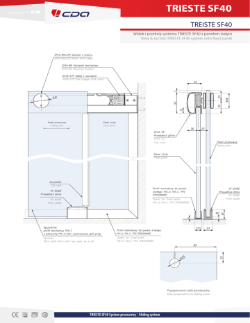
Widok i przekrój systemu TRIESTE SF40 z panelem stałym
View & section TRIESTE SF40 system with fixed panel
SF40-ROLLER Wózkek z klamrą
SF40-ROLLER Roller with clamp
SF40-BK Kątownik montażowy
SF40-BK Mounting bracket
SF40-STP Odbój z zaczepem
SF40-STP End stopper with catch
15
32
52
∅38
∅38
25
5
34
Panel przesuwny
Sliding door
Panel stały
Fixed panel
26
SF40-TR
Prowadnica górna
SF40-TR
Top track
22
Panel przesuwny
Sliding door
Panel stały
Fixed panel
Profil montażowy do panela
stałego: FIX-U, FIX-C, FPS
(FROSINONE)
SF-GUIDE
Prowadnica dolna
SF-GUIDE
Prowadnica dolna
SF-GUIDE
Floor giude
Chanel for fixed panel:
FIX-U, FIX-C, FPS (FROSINONE)
4
10
SF-GUIDE
Floor giude
30
Uszczelka
Clip seal
Opcjonalnie:
profil montażowy FIX-C
z pokrywką FIX-C-COV, zastosowany jako próg
Profil montażowy do panela stałego:
FIX-U, FIX-C, FPS (FROSINONE)
Optional:
FIX-C with FIX-C-COV top cover as a sill
Chanel for fixed panel:
FIX-U, FIX-C, FPS (FROSINONE)
17.5
23
0
∅2
Przygotowanie szkła panel jezdny
Glass preparation for sliding panel
TRIESTE SF40 System przesuwny І Sliding system
25
85