Czujnik temperatury kanałowy / zanurzeniowy AKF 10..., KFK 01

Transkrypt

Czujnik temperatury kanałowy / zanurzeniowy AKF 10..., KFK 01
Czujnik temperatury kanałowy / zanurzeniowy
AKF 10..., KFK 01...
Czujnik temperatury kanałowy / zanurzeniowy
AKF 10..., KFK 01...
14100... 14200...
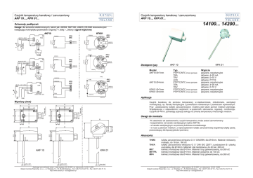
Schematy podłączeń
Uwaga: dla sensorów elektronicznych, takich jak: AD592, SMT160, LM235, DS1820 stosowana jest
następująca kolorystyka przewodów: brązowy: +, biały: -, zielony: sygnał wyjściowy
AKF10
KFK01
RL
czujnik
Obciążenie
+U
-
czujnik
TRA
UB=15 – 24 V=
Wyjście 4-20mA
brązowy
PTC/
NTC
brązowy
wejście
przewodu
PTC/
NTC
wejście
przewodu
biały
biały
zielony
brązowy
czujnik
RL
Obciążenie
+
-
wejście
przewodu
zielony
biały
czerwony
PTC/
NTC
bi ały
c zujnik
czujnik
LON
PTC/
NTC
A
B
biały
Serwis PIN / LED
65
50
39
SW24 M20
50
38
58
47
Uwagi do montażu
SW17 M16
15
W zależności od zastosowania, czujnik temperatury może zostać zamontowany:
- bezpośrednio na kanale wentylacyjnym (tylko AKF10)
- w kanale wentylacyjnym za pomocą kołnierza montażowego
- w rurze z płynnym medium, z wykorzystaniem tulejki zanurzeniowej (wypełniaj tulejkę pastą
przewodzącą, dla lepszej jakości pomiaru).
Akcesoria:
42,5
45,5
50
65
42,5
KFK01 Ø=7mm
KFK01 Ø=4mm
Czujnik kanałowy do pomiaru temperatury w ciepłownictwie, chłodnictwie, wentylacji
i klimatyzacji, np. kanały wentylacyjne z powietrzem nawiewanym / powietrzem wywiewanym.
Przy zastosowaniu tulejek zanurzeniowych, możliwy jest także pomiar medium płynnego.
Współpracują z odpowiednimi wejściami w systemach sterowania, regulacji, monitoringu.
Czujniki Ø=4mm, posiadają szybszą reakcję na zmianę temperatury mierzonego medium.
SW19 M16
78
58
THMS
THVA
KFK 01
L
L
AKF 10
L
45,5
pasywne, rezystancyjne
aktywne, 4÷20 mA
aktywne, 0÷10 V
aktywne, FTT10
pasywne, rezystancyjne
aktywne, 4÷20 mA
aktywne, 0÷10 V
pasywne, rezystancyjne
pasywne, rezystancyjne
Aplikacje
czerwony
Wymiary (mm)
78
Wyjście
PT/PTC/NTC inne oporowe
TRA
TRV
LON
PT/PTC/NTC inne oporowe
TRA
TRV
PT/PTC/NTC inne oporowe
PT/PTC/NTC inne oporowe
czerwony
biały
LON
15
Typ
AKF10 Ø=7mm
AKF10 Ø=4mm
wejście
przewodu
Ø=4 / Ø=7
KFK 01
Model
biały
czerwony
UB=15 – 24 V=/24V~
GND
AKF 10
Dostępne typy
wejście
przewodu
biały
Pt1000
+U
-
czujnik
UB=15 – 24 V=/24V~
GND
U
PTC/
NTC
TRV
Wyjście 0-10V
PTC/
NTC
brązowy
Pt1000
Ø=4 / Ø=7
MF7
MF7PA
MF4
tulejka zanurzeniowa wkręcana G ½” DIN2999, dla Ø=6mm. Materiał: niklowany
mosiądz, do 16 bar, 160 oC
tulejka zanurzeniowa wkręcana G ½” DIN ISO 228T1 z podcięciem B i płaską
uszczelką, dla Ø=6mm. Materiał: stal nierdzewna, do 40 bar, 260 oC
kołnierz montażowy dla Ø=7mm. Materiał: brąz galwanizowany, do 260 oC
kołnierz montażowy dla Ø=7mm. Materiał: polyamid, do 130 oC
kołnierz montażowy dla Ø=4mm. Materiał: brąz galwanizowany, do 260 oC
Ø=4 / Ø=7
Zastrzega się możliwość zmian – data wydania: 22.10.2007, no. dokumentu: 14100, 14200
Distech Controls Poland Sp. z o.o. – ul. Wileńska 12 – PL 56-400 Oleśnica – Tel: +48 (71) 314 27 19 – Fax +48 (71) 314 71 14
http://www.distech.pl - [email protected]
Zastrzega się możliwość zmian – data wydania: 22.10.2007, no. dokumentu: 14100, 14200
Distech Controls Poland Sp. z o.o. – ul. Wileńska 12 – PL 56-400 Oleśnica – Tel: +48 (71) 314 27 19 – Fax +48 (71) 314 71 14
http://www.distech.pl - [email protected]
Czujnik temperatury kanałowy / zanurzeniowy
AKF 10..., KFK 01...
Czujnik temperatury kanałowy / zanurzeniowy
AKF 10..., KFK 01...
Normy i standardy
Typ TRV
Bezpieczeństwo:
EMV:
Zgodność CE:
EN60730-1 - elektroniczne urządzenia automatycznej regulacji dla
zastosowań domowych i podobnych
EN60730-1 (2000) - odporność na zakłócenia
EN60730-1 (2000) - zakłócenia emitowane
89/336/EWG - zgodność elektromagnetyczna
Dane techniczne
Typ PTC/NTC
Sensor:
Zakres pomiarowy:
Dokładność:
Prąd pomiarowy:
Tulejka czujnika:
Długości tulejki:
Podłączenia:
Głowiczka:
Tmax3):
Ochrona:
Dławik kablowy:
oporowy (typ zgodny z życzeniem Zamawiającego: np. Pt, Ni, NTC,
PTC).
zależnie od użytego sensora, max. 160OC (do 260oC na zamówienie)
zależnie od użytego sensora, np. DIN Kl.B
<1mA
rurka, stal nierdzewna 1.4571, Ø=4mm lub Ø=7mm
Ø=4mm: 40mm/90mm/140mm/190mm, inne długości na życzenie
Ø=7mm: 62mm/135mm/192mm/240mm/320mm/392mm/465mm,
inne długości na życzenie
2 zaciskowe (dwuprzewodowe), zaciski max. 1,5mm2
3 zaciskowe (trójprzewodowe), zaciski max. 1,5mm2
4 zaciskowe (czteroprzewodowe), zaciski max. 1,5mm2
AKF 10: (65mm) polyamid, biały
KFK 01: typ J, aluminium
<90oC
IP65
AKF 10: wejście pojedyncze, max Ø=8mm, M16
KFK 01:M16
Typ TRA
Sensor:
Zakres pomiarowy:
Dokładność1):
Prąd pomiarowy:
Napięcie zasilania:
Pobór prądu:
Obciążenie:
Obudowa czujnika:
Długości obudowy:
Podłączenia:
Głowiczka:
Temp. max.3):
Ochrona IP:
Dławik kablowy:
Pt1000
TRA1: -50oC ÷ +50oC
TRA2: -10oC ÷ +120oC
TRA3: 0oC ÷ +50oC
TRA4: 0oC÷+160oC
TRA5: 0oC÷+300oC
1% zakresu pomiarowego
<1mA
14÷24 V=
max. 20mA
<500 Ohm
rurka, stal nierdzewna 1.4571
Ø=4mm: 40mm/90mm/140mm/190mm, inne długości na życzenie
Ø=7mm: 62mm/135mm/192mm/240mm/320mm/392mm/465mm,
inne długości na życzenie
2 zaciskowe (dwuprzewodowe), zaciski max. 1,5mm2
AKF10: (78mm) polyamid, biały
<70oC
IP65
pojedynczy, Ø max.=8mm, M20
Sensor:
Zakres pomiarowy:
Dokładność1):
Prąd pomiarowy:
Napięcie zasilania:
Pobór prądu:
Obciążenie:
Obudowa czujnika:
Długości obudowy:
Podłączenia:
Głowiczka:
Temp. max.3):
Ochrona IP:
Dławik kablowy:
Pt1000
TRV1: -50oC ÷ +50oC
TRV2: -10oC ÷ +120oC
TRV3: 0oC ÷ +50oC
TRV4: 0oC ÷ +160oC
TRV5: 0oC ÷ +300oC
1% zakresu pomiarowego
<1mA
14÷24 V=/24V~
max. 12mA/24V=
5 kOhm
rurka, stal nierdzewna 1.4571
Ø=4mm: 40mm/90mm/140mm/190mm, inne długości na życzenie
Ø=7mm: 62mm/135mm/192mm/240mm/320mm/392mm/465mm,
inne długości na życzenie
2 zaciskowe (dwuprzewodowe), zaciski max. 1,5mm2
AKF10: (78mm) polyamid, biały
<70oC
IP65
pojedynczy, Ø max.=8mm, M20
Typ LON
Sensor:
Zakres pomiarowy:
Dokładność1):
Napięcie zasilania:
Pobór prądu:
Obudowa czujnika:
Długości obudowy:
Podłączenia:
Głowiczka:
Temp. max.3):
Ochrona IP:
Dławik kablowy:
cyfrowy
-45oC ÷ +130oC
+/-1% zakresu pomiarowego
15÷24 V=/24V~
max. 20mA/24V=
rurka, stal nierdzewna 1.4571
Ø=4mm: 40mm/90mm/140mm/190mm, inne długości na życzenie
Ø=7mm: 62mm/135mm/192mm/240mm/320mm/392mm/465mm,
inne długości na życzenie
2 zaciskowe (dwuprzewodowe), zaciski max. 1,5mm2
AKF10: (78mm) polyamid, biały
<70oC
IP65
pojedynczy, Ø max.=8mm, M20
podwójny, Ø max.=7mm, M20
1) Maksymalna dopuszczalna temperatura sensora. Na żądanie wersja do 260oC
2) Napięcie zasilania 24V DC, temperatura otoczenia +21oC (±5K). Należy zwrócić uwagę, że generalnie przetwornik
pomiarowy powinien pracować w okolicach temperatury środka swojego zakresu pomiarowego (im bliżej granicy zakresu
pomiarowego, tym większa niedokładność pomiaru).
3) Maksymalna dopuszczalna temperatura otoczenia (dla głowiczki), wilgotność (bez kondensacji) <80% r.F.
Zastrzega się możliwość zmian – data wydania: 22.10.2007, no. dokumentu: 14100, 14200
Distech Controls Poland Sp. z o.o. – ul. Wileńska 12 – PL 56-400 Oleśnica – Tel: +48 (71) 314 27 19 – Fax +48 (71) 314 71 14
http://www.distech.pl - [email protected]
Zastrzega się możliwość zmian – data wydania: 22.10.2007, no. dokumentu: 14100, 14200
Distech Controls Poland Sp. z o.o. – ul. Wileńska 12 – PL 56-400 Oleśnica – Tel: +48 (71) 314 27 19 – Fax +48 (71) 314 71 14
http://www.distech.pl - [email protected]