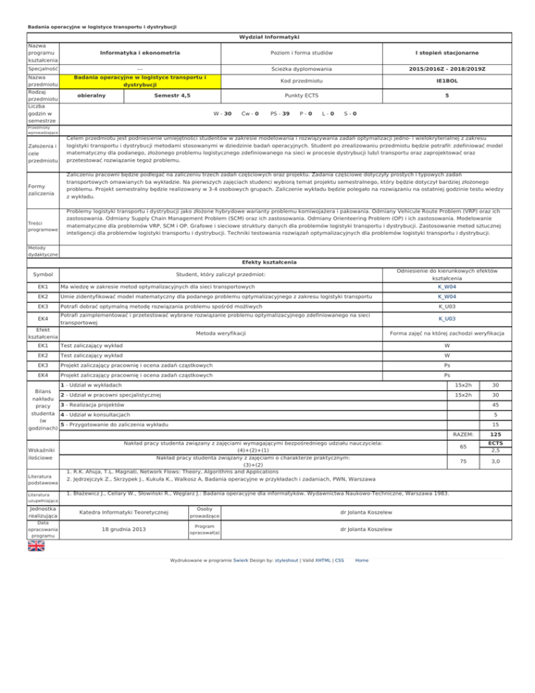
Badania operacyjne w logistyce transportu i dystrybucji

Transkrypt

Badania operacyjne w logistyce transportu i dystrybucji
Badania operacyjne w logistyce transportu i dystrybucji
Wydział Informatyki
Nazwa
programu
kształcenia
Informatyka i ekonometria
Poziom i forma studiów
I stopień stacjonarne
Specjalność
---
Ścieżka dyplomowania
2015/2016Z - 2018/2019Z
Nazwa
przedmiotu
Badania operacyjne w logistyce transportu i
dystrybucji
Kod przedmiotu
IE1BOL
Punkty ECTS
5
Rodzaj
przedmiotu
obieralny
Semestr 4,5
Liczba
godzin w
semestrze
W - 30 Ćw - 0 PS - 39 P - 0 L - 0 S - 0
Przedmioty
wprowadzające
Założenia i
cele
przedmiotu
Formy
zaliczenia
Treści
programowe
Celem przedmiotu jest podniesienie umiejętności studentów w zakresie modelowania i rozwiązywania zadań optymalizacji jedno- i wielokryterialnej z zakresu
logistyki transportu i dystrybucji metodami stosowanymi w dziedzinie badań operacyjnych. Student po zrealizowaniu przedmiotu będzie potrafił: zdefiniować model
matematyczny dla podanego, złożonego problemu logistycznego zdefiniowanego na sieci w procesie dystrybucji lub/i transportu oraz zaprojektować oraz
przetestować rozwiązanie tegoż problemu.
Zaliczeniu pracowni będzie podlegać na zaliczeniu trzech zadań częściowych oraz projektu. Zadania częściowe dotyczyły prostych i typowych zadań
transportowych omawianych ba wykładzie. Na pierwszych zajęciach studenci wybiorą temat projektu semestralnego, który będzie dotyczył bardziej złożonego
problemu. Projekt semestralny będzie realizowany w 3-4 osobowych grupach. Zaliczenie wykładu będzie polegało na rozwiązaniu na ostatniej godzinie testu wiedzy
z wykładu.
Problemy logistyki transportu i dystrybucji jako złożone hybrydowe warianty problemu komiwojażera i pakowania. Odmiany Vehicule Route Problem (VRP) oraz ich
zastosowania. Odmiany Supply Chain Management Problem (SCM) oraz ich zastosowania. Odmiany Orienteering Problem (OP) i ich zastosowania. Modelowanie
matematyczne dla problemów VRP, SCM i OP. Grafowe i sieciowe struktury danych dla problemów logistyki transportu i dystrybucji. Zastosowanie metod sztucznej
inteligencji dla problemów logistyki transportu i dystrybucji. Techniki testowania rozwiązań optymalizacyjnych dla problemów logistyki transportu i dystrybucji.
Metody
dydaktyczne
Efekty kształcenia
Symbol
Odniesienie do kierunkowych efektów
kształcenia
Student, który zaliczył przedmiot:
EK1
Ma wiedzę w zakresie metod optymalizacyjnych dla sieci transportowych
K_W04
EK2
Umie zidentyfikować model matematyczny dla podanego problemu optymalizacyjnego z zakresu logistyki transportu
K_W04
EK3
Potrafi dobrać optymalną metodę rozwiązania problemu spośród możliwych
K_U03
EK4
Potrafi zaimplementować i przetestować wybrane rozwiązanie problemu optymalizacyjnego zdefiniowanego na sieci
transportowej
K_U03
Efekt
kształcenia
Metoda weryfikacji
Forma zajęć na której zachodzi weryfikacja
EK1
Test zaliczający wykład
EK2
Test zaliczający wykład
W
EK3
Projekt zaliczający pracownię i ocena zadań cząstkowych
Ps
EK4
Projekt zaliczający pracownię i ocena zadań cząstkowych
Ps
Bilans
nakładu
pracy
studenta
(w
godzinach)
Wskaźniki
ilościowe
Literatura
podstawowa
Literatura
uzupełniająca
W
1 - Udział w wykładach
15x2h
30
2 - Udział w pracowni specjalistycznej
15x2h
30
3 - Realizacja projektów
45
4 - Udział w konsultacjach
5
5 - Przygotowanie do zaliczenia wykładu
15
Nakład pracy studenta związany z zajęciami wymagającymi bezpośredniego udziału nauczyciela:
(4)+(2)+(1)
Nakład pracy studenta związany z zajęciami o charakterze praktycznym:
(3)+(2)
1. R.K. Ahuja, T.L. Magnati, Network Flows: Theory, Algorithms and Applications
2. Jędrzejczyk Z., Skrzypek J., Kukuła K., Walkosz A, Badania operacyjne w przykładach i zadaniach, PWN, Warszawa
1. Błażewicz J., Cellary W., Słowiński R., Węglarz J.: Badania operacyjne dla informatyków. Wydawnictwa Naukowo-Techniczne, Warszawa 1983.
Jednostka
realizująca
Katedra Informatyki Teoretycznej
Osoby
prowadzące
dr Jolanta Koszelew
Data
opracowania
programu
18 grudnia 2013
Program
opracował(a)
dr Jolanta Koszelew
Wydrukowane w programie Świerk Design by: styleshout | Valid XHTML | CSS Home
RAZEM:
125
65
ECTS
2,5
75
3,0