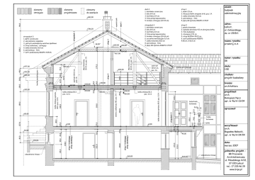
przekrój A-A

Transkrypt

przekrój A-A
elementy
projektowane
elementy
do usunięcia
96,8
wywietrznik
+883,00
dach 1
elementy
istniejące
adres:
Łańcut,
ul. Cetnarskiego,
dz. nr 2915/1
nazwa rysunku:
przekrój A-A
zastrzał
12×12 cm,
poz. 1.6.
skala:
1:50
kratka wentylacyjna
110,0
branŜa:
architektura
balustrada
betonowa
26,0
110,0
16,0
74,0
12,0
opracował:
.
223,0
tralka
betonowa
rynna
33,0
8,0
weryfikował:
arch.
Bogusław Makocki,
upr. nr Rz/A-04/04
-45,00
data:
marzec 2007
223,0
strop 3 (istniejący
strop odcinkowy)
12,0
27,0
45,0
±0,00
odwodnienie liniowe
-265,00
projektwał:
arch.
Remigiusz Nycz
upr. nr Rz/A-13/04
285,0
belka stalowa B1.3.
poz. 3.2.3.
stropodach 2
+283,50
283,5
25,0
+308,50
belka stalowa wymianu B1.5. poz. 3.2.4.
33,0
238,0
16,0
222,0
strop 3 (istniejący
strop odcinkowy)
238,0
28,0
95,0
115,0
numer rysunku:
08
+340,00
+300,00
-52,00
83,0
strop 2:
1. panele drewniane
2. wylewka betonowa 4,5 cm zbrojona siatką
3. folia budowlana
4. styropian 2/12 cm
5. strop KLEINA 20/12 cm
6. sufit podwieszany RIGIPS
4.05.23, 2×12,5 cm
stadium:
projekt budowlany
27,0
27,0
80,0
137,8
±0,00
słup drewniany
12×12 cm, poz. 1.5.
277,0
30,0
30,0
strop 2
+310,00
+85,80
-135,00
strop 1
33,0
belka stalowa B1.3.
poz. 3.2.3.
+330,00
wieniec Ŝelbetowy W1, poz. 3.4.
199,2
belka stalowa wymianu
B1.5. poz. 3.2.4.
+285,00
stropodach 1:
1. dachówka ceramiczna
2. łaty 6×5 cm
3. kontrłaty 6×4 cm
4. folia paroprzepuszczalna
5. krokwie istniejące (12×14 cm)
6. szczelina wentylacyjna 3,0 cm
7. wełna mineralna 20,0 cm
8. paroizolacja - folia
9. płyty GK systemu RIGIPS 4.70.07
obiekt:
budynek
administracyjny
+634,00
+450,00
10,0
+322,00
słup drewniany
12×12 cm, poz. 1.5.
zastrzał 12×12 cm,
poz. 1.6.
+507,00
167,0
70,0
35,0
62,0
33,0
+652,50 +650,00
strop 1:
1. deski 2,5 cm
2. kleszcze/belki stropowe 6×16, poz. 1.4.
3. wełna mineralna 20,0 cm
4. paroizolacja - folia
5. płyty GK systemu RIGIPS 4.70.07
+617,00
310,0
119,0
28,0
+404,00
28,59°
40,0
+432,00
kratka wentylacyjna
+477,00
45,0
stropodach 1
stropodach 2:
1. płytki ceramiczne
2. uszczelnienie zespolone
3. jastrych wodoodporny-warstwa spadkowa
4. strop Ŝelbetowy - istniejący
5. wełna mineralna 10,0 cm
6. paroizolacja - folia
7. sufit podwieszany RIGIPS 4.05.23,
300,0
309,2
+786,20
dach 1:
1. dachówka ceramiczna
2. łaty 6×5 cm
3. kontrłaty 6×4 cm
4. folia paroprzepuszczalna
5. krokwie istniejące (12×14 cm)
-268,00
odwodnienie liniowe
jednostka projekt.:
BR Pracownia
Architektoniczna
ul. Piłsudskiego 4/22,
37-100 Łańcut
tel.: 17 225 46 29
www.brpa.pl