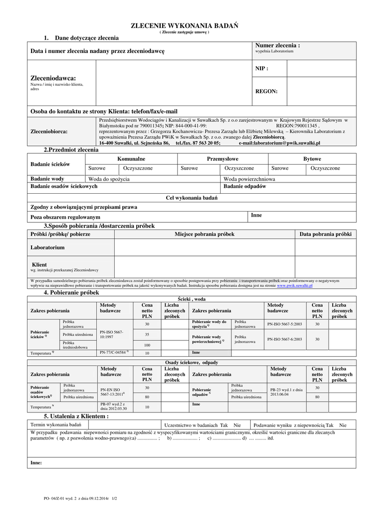
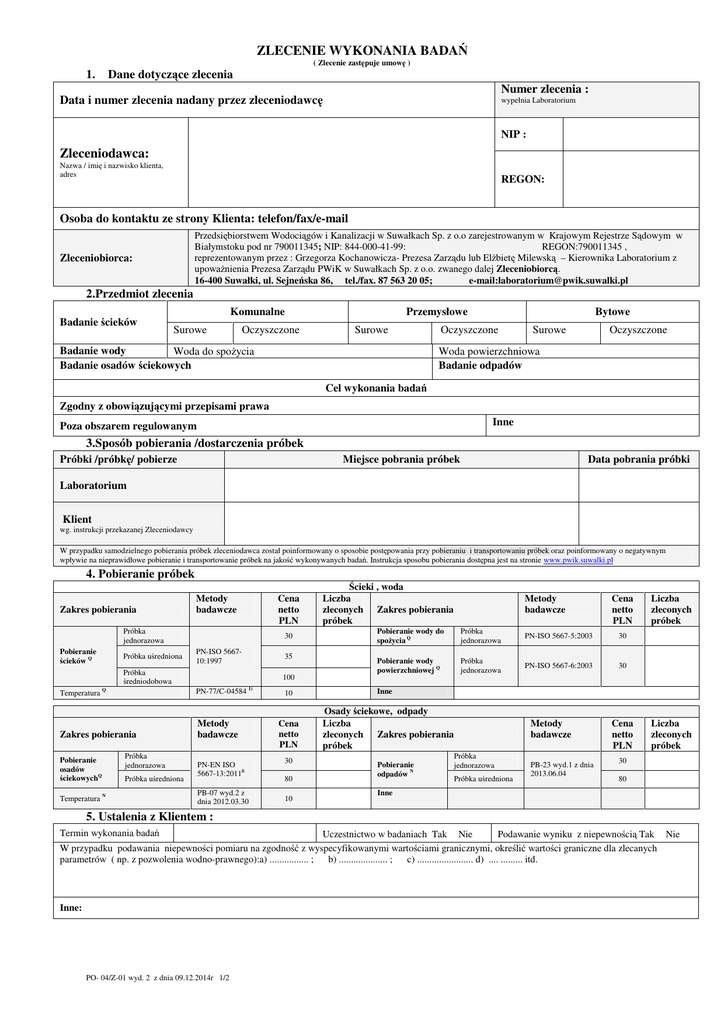
ZLECENIE WYKONANIA BADAŃ Zleceniodawca

Transkrypt

ZLECENIE WYKONANIA BADAŃ Zleceniodawca
ZLECENIE WYKONANIA BADAŃ
( Zlecenie zastępuje umowę )
1.
Dane dotyczące zlecenia
Numer zlecenia :
Data i numer zlecenia nadany przez zleceniodawcę
wypełnia Laboratorium
NIP :
Zleceniodawca:
Nazwa / imię i nazwisko klienta,
adres
REGON:
Osoba do kontaktu ze strony Klienta: telefon/fax/e-mail
Przedsiębiorstwem Wodociągów i Kanalizacji w Suwałkach Sp. z o.o zarejestrowanym w Krajowym Rejestrze Sądowym w
Białymstoku pod nr 790011345; NIP: 844-000-41-99:
REGON:790011345 ,
reprezentowanym przez : Grzegorza Kochanowicza- Prezesa Zarządu lub Elżbietę Milewską – Kierownika Laboratorium z
upoważnienia Prezesa Zarządu PWiK w Suwałkach Sp. z o.o. zwanego dalej Zleceniobiorcą.
16-400 Suwałki, ul. Sejneńska 86, tel./fax. 87 563 20 05;
e-mail:[email protected]
Zleceniobiorca:
2.Przedmiot zlecenia
Komunalne
Badanie ścieków
Surowe
Oczyszczone
Przemysłowe
Surowe
Badanie wody
Woda do spożycia
Badanie osadów ściekowych
Bytowe
Oczyszczone
Surowe
Oczyszczone
Woda powierzchniowa
Badanie odpadów
Cel wykonania badań
Zgodny z obowiązującymi przepisami prawa
Inne
Poza obszarem regulowanym
3.Sposób pobierania /dostarczenia próbek
Próbki /próbkę/ pobierze
Miejsce pobrania próbek
Data pobrania próbki
Laboratorium
Klient
wg. instrukcji przekazanej Zleceniodawcy
W przypadku samodzielnego pobierania próbek zleceniodawca został poinformowany o sposobie postępowania przy pobieraniu i transportowaniu próbek oraz poinformowany o negatywnym
wpływie na nieprawidłowe pobieranie i transportowanie próbek na jakość wykonywanych badań. Instrukcja sposobu pobierania dostępna jest na stronie www.pwik.suwalki.pl
4. Pobieranie próbek
Zakres pobierania
Metody
badawcze
Próbka
jednorazowa
Pobieranie
ścieków Q
Próbka uśredniona
30
PN-ISO 566710:1997
Próbka
średniodobowa
PN-77/C-04584 1)
Zakres pobierania
Metody
badawcze
Próbka
jednorazowa
Próbka uśredniona
Temperatura N
35
100
Temperatura Q
Pobieranie
osadów
ściekowychQ
Cena
netto
PLN
PN-EN ISO
5667-13:2011R
PB-07 wyd.2 z
dnia 2012.03.30
10
Cena
netto
PLN
30
80
10
Ścieki , woda
Liczba
zleconych Zakres pobierania
próbek
Metody
badawcze
Cena
netto
PLN
Pobieranie wody do
spożycia Q
Próbka
jednorazowa
PN-ISO 5667-5:2003
30
Pobieranie wody
powierzchniowej Q
Próbka
jednorazowa
PN-ISO 5667-6:2003
30
Liczba
zleconych
próbek
Inne
Osady ściekowe, odpady
Liczba
zleconych Zakres pobierania
próbek
Pobieranie
odpadów N
Metody
badawcze
Próbka
jednorazowa
Próbka uśredniona
PB-23 wyd.1 z dnia
2013.06.04
Cena
netto
PLN
Liczba
zleconych
próbek
30
80
Inne
5. Ustalenia z Klientem :
Termin wykonania badań
Podawanie wyniku z niepewnością Tak Nie
Uczestnictwo w badaniach Tak Nie
W przypadku podawania niepewności pomiaru na zgodność z wyspecyfikowanymi wartościami granicznymi, określić wartości graniczne dla zlecanych
parametrów ( np. z pozwolenia wodno-prawnego):a) ................ ; b) .................... ; c) ....................... d) .... ......... itd.
Inne:
PO- 04/Z-01 wyd. 2 z dnia 09.12.2014r 1/2
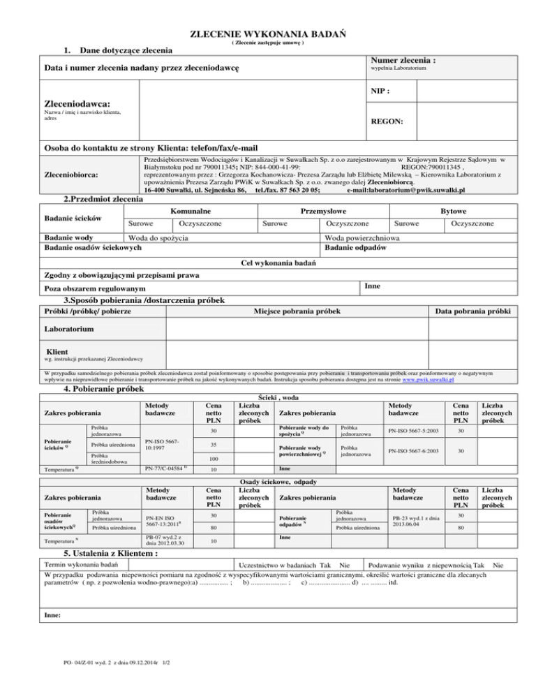
6. Sposób przekazania sprawozdania z badań i faktury :
Pocztą na adres:
Odbiór w laboratorium
Sprawozdanie z badań przesłać elektronicznie na adres:
Koszt sporządzenia sprawozdania z badań
30 PNL + VAT
Należność za wykonane badania zostanie naliczona według obowiązującego cennika znajdującego się na stronie www.pwik.suwalki.pl. Klient ureguluje należność przelewem po
otrzymaniu faktury w terminie 14 dni i na rachunek w niej wskazany.
Zleceniodawca zobowiązuje się wykonać badanie zgodnie z przyjętym zleceniem w terminie do14 dni roboczych od dnia pobrania lub dostarczenia próbki
Odstępstwa od uzgodnień zostaną przekazane Klientowi telefonicznie i potwierdzone pisemnie.
Zleceniodawca ma prawo złożenia reklamacji/skargi związanej ze sposobem realizacji zlecenia w ciągu 14 dni od daty otrzymania sprawozdania z badań.
Zleceniodawca ma zagwarantowaną poufność badań i ochronę praw własności. W przypadku zaistnienia zagrożenia zdrowia ludzi oraz zagrożenia środowiska Zleceniobiorca zastrzega
sobie prawo przekazania wyników badań odpowiednim organom. Zleceniodawca może uczestniczyć w zlecanych badaniach w charakterze obserwatora.
7. Zakres badań
Parametry fizykochemiczne wody, ścieków
Badane cechy
Metody badawcze
pH Q
PN-EN ISO 10523:2012 R
4,0 – 10,0
PN-ISO-5664:2002R
(2,00-200) mg/l
Cena
netto
PLN
15
Zakres
40
R
( 0,10-15,0) mg/l
PN-82/C-04576/08 R,1)
(0,10-30,0) mg /l
PN-ISO 7150-1:2002
Azot azotanowy Q
Q
PN-EN 26777:1999
R
Azot Kjeldahla Q
Azot ogólny Q
45
40
ChZT –Cr
(0,50-5,0) mg /l
z obliczeń
R
( 3,0 - 2000 ) mg/l
PN-EN 1899-2: 2002R
( 0,50 – 6,0 ) mg/l
( 5,0 - 400) mg/l
50
Ortofosforany
Q
Fosfor ogólny
Q
PN-ISO 9280:2002 R
Q
N
PN-EN 872:2007+Ap
1:2007 R
PN-EN 25814:1999 1)
PN-EN ISO 5814:2013
PB-10 wyd.1 z dnia
2008.01.30
Inne
Parametry fizykochemiczne osadów ścieków
Parametry fizykochemiczne odpadów
PN-EN 12176:2004 R
4,0 – 10,0
Sucha pozostałośćQ
PN-EN 12880:2004 R
( 6,0 – 990 ) g/kg
Zawartość wody Q
PN-EN 12880:2004 R
( 1,00 - 99,4 ) %
Sucha pozostałość N
( wagosuszarka)
PB-06 wyd.1 z dnia
2007.04.01
( 0,60 - 99,5 ) %
PN-ISO12879:2004 R
( 0,8 – 90,0 ) %
20
65
Straty przy
prażeniu suchej
masy osadu Q
Pozostałość po
prażeniu Q
Indeks objętościowy
osadu N
Inne
30
(6 – 2000 ) mg/l
PN-EN ISO 6878:2006
+Ap1:2010+Ap2:2010 R
PN-EN ISO 6878:200+
Ap1:2010+Ap2:2010 R
Pomiar tlenuN
Ekstrakt eterowy
R
Inne
pH Q
Liczba
zleconych
próbek
65
Zawiesiny ogólne
165
Cena
netto
PLN
18
( 30 – 10000 ) mg/l
Q
80
PN-73/C-04576.14 1)
Zakres
PN-ISO 9297:1994R
Q
Siarczany Q
( 0,70 – 500 ) mg /l
PB-19 wyd.1 z dnia
2010.04.01NR
PN-EN1899-1: 2002
BZT5 Q
Chlorki
Metody badawcze
PN-ISO 15705:2005
( 0,01 - 6,0 ) mg /l
PN-EN 25663:2001R
Badane cechy
PN-ISO 6060:2006 R
Azot amonowy Q
Azot azotynowy
Liczba
zleconych
próbek
Obliczanie suchej
masy na podstawie
oznaczania suchej
pozostałości N
Strata prażenia
odpadu N
Pozostałość po
prażeniu N
PN-EN 14346:2011
Metoda A
( 0,10- 200 ) mg/l
20
( 0,040 – 40,0) mg /l
80
( 10,0-5000 ) mg/l
90
( 2,0 - 5000) mg/l
60
( 0,2 – 20 ) mg/l
15
( 5- 5000 ) mg/l
80
( 1,0 – 99,0 ) %
65
( 0,8 – 99,0 ) %
PN-EN 15269: 2011
65
( 7,5 – 99,0 ) %
Inne
65
PN-ISO12879:2004 R
( 7,5 – 99,5 ) %
PN-EN14702-1:2008
75
* we właściwe pole wstawić – x
7.1. Podwykonawstwo
Zakres badań :
Badania
podzlecane
Nie dotyczy
Zostałem poinformowany o metodach badań podwykonawcy i wyrażam zgodę na ich zastosowanie
8.Koszt usługi
Koszt usługi......................................PLN + 23% VAT
Koszt usługi zostanie powiększony o koszt transportu Zleceniobiorcy ( 1,10 PLN za 1 km +VAT )
Zlecam usługę z w/w ustaleniami ………………………………………................
(Pieczątka, data i podpis Zleceniodawcy )
Zlecenie przyjęto do realizacji
Protokół
z przeglądu
zlecenia
Data, podpis:
Uzgodnienia ze Zleceniodawcą w trakcie realizacji zlecenia
Przyjmuję zlecenie do realizacji
……………………………………….....................
(Pieczątka, data i podpis Zleceniobiorcy
Q - badania akredytowane, zamieszczone w zakresie akredytacji PCA AB 938; N – badania nieakredytowane;
R – metoda referencyjna wg. przepisów prawnych ; NR – metoda niereferencyjna, nieprzydatna do oceny zgodności w obszarze regulowanym;
1)
norma wycofana bez zastąpienia.
PO- 04/Z-01 wyd. 2 z dnia 09.12.2014r str 2/2