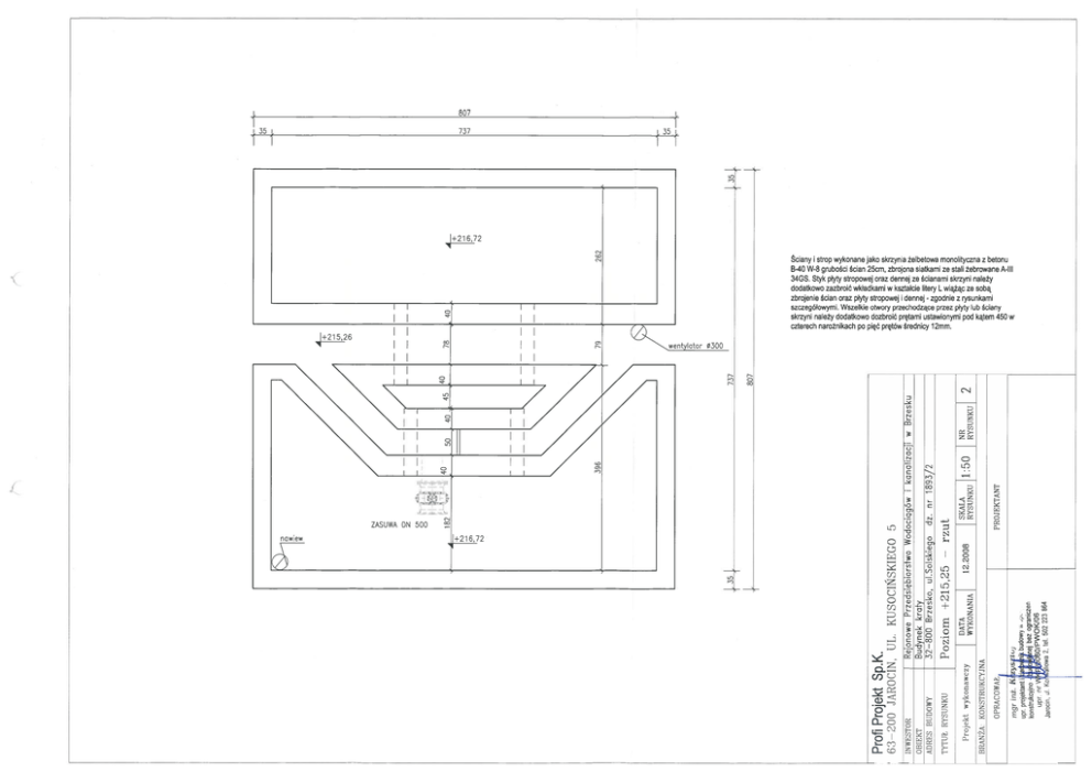
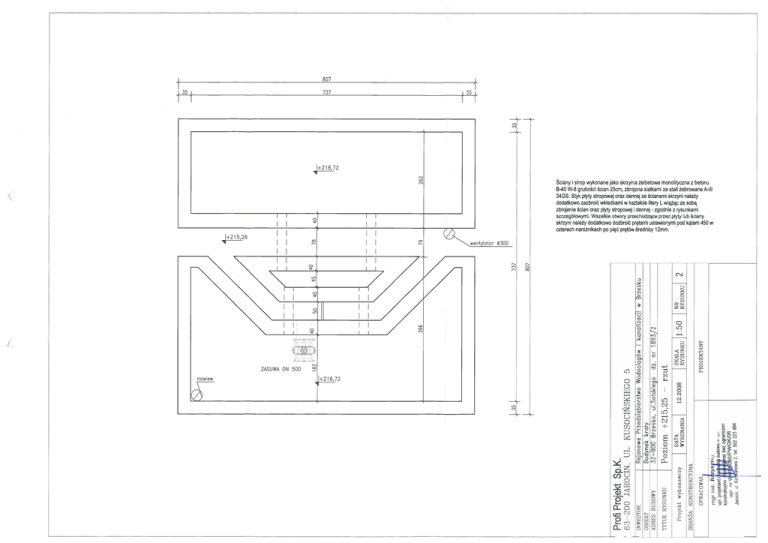
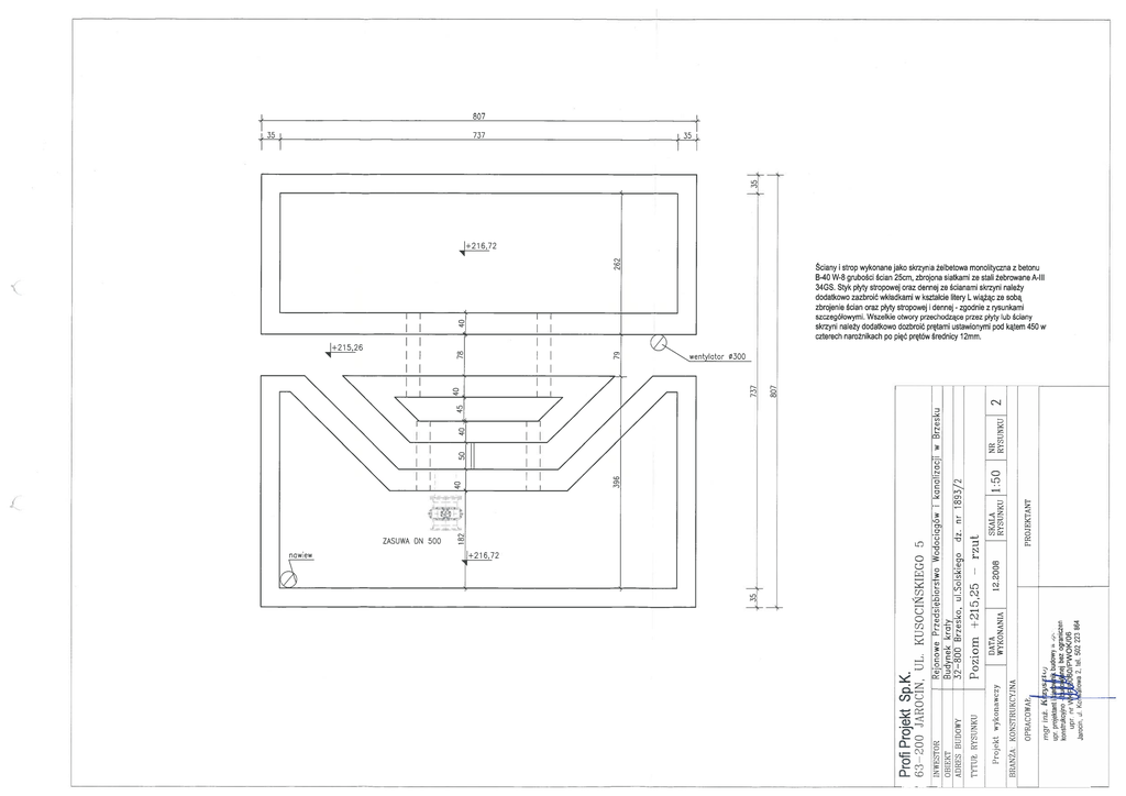
Ściany i strop wykonane jako skrzynia żelbetowa

Transkrypt

Ściany i strop wykonane jako skrzynia żelbetowa
Ściany i strop wykonane jako skrzynia żelbetowa monolityczna z betonu
B-40 W-8 grubości ścian 25cm, zbrojona siatkami ze stali żebrowane A-III
34GS. Styk płyty stropowej oraz dennej ze ścianami skrzyni należy
dodatkowo zazbroić wkładkami w kształcie litery L wiążąc ze sobą
zbrojenie ścian oraz płyty stropowej i dennej zgodnie z rysunkami
szczegółowymi. Wszelkie otwory przechodzące przez płyty lub ściany
skrzyni należy dodatkowo dozbroić prętami ustawionymi pod kątem 450 w
czterech narożnikach po pięć prętów średnicy l2mm.
-