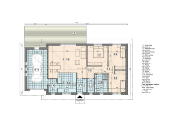
Rene_2_1 _ 0. Parter

Transkrypt

Rene_2_1 _ 0. Parter
1 729
361
1 368
T
63
1.1. Wiatrołap
Pow: 3,80 m2
1.2. Komunikacja
639
338
1.3. Komunikacja
Pow: 4,09 m2
1.8
335
1.7
1.4. Pom. gosp.
1.6
Pow: 3,36 m2
1.5. Kuchnia
Pow: 10,33 m2
1.6.Salon
543
453
Pow: 5,62 m2
288
401
336
Pow: 28,63 m2
1.3
1.2
328
120
1.12
858
Pow: 11,43 m2
284
195
660
732
1.7. Pokój
1.8. Pokój
Pow: 10,93 m2
1.9. Pokój
Pow: 10,07 m2
1.10. Łazienka
Pow: 6,66 m2
1.11. WC
1.9
1.1
309
145
1.11
Pow: 2,62 m2
373
1.10
307
307
1.5
1.4
231
231
334
110
160
1.12. Garaż
Pow: 22,39 m2
Pow. użytkowa parteru
Pow: 119,93 m2
216
288
Pow. zabudowy
Pow: 143,77 m2
T. Taras
63
Pow: 33,31 m2
WEJŚCIE