Plik źródłowy

Transkrypt

Plik źródłowy
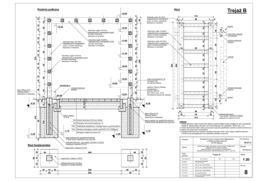
Przekrój podłużny
Rzut
Trejaż B
7
16
43
10
8
33
odsunięcie palisady
od chodnika
45
10
obrzeże betonowe
8x30cm
10
35
45
chodnik
35
100
10cm Warstwa odcinająca z piasku wg PN-B-11113:7996 gat.2
Istniejące podłoże gruntowe G3
-1,16
-1,26
10
otwór palisady do wypełnienia betonem
C16/20 przed ustawianiem jej w gruncie
20
20
palisada betonowa 18x18cm
osadzana w chudym betonie
208
208
38
20
58
8
33 10
78
114
16
43
7
18
palisada betonowa
- typ nostalit -18x18cm l=120cm
osadzana w betonie C12/15
Fundacja Fundusz Lokalny Ziemi Biłgorajskiej
ul.Tadeusza Kościuszki 65
23-400 Biłgoraj
Przebudowa układu drogowego na terenie Parku "Solidarności"
w Biłgoraju wraz z budową obiektów
małej architektury oraz przyłączami wodociągowym,
kanalizacji deszczowej i elektroenergetycznym; Dz. nr 1, ark. 49.
Treść
rysunku:
58
stopa fund. z betonu C12/15
20
20
18
18
29
9
UWAGA!
1. Widoki elewacji i detal mocowania obejmy słupów trejaża A jest analogiczny jak w przypadku
trejaża B, gdzie jedyną różnicą w ich konstrukcji jest ich rozpiętość. (Patrz rys. nr 7)
2. Przed wykonaniem tablic należy przeczytać wytyczne projektowe zawarte w opisie technicznym.
3. Miecze wg wytycznych konstruktora.
4. Palisady betonowe typu Nostalit posiadają wewnątrz otwór, który należy wypełnić betonem
C16/20 przed przystąpieniem do ustawiania palisady w gruncie.
Temat:
266
18
58
18
Inwestor:
stopa fund. z betonu C12/15
20
96
palisada betonowa - typ nostalit -18x18cm l=120cm
osadzana w betonie C12/15
29
trawnik
2 10
otwór palisady do wypełnienia betonem
C16/20 przed ustawianiem jej w gruncie
10cm Podbudowa zasadnicza z chudego betonu wg PN-S-96014
Rzut fundamentów
45
10
35
10
5
10 10 5 8
5
10
15
pręt l=30cm,ø=12
stalowej obejmy
zakotwiony w palisadzie
5cm Podsypka cementowo-piaskowa 1:4
-1,26
obrzeże betonowe
8x30cm
-0,26
8cm Kostka betonowa 20x10cm holland
-1,16
45
10
32 10
trawnik
14
obejma z blachy stalowej
ocynkowanej
gr.5mm, typu 'U',
wys. 36cm, szer. 12cm
do kotwienia słupów do palisady
40
+0,04
±0,00
125
90
82
śruby ocynkowane ø=10
mocujące słup
do stalowej obejmy
ława z betonu
C12/15
20
2
280
32 10
+0,54
9
58
7
2
20
31 10
+0,96
obrzeże betonowe
8x30cm
45
28
42
14
284
42
42
42
+1,38
drewniany rygiel 10x10cm
zabezpieczony impregnatem p.poż.
na kolor orzechowy
fazowany w narożach
270
drewniany rygiel 10x10cm
zabezpieczony impregnatem
p.poż. na kolor orzechowy
fazowany w narożach
+0,40
-0,25
96
250
10 32
10 32
+1,80
SZCZEGÓŁ E
pręt l=30cm,ø=12
stalowej obejmy
zakotwiony w palisadzie
7
drewniany rygiel 14x20cm
zabezpieczony impregnatem
p.poż. na kolor orzechowy
fazowany w narożach
32 10
42
drewniany rygiel 14x20cm
zabezpieczony impregnatem p.poż.
na kolor orzechowy
fazowany w narożach
2
35
+2,22
drewniany słup 14x14cm
zabezpieczony impregnatem
p.poż. na kolor orzechowy,
fazowany w narożach
114
drewniany słup 14x14cm
zabezpieczony impregnatem
p.poż. na kolor orzechowy,
fazowany w narożach
27 5
42
+2,49
drewniany rygiel 10x10cm
zabezpieczony impregnatem p.poż.
na kolor orzechowy
fazowany w narożach
10 32
10 32
10 32
10
10
15
5
+2,69
Wyszczególnienie
Trejaż B
Imię i Nazwisko
Projektant:
mgr inż. arch. Piotr Balik
Opracowanie:
mgr inż. arch. Łukasz Makoś
Opracowanie:
mgr inż. arch. Agnieszka Potocka
Opracowanie:
mgr inż. arch. Leszek Babiarz
ZUT ARPOT:
inż. Krzysztof Potocki
Sprawdzający:
mgr inż. arch. Marek Pieniądz
Data
Nr zlecenia:
38/2012
Branża:
Architektura
Skala:
Podpis
1:20
nr upr. MPOIA/075/2009
nr upr. MPOIA/009/2009
Nr rys.
8