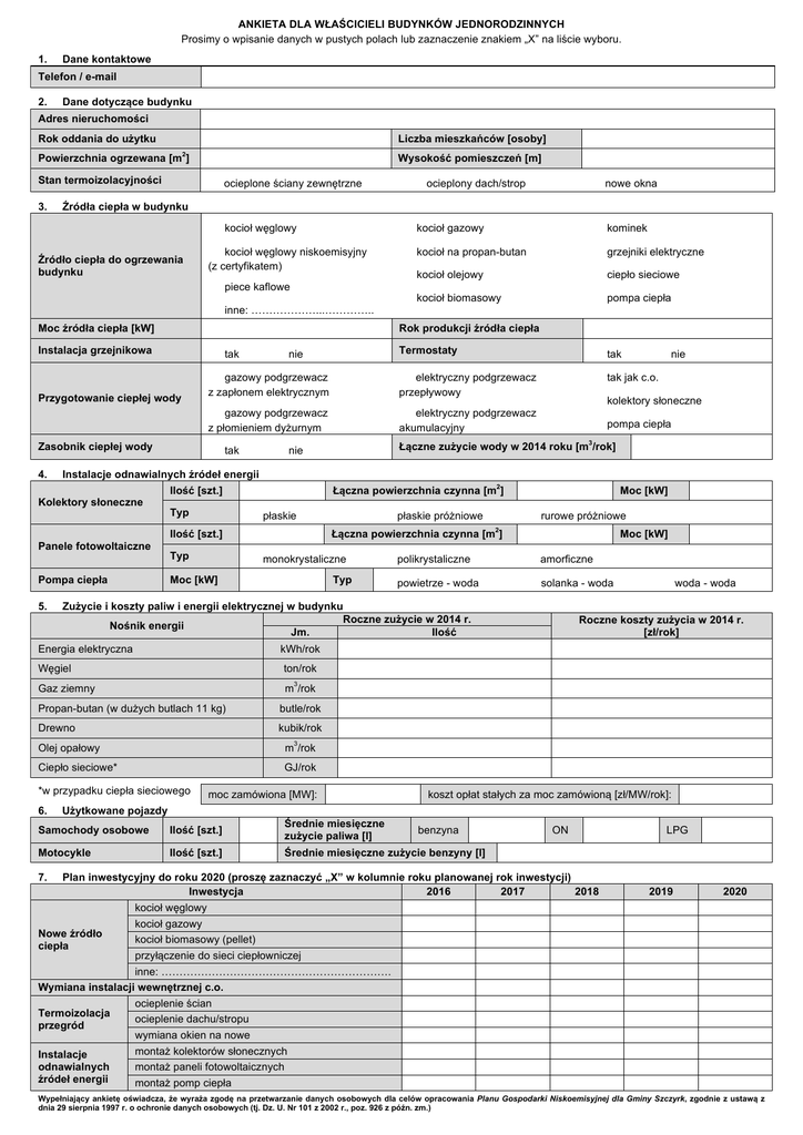
ankieta dla mieszkańców

Transkrypt

ankieta dla mieszkańców
ANKIETA DLA WŁAŚCICIELI BUDYNKÓW JEDNORODZINNYCH
Prosimy o wpisanie danych w pustych polach lub zaznaczenie znakiem „X” na liście wyboru.
1.
Dane kontaktowe
Telefon / e-mail
2.
Dane dotyczące budynku
Adres nieruchomości
Rok oddania do użytku
Liczba mieszkańców [osoby]
2
Powierzchnia ogrzewana [m ]
Wysokość pomieszczeń [m]
Stan termoizolacyjności
3.
ocieplone ściany zewnętrzne
ocieplony dach/strop
nowe okna
Źródła ciepła w budynku
kocioł węglowy
Źródło ciepła do ogrzewania
budynku
kocioł węglowy niskoemisyjny
(z certyfikatem)
piece kaflowe
kocioł gazowy
kominek
kocioł na propan-butan
grzejniki elektryczne
kocioł olejowy
ciepło sieciowe
kocioł biomasowy
pompa ciepła
inne: ………………...…………..
Moc źródła ciepła [kW]
Rok produkcji źródła ciepła
Instalacja grzejnikowa
Termostaty
tak
gazowy podgrzewacz
z zapłonem elektrycznym
elektryczny podgrzewacz
przepływowy
tak jak c.o.
gazowy podgrzewacz
z płomieniem dyżurnym
elektryczny podgrzewacz
akumulacyjny
tak
Przygotowanie ciepłej wody
Zasobnik ciepłej wody
4.
nie
tak
Panele fotowoltaiczne
Pompa ciepła
Łączne zużycie wody w 2014 roku [m /rok]
2
Ilość [szt.]
Typ
Łączna powierzchnia czynna [m ]
płaskie
Typ
płaskie próżniowe
Moc [kW]
rurowe próżniowe
2
Łączna powierzchnia czynna [m ]
monokrystaliczne
Moc [kW]
Typ
Moc [kW]
polikrystaliczne
amorficzne
powietrze - woda
solanka - woda
Zużycie i koszty paliw i energii elektrycznej w budynku
Roczne zużycie w 2014 r.
Nośnik energii
Jm.
Ilość
Energia elektryczna
woda - woda
Roczne koszty zużycia w 2014 r.
[zł/rok]
kWh/rok
Węgiel
ton/rok
Gaz ziemny
m /rok
3
Propan-butan (w dużych butlach 11 kg)
butle/rok
Drewno
kubik/rok
3
Olej opałowy
m /rok
Ciepło sieciowe*
GJ/rok
*w przypadku ciepła sieciowego
moc zamówiona [MW]:
koszt opłat stałych za moc zamówioną [zł/MW/rok]:
Użytkowane pojazdy
Samochody osobowe
Ilość [szt.]
Średnie miesięczne
zużycie paliwa [l]
Motocykle
Ilość [szt.]
Średnie miesięczne zużycie benzyny [l]
7.
pompa ciepła
3
nie
Ilość [szt.]
6.
kolektory słoneczne
Instalacje odnawialnych źródeł energii
Kolektory słoneczne
5.
nie
benzyna
ON
Plan inwestycyjny do roku 2020 (proszę zaznaczyć „X” w kolumnie roku planowanej rok inwestycji)
Inwestycja
2016
2017
2018
kocioł węglowy
Nowe źródło
ciepła
LPG
2019
2020
kocioł gazowy
kocioł biomasowy (pellet)
przyłączenie do sieci ciepłowniczej
inne: ……………………………………………………….
Wymiana instalacji wewnętrznej c.o.
Termoizolacja
przegród
Instalacje
odnawialnych
źródeł energii
ocieplenie ścian
ocieplenie dachu/stropu
wymiana okien na nowe
montaż kolektorów słonecznych
montaż paneli fotowoltaicznych
montaż pomp ciepła
Wypełniający ankietę oświadcza, że wyraża zgodę na przetwarzanie danych osobowych dla celów opracowania Planu Gospodarki Niskoemisyjnej dla Gminy Szczyrk, zgodnie z ustawą z
dnia 29 sierpnia 1997 r. o ochronie danych osobowych (tj. Dz. U. Nr 101 z 2002 r., poz. 926 z późn. zm.)