plany apartamentów — poziom -1

Transkrypt

plany apartamentów — poziom -1
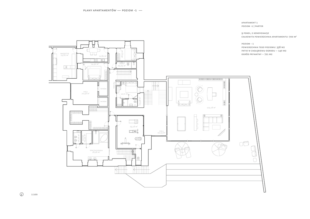
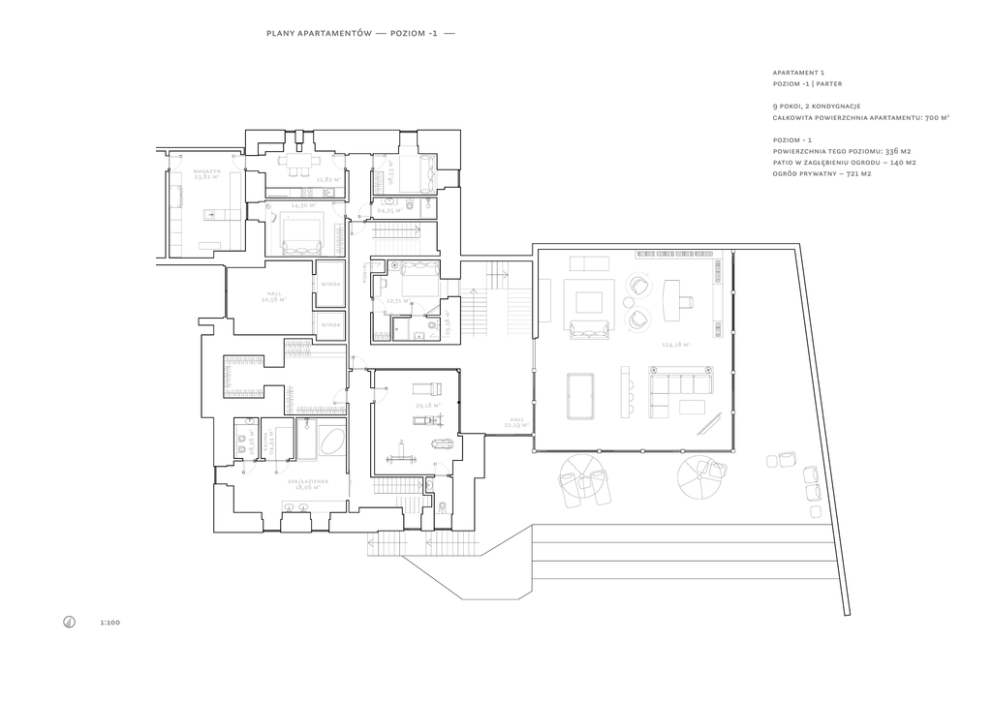
plany apartamentów — poziom -1 —
apartament 1
poziom -1 | parter
9 pokoi, 2 kondygnacje
całkowita powierzchnia apartamentu: 700 m2
08,53 m2
magazyn
23,82 m2
poziom - 1
powierzchnia tego poziomu: 336 m2
patio w zagłębieniu ogrodu – 140 m2
ogród prywatny – 721 m2
11,82 m2
14,30 m2
04,25 m2
winda
winda
hall
20,56 m 2
03,58 m2
12,71 m2
winda
124,18 m2
29,18 m2
sauna
04,34 m2
08,26 m2
hall
22,19 m2
spa/łazienka
18,06 m2
1:100
plany apartamentów — parter —
apartament 1
poziom -1 | parter
9 pokoi, 2 kondygnacje
całkowita powierzchnia apartamentu: 700 m2
parter
powierzchnia tego poziomu: 364 m2
22,34 m2
18,85 m2
07,48 m2
05,55 m2
winda
winda
19,95 m2
winda
124,10 m2
hall
26,59 m2
52,74 m2
07,07 m2
07,64 m2
40,75 m2
1:100
plany apartamentów — garaż —
komórka 1
16,66 m2
komórka 2
16,66 m 2
komórka 3
16,66 m 2
magazyn
17,79 m 2
winda
liczniki
5,44 m 2
śmietnik
10,57 m 2
winda
#01
#02
przepompownia
7,12 m 2
przedsionek
7,77 m 2
przedsionek
2,88 m 2
węzeł co
6,62 m2
pomieszczenie
techniczne
3,07 m2
#03
#04
#05
#06
#07
#08
#09
#10
ochrona
11,04 m 2
garaż
10 miejsc parkingowych na duże samochody
3 prywatne pomieszczenia magazynowe po 17 m2
Garaż podziemny znajduje się pod dziedzińcem wejściowym
i dostępny jest bezpośrednio z wind obsługujących apartamenty.
1:100