S ZA FA O Ś W IE TLE N IO W A

Transkrypt

S ZA FA O Ś W IE TLE N IO W A
3
1
4
2
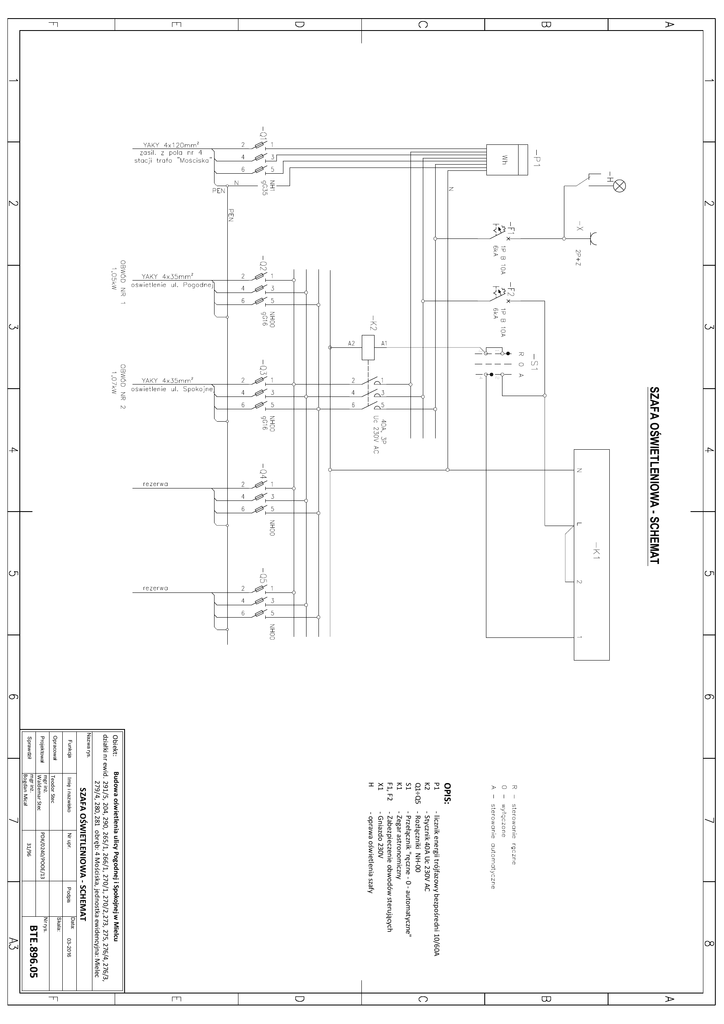
SZAFA OŚWIETLENIOWA - SCHEMAT
OPIS:
P1
K2
Q1÷Q5
S1
K1
F1, F2
X1
H
- licznik energii trójfazowy bezpośredni 10/60A
- Stycznik 40A Uc 230V AC
- Rozłączniki NH-00
- Przełącznik "ręczne - 0 - automatyczne"
- Zegar astronomiczny
- Zabezpieczenie obwodów sterujących
- Gniazdo 230V
- oprawa oświetlenia szafy
31/96
PDK/0240/POOE/13
Nr upr.
Podpis
BTE.896.05
Nr rys.
Skala:
Data:
SZAFA OŚWIETLENIOWA - SCHEMAT
Imię i nazwisko
Teodor Stec
mgr inż.
Waldemar Stec
mgr inż.
Bogdan Micał
03-2016
Budowa oświetlenia ulicy Pogodnej i Spokojnej w Mielcu
Obiekt:
działki nr ewid. 291/5, 204, 290, 265/1, 266/1, 270/1, 270/2,273, 275, 276/4, 276/3,
279/4, 280, 281 obręb: 4 Mościska, jednostka ewidencyjna: Mielec
Nazwa rys.
Funkcja
Opracował
Projektował
Sprawdził