Modernizacja Bud. Wielofunkcyjnego Proj. Wyk.

Transkrypt

Modernizacja Bud. Wielofunkcyjnego Proj. Wyk.
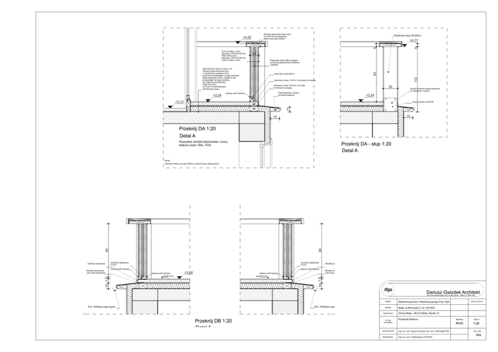
-Obróbka blacharska Stal ocynk.
-2x Folia PE przeciwwodna
-deska wieńcząca Balkon
Drewniany słup 25x25cm
+3,24
Połączenie płyty OSB ze słupem
za pomocą płaskownika 50x50mm
i wkrętów
drewniany cokół 8x5cm
110
-Mrozoodporny gress na kleju 1cm
-Zbrojona gladź betonowa 5cm
z wyrobionymi spadkami 0,4%
w kierunku prostopadłym do tego przekroju
-Mata drenażowa 0,8cm, odpływ w kier.
prostopadłym do tego przekroju
-2x Folia PE przeciwwodna
-Płyta PIR 10cm
-2x Folia PE paroizolacyjna
-Konstrukcja stropu
15
93
-Tynk na siatce 1,5cm
-Styropian EPS 80-036 5cm
-Płyta OSB 2,5cm
-Styropian EPS 80-036 5cm
-Tynk na siatce 1,5cm
5
+4,17
5
+4,22
drewniany oczep 14x7cm, mocowany do słupów
drewniany oczep 14x10cm, do niego
montowane są legary
25
Profil drewniany 16x8cm
pomiędzy legarami
stalowy profil startowy
sposób kotwiena słupów pokazany
na oddzielnym rysunku
+3,24
+3,13
75
Słupy ustawić na folii PE
15
15
Przekrój DA 1:20
Detal A
Wszystkie obróbki blacharskie i rynny
balkonu kolor: RAL 7033
Przekrój DA - słup 1:20
Detal A
Uwagi:
szczelina odpływowa
h=3cm
stalowy profil startowy
stalowy profil startowy
stalowy profil startowy
spadek 0,4%
+3,24
stalowy profil startowy
spadek 0,4%
10 7 3
Obróbka blacharska
pod matą drenażową
szczelina odpływowa
h=3cm
Obróbka blacharska
Obróbka blacharska
pod matą drenażową
10 7 3
Obróbka blacharska
90
90
-Styropian klejony do płyty OSB na wodnym kleju dyspersyjnym.
Dariusz Gwizdek Architekt
ulica Grota-Roweckiego 5c/8, 45-267 Opole, telefon 77-4555-304
TEMAT
R.S. 70/50mm stal ocynk.
R.S. 70/50mm stal ocynk.
ADRES
INWESTOR
Przekrój DB 1:20
Detal A
TYTUŁ
RYSUNKU
Modernizacja Bud. Wielofunkcyjnego Proj. Wyk.
DATA: 02.2014
Biała, ul.Moniuszki 3, dz. 931/932
Gmina Biała , 48-210 Biała, Rynek 10
Przekroje Balkonu
PROJEKTANT
mgr inż. arch. Dariusz Gwizdek Upr. arch. OKK/UpB/07/05
SPRAWDZIŁ
mgr inż. arch. K.Malinkiewicz 92/78/OP
BRANŻA
SKALA
Arch.
1:20
RYS. NR
W4