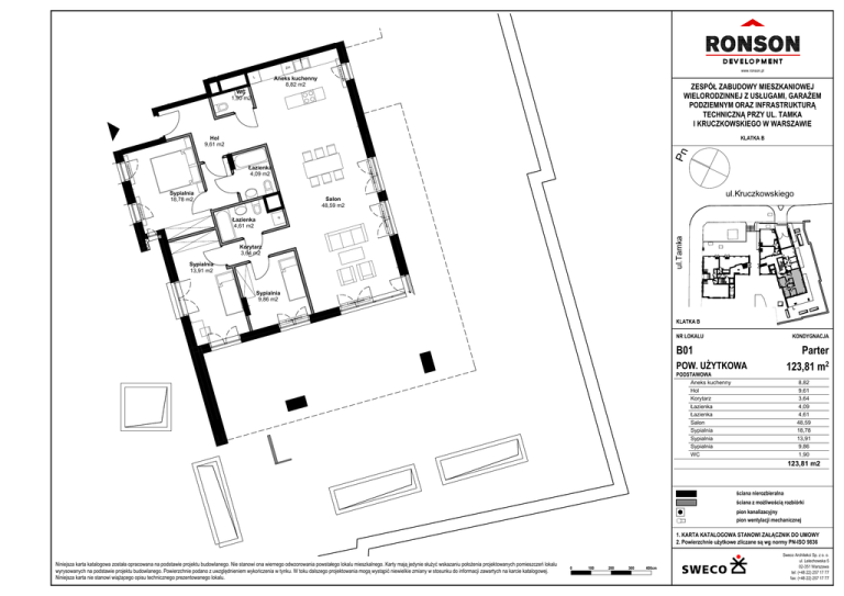
Pn B01 Parter 123,81 m2

Transkrypt

Pn B01 Parter 123,81 m2
2 na
wiew
P
niki
Łazienka
4,76 m2
1 na
Zm
www.ronson.pl
wiew
nik
Aneks kuchenny
8,82 m2
L
ZESPÓŁ ZABUDOWY MIESZKANIOWEJ
WIELORODZINNEJ Z USŁUGAMI, GARAŻEM
PODZIEMNYM ORAZ INFRASTRUKTURĄ
TECHNICZNĄ PRZY UL. TAMKA
I KRUCZKOWSKIEGO W WARSZAWIE
WC
1,90 m2
KLATKA B
1 na
Pn
Hol
9,61 m2
1 na
nik
wiew
wiew
Łazienka
4,09 m2
nik
Sypialnia
18,78 m2
ul.Kruczkowskiego
1 na
Salon
48,59 m2
P
wiew
nik
wa
1 nawiewni
k
2 nawiewni
ki
1 nawiewni
k
2 nawiewni
ki
1 nawiewni
k
W+
Sypialnia
13,91 m2
aluminio
Korytarz
3,64 m2
żaluzja
ul.Tamka
nik
1 na
wiew
Łazienka
4,61 m2
CO
W + CO
k
1 nawiewni
1 nawiewni
k
k
1 nawiewni
1 nawiewni
k
Sypialnia
9,86 m2
1 nawiewni
1 nawiewni
1 na
1 na
wiew
k
k
nik
wiew
nik
KLATKA B
NR LOKALU
KONDYGNACJA
B01
Parter
123,81 m2
POW. UŻYTKOWA
PODSTAWOWA
Aneks kuchenny
Hol
Korytarz
Łazienka
Łazienka
Salon
Sypialnia
Sypialnia
Sypialnia
WC
8,82
9,61
3,64
4,09
4,61
48,59
18,78
13,91
9,86
1,90
123,81 m2
ściana nierozbieralna
ściana z możliwością rozbiórki
pion kanalizacyjny
pion wentylacji mechanicznej
1. KARTA KATALOGOWA STANOWI ZAŁĄCZNIK DO UMOWY
2. Powierzchnie użytkowe zliczane są wg normy PN­ISO 9836
Niniejsza karta katalogowa została opracowana na podstawie projektu budowlanego. Nie stanowi ona wiernego odwzorowania powstałego lokalu mieszkalnego. Karty mają jedynie służyć wskazaniu położenia projektowanych pomieszczeń lokalu
wyrysowanych na podstawie projektu budowlanego. Powierzchnie podano z uwzględnieniem wykończenia w tynku. W toku dalszego projektowania mogą wystąpić niewielkie zmiany w stosunku do informacji zawartych na karcie katalogowej.
Niniejsza karta nie stanowi wiążącego opisu technicznego prezentowanego lokalu.
0
100
200
300
400cm
Sweco Architekci Sp. z o. o.
ul. Lelechowska 5
02­351 Warszawa
tel: (+48 22) 257 17 77
fax: (+48 22) 257 17 77