A11 - Gmina Pilchowice

Transkrypt

A11 - Gmina Pilchowice
NOWA obróbka
dylatacji
- listwa główna
obróbka
blacharska
(kolor ciemny
brąz)
15
34
wszystkie scianki
attykowe
natrysk z
termopiany gr.
min.3cm
wszystkie
kominy
natrysk
z termopiany
gr. min.3cm
600
600
koryto
odwadniajace
24
docieplenie
elewacji 14cm
styropian
15
34
obróbka
blacharska
(kolor ciemny
brąz)
koryto
odwadniajace
obróbka
blacharska
nad dylatacja
wszystkie kominy
natrysk z termopiany
gr. min.3cm
docieplenie
elewacji
14cm
styropian
20
34
obróbka
blacharska
(kolor ciemny
brąz)
600
24
600
istniejąca
blachodachówka
(kolor ciemny
brąz)
20
ISTNIEJACE ZADASZENIE
WEWNĘTRZNEGO PATIO:
*szkło zbrojone
*płyty (poliwęglan falisty)
*konstrukcja stalowa
15
istniejąca
blachodachówka
(kolor ciemny
brąz)
wszystkie kominy
natrysk z termopiany
gr. min.3cm
obróbka
blacharska
nad dylatacja
wszystkie kominy
natrysk z termopiany
gr. min.3cm
obróbka
blacharska
(kolor ciemny
brąz)
600
wszystkie scianki
attykowe
natrysk z
termopiany gr.
min.3cm
wszystkie scianki
attykowe natrysk
z termopiany gr.
min.3cm
obróbka
blacharska
(kolor ciemny
brąz)
15
34
24
600
koryto
odwadniajace
600
600
istniejąca
blachodachówka
(kolor ciemny
brąz)
600
90
NOWA obróbka
dylatacji
- listwa główna
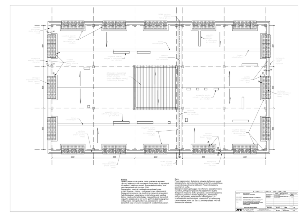
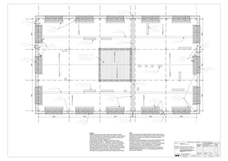
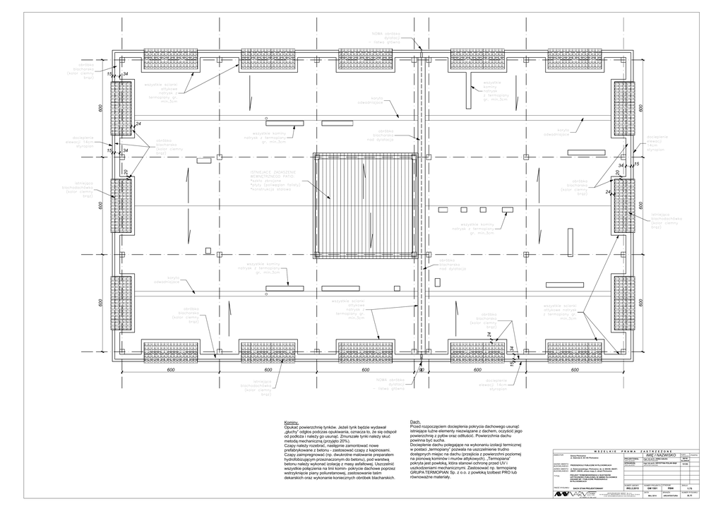
Kominy.
Opukać powierzchnię tynków. Jeżeli tynk będzie wydawał
„głuchy” odgłos podczas opukiwania, oznacza to, że się odspoił
od podłoża i należy go usunąć. Zmurszałe tynki należy skuć
metodą mechaniczną (przyjęto 20%).
Czapy należy rozebrać, następnie zamontować nowe
prefabrykowane z betonu - zastosować czapy z kapinosami.
Czapy zaimpregnować (np. dwukrotne malowanie preparatem
hydrofobizującym przeznaczonym do betonu), pod warstwą
betonu należy wykonać izolację z masy asfaltowej. Uszczelnić
wszystkie połączenia na linii komin- pokrycie dachowe poprzez
wstrzyknięcie piany poliuretanowej, zastosowanie taśm
dekarskich oraz wykonanie koniecznych obróbek blacharskich.
600
600
docieplenie
elewacji 14cm
styropian
Dach.
Przed rozpoczęciem docieplenia pokrycia dachowego usunąć
istniejące luźne elementy niezwiązane z dachem, oczyścić jego
powierzchnię z pyłów oraz odtłuścić. Powierzchnia dachu
powinna być sucha.
Docieplenie dachu polegające na wykonaniu izolacji termicznej
w postaci „termopiany” pozwala na uszczelnienie trudno
dostępnych miejsc na dachu (przejścia z powierzchni poziomej
na pionową kominów i murów attykowych). „Termopiana”
pokryta jest powłoką, która stanowi ochronę przed UV i
uszkodzeniami mechanicznymi. Zastosować np. termopianę
GRUPA TERMOPIAN Sp. z o.o. z powłoką Izolbest PRO lub
równoważne materiały.
W S Z E L K I E
INWESTOR:
NAZWA OBIEKTU
BUDOWLANEGO:
PRZEDSZKOLE PUBLICZNE W PILCHOWICACH
ADRES OBIEKTU
BUDOWLANEGO:
ul. Świerczewskiego; Pilchowice; dz. nr 263/40; 264/57;
266/57; 268/40; arkusz mapy 2; obręb Pilchowice
TYTUŁ:
PROJEKT TERMOMODERNIZACJI BUDYNKÓW
UŻYTECZNOŚCI PUBLICZNEJ W GMINIE PILCHOWICE
ZADANIE NR 1 PUBLICZNE PRZEDSZKOLE
W PILCHOWICACH
TREŚĆ RYSUNKU:
DACH STAN PROJEKTOWANY
GLIWICE
od 1988 r.
P R A W A
Z A S T R Z E Ż O N E
IMIĘ I NAZWISKO
Gmina Pilchowice
ul. Damrota 6; 44-145 Pilchowice
mgr inż.arch. ANNA GAŁKA
SPECJALNOŚĆ:
ARCHITEKTONICZNA
SPRAWDZIŁ:
mgr inż.arch. KRYSTYNA POLAK-BĄK
SPECJALNOŚĆ:
ARCHITEKTONICZNA
NUMER UMOWY:
NUMER PROJEKTU: STADIUM:
IRG.2.2015
GRUPA PROJEKTOWA "MARWIT" Sp. z o.o.
44-100 GLIWICE ul. WROCŁAWSKA 8, TEL/FAX +32 331 36 90, 775 09 30
e-mail: [email protected], www.marwit.gliwice.pl
GM 1501
DATA:
MAJ 2014
NUMER
UPRAWNIEŃ:
PODPIS:
38/10/
SLOKK/II
PROJEKTOWAŁ:
PBW
BRANŻA:
ARCHITEKTURA
191/86
SKALA:
1:75
NUMER RYSUNKU:
A.11