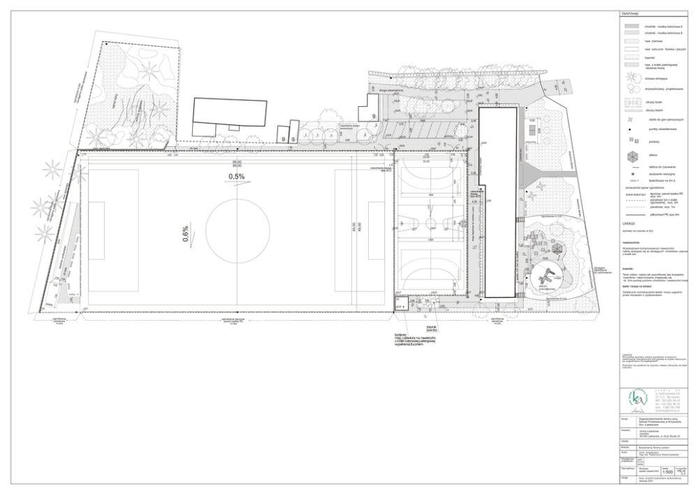
5_3 wymiary

Transkrypt

5_3 wymiary
Opis/Uwagi:
chodniki - kostka betonowa 6
chodniki - kostka betonowa 8
naw. ¿wirowa
naw. sztuczne /boiska i placyki/
trawniki
w an
a
naw. z kratki parkingowej
obsianej traw¹
2,40
2,70
2.
132,38
20,00
1,00
1,00
0,15
0,15
odwodnienie liniowe
typu ACO
3,30
droga dojazdowa do szamba i p.po¿
20,00
1,00
2%
0,50
4,30
koszykówka
-40,00-44,00-
0,5%
ogrodzenie h=1m
pi³kochwyt PE wys 4m
wymiary na rysunku w [m]
132,31
r=5m
placyk
poliuretanowy
rzewów
rabata k
5
1,2
istniej¹ce
ogrodzenie
do zachowania
trawniki:
Teren zieleni nale¿y tak wyprofilowaæ aby krawêdzie
trawników i rabat krzewów znajdowa³y siê
ok. 2cm poni¿ej poziomu chodników i nawierzchni boisk
³awki i kosze na œmieci:
Ostateczne rozmieszczenie ³awek i koszy uzgodniæ
przed monta¿em z u¿ytkownikiem
132,31
0,60
10,75
ogrodzenie h=1m
2%
1,00 1,60
2,00
10,00
9,00
2,00
Wysokoœciami kontynuowanych nawierzchni
nale¿y dowi¹zaæ siê do istniej¹cych chodników i placów
z kostki bet .
altanka
4,50
siatkówka
3,00
3,75
2,00
1,20
2,00
7,00
3%
132,26
132,7
2%
piask
.
s3
2,50
2%
1,60
132,27
0
11,3
7,00
opaska 0,50 /¿wir lub kostka/
liuret
an
ch.be
t.
s4
132,57
9,25
1,60
ia -po
bie¿n
132,27
7,00
panelowe, wys. 1m
nawierzchnie:
4,00
ogrodzenie
panelowe
h=2m
³¹czone: panel+siatka PE
wys. 4m
panelowe lub z siatki
zgrzewanej , wys. 2m
UWAGI:
1,5%
2,00 2
,00
133
studzienki rewizyjne
s2
oznaczenia typów ogrodzenia:
2,50
11,00
132,57
0,5%
tablica do rysowania
odwodnienie
liniowe
typu ACO
0,6%
49,00
45,00
0,6%
132,36
altana
³awki/kosze na œm.e
siatkówka
9,00
y
orow
18,00
rzewów
rabata k
4,00
22,00
132,52
s2
1,00
4,00
1,00
f.
chodnik istn.
br.
132,57
s1
zniwelowaæ stopieñ
4,00
132,52
br.
podesty
ping pong
132,56
1,00
1,00 4,00
3%
4,20
3,00 1,00
3%
4,50
3%
132,340
6,00
f.
punkty oœwietleniowe
8,00
parking
132,340
mur o
p
a
w an
2%
rzewów
rabata k
2.
stoliki do gier planszowych
5,00
5,00
6,00
1.
obrysy bie¿ni
3,30
5,00
ch.bet.
1.
2,25
1,20
f.
g.
1.
obrysy boisk
3,00
2400
1,50
0,5%
26,00
3%
3,30
3%
3%
e
renow
scho
g.
drzewa/krzewy projektowane
132,35
132,35
95,00
90,00
ogro
d
naci zenie h
¹ gan
=
a si a 2 m
tka z
grze
br.
132,35
g.
mur oporowy
1341,
132,32
132,32
dy te
ogród
leœny
132,30
utwardzony placyk
pomocniczy
133
132,35
droga wewnêtrzna
4,50
3,30
3%
ogro
d
naci zenie h
¹ga n
=
a sia 2m
tka z
grze
drzewa istniej¹ce
9,75
ogrodzenie
panelowe
h=2m
ogrodzenie ³¹czone:
panel+siatka PE
h=4m
zbiornik
szamba
kontener
mag. ustawiony na nawierzchn
z kratki betonowej parkingowej
wype³nionej t³uczniem
UWAGA:
Wszystkie wymiary nale¿y sprawdzic w terenie i
ewentualne niezgodnosci korygowaæ w trybie roboczym,
po uzgodnieniu z projektantem
Wymiary nie podane na rysunku nale¿y odczytaæ ze skali
rysunku
Temat:
Inwestor:
Zagospodarowanie terenu przy
Szkole Podstawowej w Krzywdzie,
Gm. £askarzew
Gmina £askarzew
siedziba:
08-450 £askarzew, ul. Du¿y Rynek 32
Obiekt:
Bran¿a:
Budowlana,Tereny zieleni
Autor:
arch. krajobrazu
mgr in¿. Katarzyna Œwierczewska
Wspó³praca
projektowa:
arch.
konst.
Tytu³ planszy:
Uwagi:
Wymiary,
spadki nawierzchni
skala:
1:500
nr rysunku:
PB-W
5.2
faza: projekt budowlano-wykonawczy
listopad 2007