Piętro 2.01 Hall 14,3 m2 2.02 Pokój 14,0 m2 2.03 Garderoba 6,4 m2

Transkrypt

Piętro 2.01 Hall 14,3 m2 2.02 Pokój 14,0 m2 2.03 Garderoba 6,4 m2
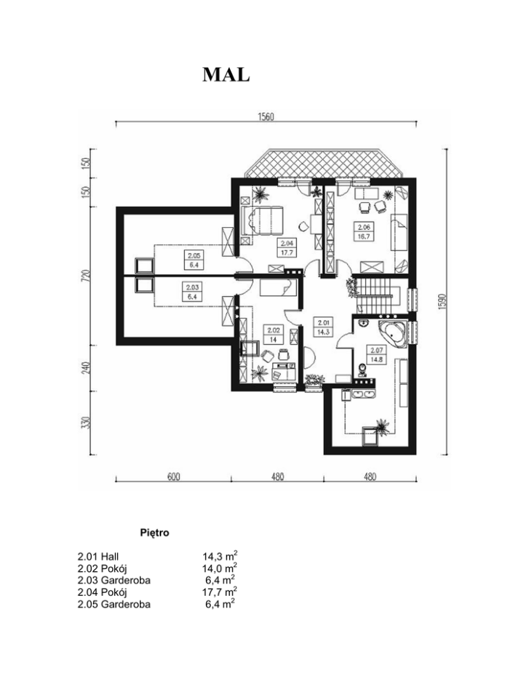
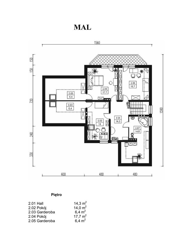
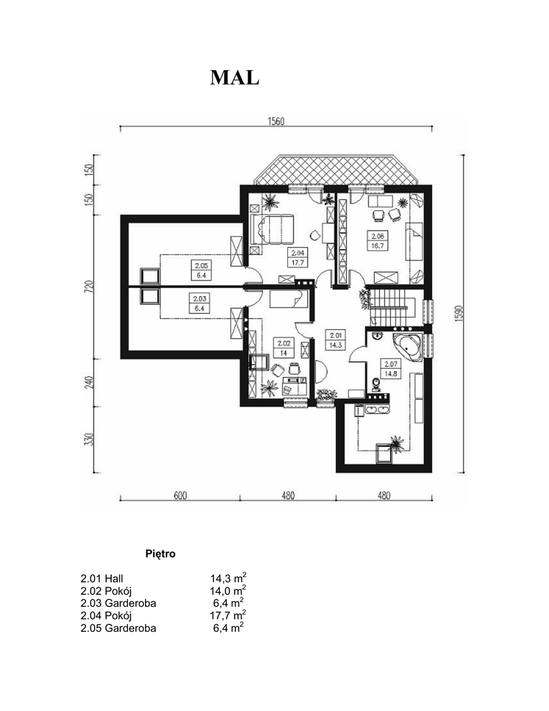
MAL
Piętro
2.01 Hall
2.02 Pokój
2.03 Garderoba
2.04 Pokój
2.05 Garderoba
14,3 m2
14,0 m2
6,4 m2
17,7 m2
6,4 m2
2.06 Pokój
14,8 m2
RAZEM
90,3 m2
Pow. całkowita
Kubatura
105,4 m2
300,0 m3
Parter
1.01 Wiatrołap
1.02 Hall
1.03 Kuchnia z jadalnią
1.04 Pokój dzienny
1.05 Łazienka
1.06 Gabinet
1.07 Garaż
3.3 m2
12.6 m2
16,8 m2
43,3 m2
8,4 m2
12,2 m2
34,9 m2
RAZEM
131.5 m2
Pow. zabudowy
Pow. całkowita
Kubatura
166,9 m2
166,9 m2
480,0 m3