rys. 1

Transkrypt

rys. 1
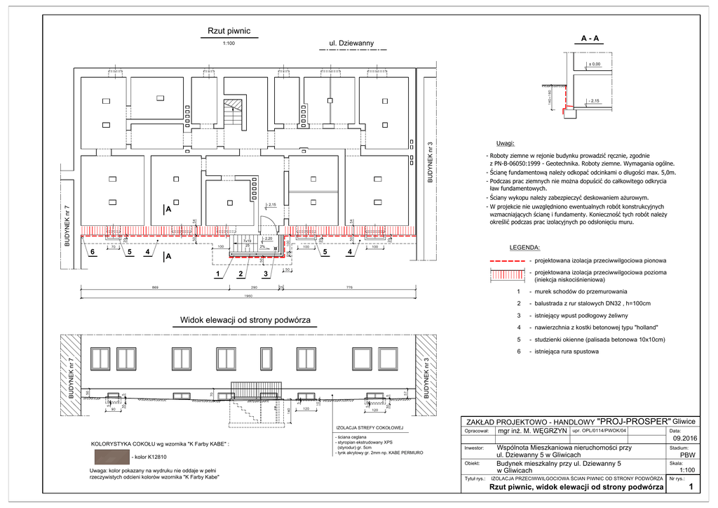
Rzut piwnic
A-A
ul. Dziewanny
1:100
± 0,00
- 2,15
BUDYNEK nr 3
Uwagi:
- Roboty ziemne w rejonie budynku prowadzić ręcznie, zgodnie
z PN-B-06050:1999 - Geotechnika. Roboty ziemne. Wymagania ogólne.
- Ścianę fundamentową należy odkopać odcinkami o długości max. 5,0m.
- Podczas prac ziemnych nie można dopuścić do całkowitego odkrycia
ław fundamentowych.
BUDYNEK nr 7
- Ściany wykopu należy zabezpieczyć deskowaniem ażurowym.
- 2,15
A
7x19
25
6
5
4
- W projekcie nie uwzględniono ewentualnych robót konstrukcyjnych
wzmacniających ścianę i fundamenty. Konieczność tych robót należy
określić podczas prac izolacyjnych po odsłonięciu muru.
- 2,20
2%
5
A
LEGENDA:
4
- projektowana izolacja przeciwwilgociowa pionowa
1
2
- projektowana izolacja przeciwwilgociowa pozioma
(iniekcja niskociśnieniowa)
3
- murek schodów do przemurowania
2
- balustrada z rur stalowych DN32 , h=100cm
3
- istniejący wpust podłogowy żeliwny
4
- nawierzchnia z kostki betonowej typu "holland"
5
- studzienki okienne (palisada betonowa 10x10cm)
6
- istniejąca rura spustowa
BUDYNEK nr 3
BUDYNEK nr 7
Widok elewacji od strony podwórza
1
IZOLACJA STREFY COKOŁOWEJ
KOLORYSTYKA COKOŁU wg wzornika "K Farby KABE" :
- ściana ceglana
- styropian ekstrudowany XPS
(styrodur) gr. 5cm
- tynk akrylowy gr. 2mm np. KABE PERMURO
ZAKŁAD PROJEKTOWO - HANDLOWY "PROJ-PROSPER" Gliwice
Opracował:
upr. OPL/0114/PWOK/04
Data:
09.2016
Inwestor:
- kolor K12810
Obiekt:
Uwaga: kolor pokazany na wydruku nie oddaje w pełni
rzeczywistych odcieni kolorów wzornika "K Farby Kabe"
mgr inż. M. WĘGRZYN
Tytuł rys.:
Wspólnota Mieszkaniowa nieruchomości przy
ul. Dziewanny 5 w Gliwicach
Budynek mieszkalny przy ul. Dziewanny 5
w Gliwicach
IZOLACJA PRZECIWWILGOCIOWA ŚCIAN PIWNIC OD STRONY PODWÓRZA
Rzut piwnic, widok elewacji od strony podwórza
Stadium:
PBW
Skala:
1:100
Nr rys.:
1