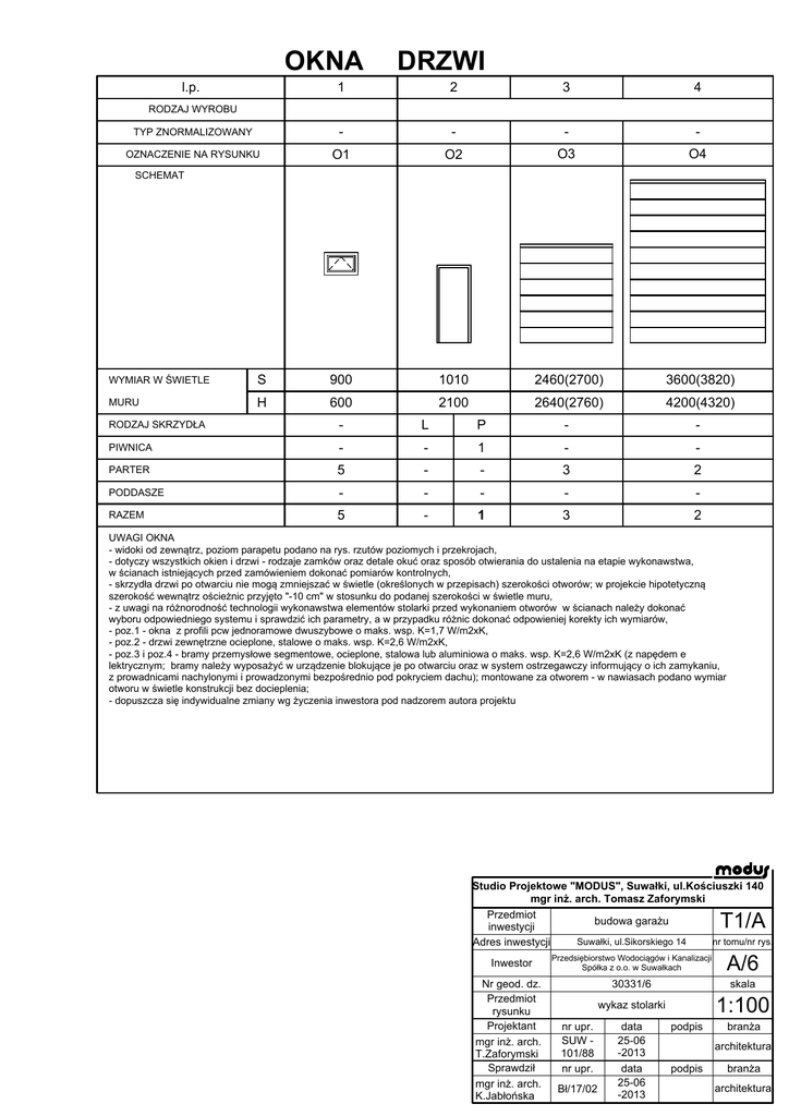
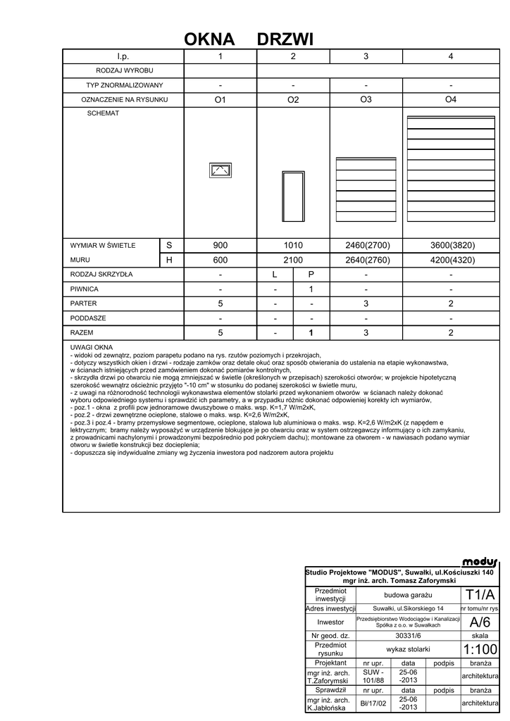
OKNA DRZWI

Transkrypt

OKNA DRZWI
OKNA
l.p.
DRZWI
1
2
3
4
TYP ZNORMALIZOWANY
-
-
-
-
OZNACZENIE NA RYSUNKU
O1
O2
O3
O4
RODZAJ WYROBU
SCHEMAT
WYMIAR W ŚWIETLE
S
900
1010
2460(2700)
3600(3820)
MURU
H
600
2100
2640(2760)
4200(4320)
RODZAJ SKRZYDŁA
-
L
P
-
-
PIWNICA
-
-
1
-
-
PARTER
5
-
-
3
2
PODDASZE
-
-
-
-
-
RAZEM
5
-
1
3
2
UWAGI OKNA
- widoki od zewnątrz, poziom parapetu podano na rys. rzutów poziomych i przekrojach,
- dotyczy wszystkich okien i drzwi - rodzaje zamków oraz detale okuć oraz sposób otwierania do ustalenia na etapie wykonawstwa,
w ścianach istniejących przed zamówieniem dokonać pomiarów kontrolnych,
- skrzydła drzwi po otwarciu nie mogą zmniejszać w świetle (określonych w przepisach) szerokości otworów; w projekcie hipotetyczną
szerokość wewnątrz ościeżnic przyjęto "-10 cm" w stosunku do podanej szerokości w świetle muru,
- z uwagi na różnorodność technologii wykonawstwa elementów stolarki przed wykonaniem otworów w ścianach należy dokonać
wyboru odpowiedniego systemu i sprawdzić ich parametry, a w przypadku różnic dokonać odpowieniej korekty ich wymiarów,
- poz.1 - okna z profili pcw jednoramowe dwuszybowe o maks. wsp. K=1,7 W/m2xK,
- poz.2 - drzwi zewnętrzne ocieplone, stalowe o maks. wsp. K=2,6 W/m2xK,
- poz.3 i poz.4 - bramy przemysłowe segmentowe, ocieplone, stalowa lub aluminiowa o maks. wsp. K=2,6 W/m2xK (z napędem e
lektrycznym; bramy należy wyposażyć w urządzenie blokujące je po otwarciu oraz w system ostrzegawczy informujący o ich zamykaniu,
z prowadnicami nachylonymi i prowadzonymi bezpośrednio pod pokryciem dachu); montowane za otworem - w nawiasach podano wymiar
otworu w świetle konstrukcji bez docieplenia;
- dopuszcza się indywidualne zmiany wg życzenia inwestora pod nadzorem autora projektu
Studio Projektowe "MODUS", Suwałki, ul.Kościuszki 140
mgr inż. arch. Tomasz Zaforymski
Przedmiot
budowa garażu
inwestycji
Suwałki, ul.Sikorskiego 14
nr tomu/nr rys.
Adres inwestycji
T1/A
Inwestor
Nr geod. dz.
Przedmiot
rysunku
Projektant
mgr inż. arch.
T.Zaforymski
Sprawdził
mgr inż. arch.
K.Jabłońska
Przedsiębiorstwo Wodociągów i Kanalizacji
Spółka z o.o. w Suwałkach
A/6
30331/6
skala
1:100
wykaz stolarki
nr upr.
SUW 101/88
nr upr.
Bł/17/02
data
25-06
-2013
data
25-06
-2013
podpis
branża
architektura
podpis
branża
architektura