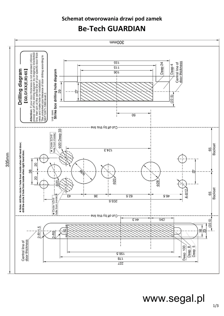
Be-Tech GUARDIAN - schemat otworowania drzwi

Transkrypt

Be-Tech GUARDIAN - schemat otworowania drzwi
Schemat otworowania drzwi pod zamek
Be-Tech GUARDIAN
www.segal.pl
1/3
www.segal.pl
2/3
wymaganej do zamka Be-Tech SMART / GUARDIAN / ELEGANT
UWAGA!!!
Blacha zaczepowa nie wchodzi w skład zamka, należy się w nią zaopatrzyć u dostawcy drzwi. Głębokość od
krawędzi futryny do środka otworowania podana na rysunku 15mm, może być inna w przypadku stosowania np.
grubszych/cieńszych drzwi i należy ją dostosować do zamawianych drzwi.
Blachę o wymiarach dokładnie jak na powyższym rysunku
można nabyć w firmie SEGAL w cenie 10 zł netto/szt.
www.segal.pl
3/3