Sprawozdanie roczne

Transkrypt

Sprawozdanie roczne
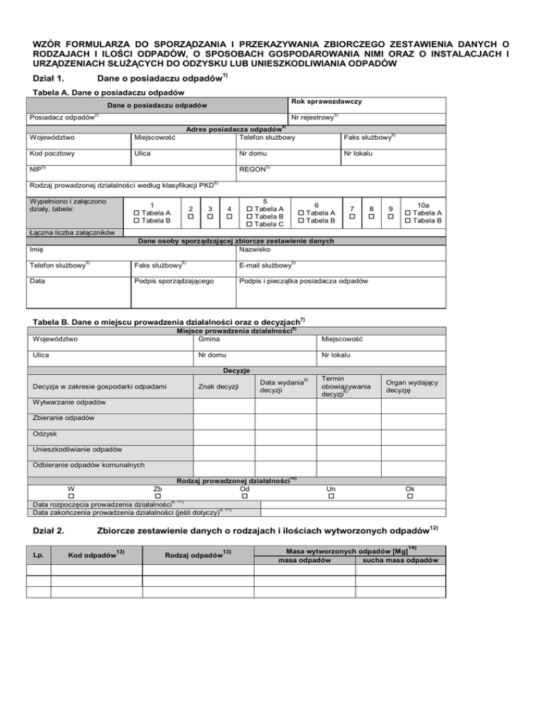
WZÓR FORMULARZA DO SPORZĄDZANIA I PRZEKAZYWANIA ZBIORCZEGO ZESTAWIENIA DANYCH O
RODZAJACH I ILOŚCI ODPADÓW, O SPOSOBACH GOSPODAROWANIA NIMI ORAZ O INSTALACJACH I
URZĄDZENIACH SŁUŻĄCYCH DO ODZYSKU LUB UNIESZKODLIWIANIA ODPADÓW
Dane o posiadaczu odpadów1)
Dział 1.
Tabela A. Dane o posiadaczu odpadów
Rok sprawozdawczy
Dane o posiadaczu odpadów
2)
3)
Posiadacz odpadów
Nr rejestrowy
4)
Województwo
Miejscowość
Kod pocztowy
Ulica
NIP
Adres posiadacza odpadów
Telefon służbowy
Nr domu
5)
REGON
Rodzaj prowadzonej działalności według klasyfikacji PKD
Wypełniono i załączono
działy, tabele:
5)
Faks służbowy
1
 Tabela A
 Tabela B
2

Nr lokalu
5)
6)
3

4

5
 Tabela A
 Tabela B
 Tabela C
6
 Tabela A
 Tabela B
7

8

9

10a
 Tabela A
 Tabela B
Łączna liczba załączników
Dane osoby sporządzającej zbiorcze zestawienie danych
Nazwisko
Imię
5)
5)
5)
Telefon służbowy
Faks służbowy
E-mail służbowy
Data
Podpis sporządzającego
Podpis i pieczątka posiadacza odpadów
7)
Tabela B. Dane o miejscu prowadzenia działalności oraz o decyzjach
8)
Miejsce prowadzenia działalności
Gmina
Województwo
Ulica
Miejscowość
Nr domu
Nr lokalu
Decyzje
9)
Decyzja w zakresie gospodarki odpadami
Znak decyzji
Data wydania
decyzji
Termin
obowiązywania
6)
decyzji
Organ wydający
decyzję
Wytwarzanie odpadów
Zbieranie odpadów
Odzysk
Unieszkodliwianie odpadów
Odbieranie odpadów komunalnych
10)
Rodzaj prowadzonej działalności
Od

W
Zb


9, 11)
Data rozpoczęcia prowadzenia działalności
9, 11)
Data zakończenia prowadzenia działalności (jeśli dotyczy)
Dział 2.
Lp.
Un

Ok

Zbiorcze zestawienie danych o rodzajach i ilościach wytworzonych odpadów12)
13)
Kod odpadów
13)
Rodzaj odpadów
14)
Masa wytworzonych odpadów [Mg]
masa odpadów
sucha masa odpadów