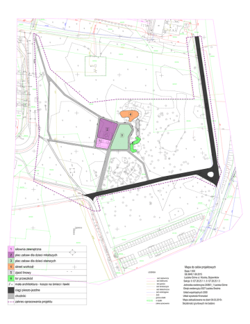
1 siłownia zewnętrzna 2 plac zabaw dla dzieci młodszych 3 plac

Transkrypt

1 siłownia zewnętrzna 2 plac zabaw dla dzieci młodszych 3 plac
k
g
k
g
eN A
3975/204
g
W
k146
W
k
k
k143
W
k
3251/204
k
t
ks110
W
k
3260/204
gA 20 0
eNA
k
k
gA200
k147
3037/204
3974/204
k
k271
g
2e N A
eN
4845/204
i
eNA
kd31
5
gA300
m5
k k270
k
ZUD 21
W
4eNA
k
k
2eNA
k
3 /2 0 1 3
Z U D 11
g
2co
4444/204
eNA
g100
w 110P E
k
k
w63PE
9 /2 0 1 4 g
3846/204
2eNA
gA80
4844/204
2eNA
eNA
k3
k300
3526/204
g
k60
t
3559/204
parking
k4
3259/204
3262/204
k
gg g
g
k150
g
g
g
g
śm
k148
g
k151
3263/204
k
k149
k152
3526/204
gA150
k153
k158
g
k154
k155
3697/204
k
g
3695/204
ów
Bojownik
3545/204
k157
4
k156
3034/203
3032/203
eN N
eN
2
5
k
3
3698/204
k164
niecz.
k159
k3 50
k
k
1
k
6
g
k
3703/204
3543/200
3544/204
k
3574/203
k
k
k
k
k
k
e
k
k
k
k
k
g
w16
0
k
10c
3541/200
k
R 150
k
3572/203
4217/204
1008
k
eN
k10
3540/200
eS
1 siłownia zewnętrzna
3539/200
2 plac zabaw dla dzieci młodszych
e
t
t
4026/200
3 plac zabaw dla dzieci starszych
t
t
t
t
t
t
t
t
t
t
t
t
t
t
t
t
t
t
t
t
t
t
t
t
t
t
t
t
E
t
t
t
t
t
t
k
t
t
t
k
e
t
k
t
t
t
4022/203
t
Mapa do celów projektowych
LEGENDA
6 tor przeszkód
mała architektura - kosze na śmieci i ławki
ciągi pieszo-jezdne
chodniki
zakres opracowania projektu
4021/203
eN
4024/204
k
w n ie c z
t
t
t
t
t
4 street workout
5 zjazd linowy
t
t
t
t
t
t
t
t
k11
3556/204
n
50
gA1
4842/200
t
t
t
t
4218/204
wAn
6562500.00
4020/203
t
t
t
t
t
t
t
t
e
t
w63P
eN
5555600.0 0
t
t
t
t
t
t
t
t
t
t
4022/203
sieć ciepłownicza
sieć elektryczna
sieć gazowa
sieć kanalizacyjna
sieć teletechniczna
sieć wodociągowa
ZUD
granica działki
nr działki
zakres opracowania
Skala 1:500
GE.6640.1.69.2015
Łaziska Górne ul. Wyrska, Bojowników
Sekcja: 6.127.28.25.1.1, 6.127.28.25.1.3
Jednostka ewidencyjna 240801_1 Łaziska Górne
Obręb ewidencyjny 0027 Łaziska Średnie
Układ wspołrzędnych 2000
Układ wysokości Kronsztad
Mapa zaktualizowana na dzień 09.03.2015r.
Służebności gruntowych nie badano
wAnn
0PE
g16
z.
niec
eNN
3558/204