Izba przyjec-laz npspr

Transkrypt

Izba przyjec-laz npspr
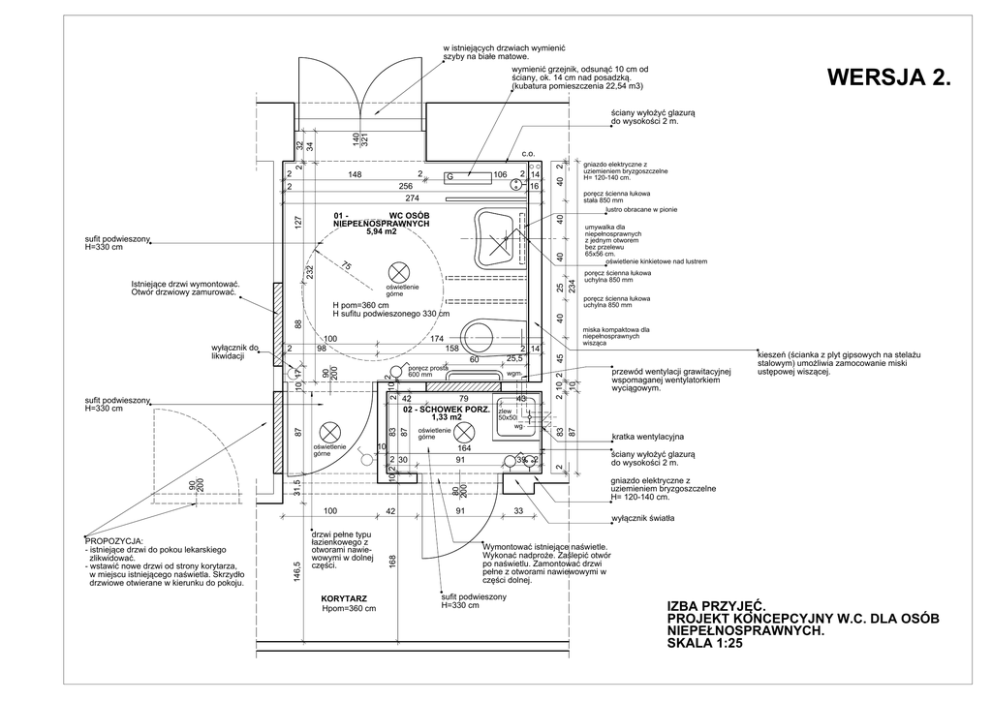
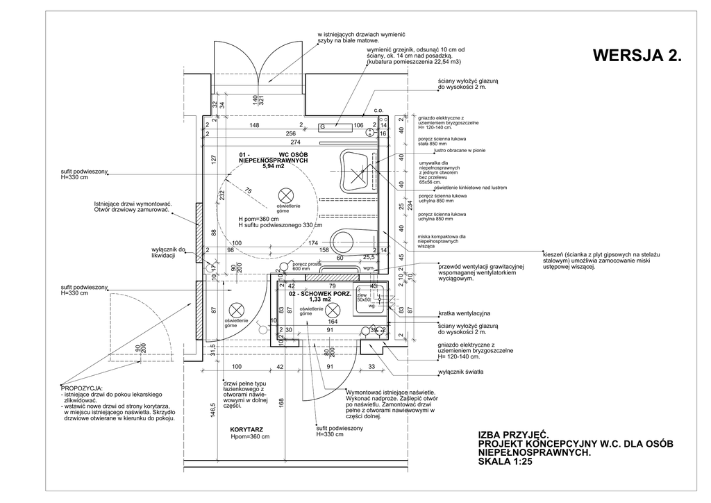
w istniejących drzwiach wymienić
szyby na białe matowe.
wymienić grzejnik, odsunąć 10 cm od
ściany, ok. 14 cm nad posadzką.
(kubatura pomieszczenia 22,54 m3)
WERSJA 2.
32
34
140
321
ściany wyłożyć glazurą
do wysokości 2 m.
c.o.
106
G
256
274
2
2 14
16
40
40
40
wgm
164
91
KORYTARZ
Hpom=360 cm
ściany wyłożyć glazurą
do wysokości 2 m.
gniazdo elektryczne z
uziemieniem bryzgoszczelne
H= 120-140 cm.
80
200
drzwi pełne typu
łazienkowego z
otworami nawiewowymi w dolnej
części.
42
kieszeń (ścianka z plyt gipsowych na stelażu
stalowym) umożliwia zamocowanie miski
ustępowej wiszącej.
kratka wentylacyjna
39 2
10 2
2 30
wg
oświetlenie
górne
2
83
87
43
79
42
02 - SCHOWEK PORZ. zlew
1,33 m2
50x50
przewód wentylacji grawitacyjnej
wspomaganej wentylatorkiem
wyciągowym.
10
poręcz prosta
600 mm
10
168
146,5
100
PROPOZYCJA:
- istniejące drzwi do pokou lekarskiego
zlikwidować.
- wstawić nowe drzwi od strony korytarza,
w miejscu istniejącego naświetla. Skrzydło
drzwiowe otwierane w kierunku do pokoju.
2 14
25,5
60
45
158
2
2 10
90
200
10 17
31,5
90
200
oświetlenie
górne
miska kompaktowa dla
niepełnosprawnych
wisząca
174
87
sufit podwieszony
H=330 cm
poręcz ścienna łukowa
uchylna 850 mm
poręcz ścienna łukowa
uchylna 850 mm
88
100
98
2
umywalka dla
niepełnosprawnych
z jednym otworem
bez przelewu
65x56 cm.
oświetlenie kinkietowe nad lustrem
25
234
oświetlenie
górne
2 10 2
232
75
H pom=360 cm
H sufitu podwieszonego 330 cm
wyłącznik do
likwidacji
poręcz ścienna łukowa
stała 850 mm
lustro obracane w pionie
83
87
127
01 WC OSÓB
NIEPEŁNOSPRAWNYCH
5,94 m2
sufit podwieszony
H=330 cm
Istniejące drzwi wymontować.
Otwór drzwiowy zamurować.
gniazdo elektryczne z
uziemieniem bryzgoszczelne
H= 120-140 cm.
2
2
148
40
2
2
33
91
wyłącznik światła
Wymontować istniejące naświetle.
Wykonać nadproże. Zaślepić otwór
po naświetlu. Zamontować drzwi
pełne z otworami nawiewowymi w
części dolnej.
sufit podwieszony
H=330 cm
IZBA PRZYJĘĆ.
PROJEKT KONCEPCYJNY W.C. DLA OSÓB
NIEPEŁNOSPRAWNYCH.
SKALA 1:25