D:\Tata X\Studnia Pyskowice\Rozdz. ŚN\6. Układ ogólny Instal siły

Transkrypt

D:\Tata X\Studnia Pyskowice\Rozdz. ŚN\6. Układ ogólny Instal siły
3x YHAKXS1x50
3x XUHAKXS1x50
3x XUHAKXS1x50
20kV
>80
6kV
Uziom FeZn30x4mm
Złącze probiercze
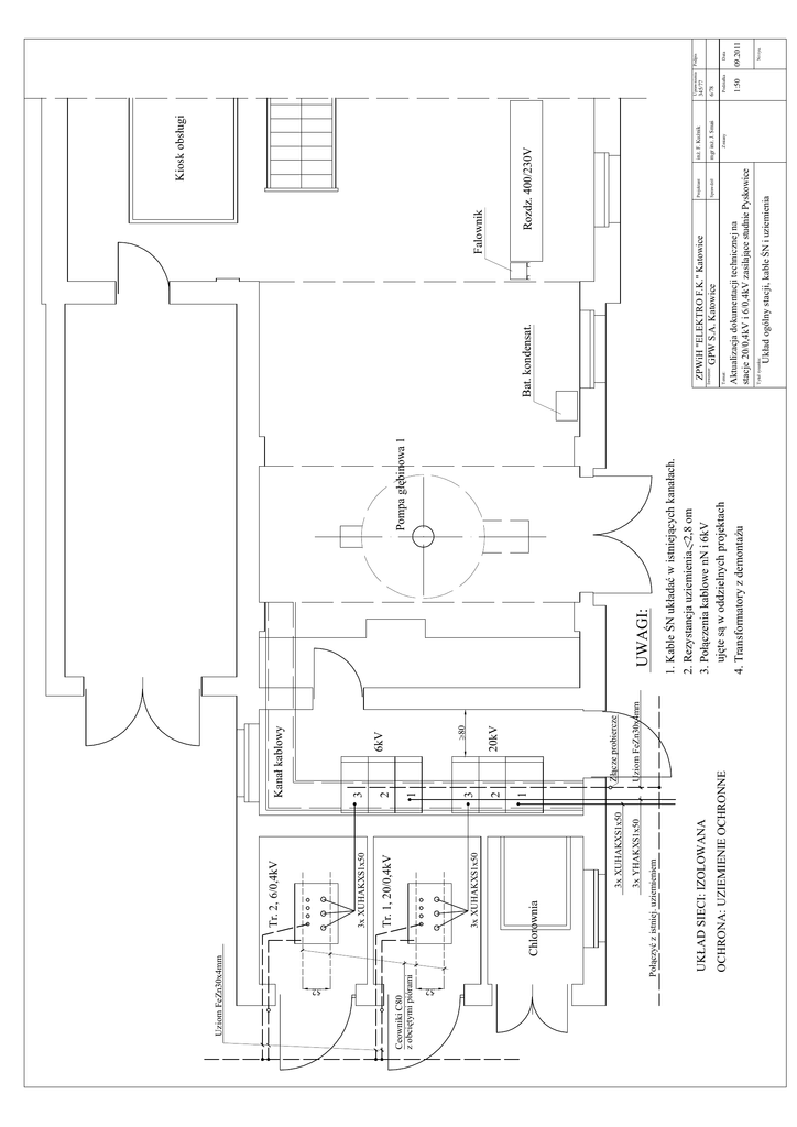
OCHRONA: UZIEMIENIE OCHRONNE
UKŁAD SIECI: IZOLOWANA
1
2
3
1
2
Tr. 1, 20/0,4kV
Połączyć z istniej. uziemieniem
Ceowniki C80
z obciętymi piórami
3
Kanał kablowy
3x XUHAKXS1x50
Tr. 2, 6/0,4kV
Chlorownia
Uziom FeZn30x4mm
52
52
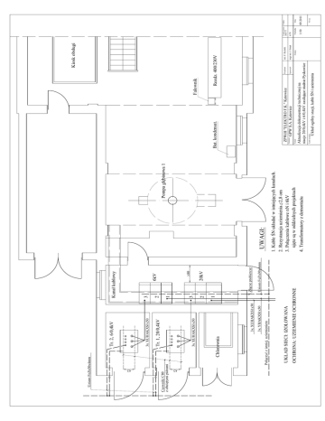
4. Transformatory z demontażu
2. Rezystancja uziemienia <2,8 om
3. Połączenia kablowe nN i 6kV
ujęte są w oddzielnych projektach
1. Kable ŚN układać w istniejących kanałach.
UWAGI:
Pompa głębinowa 1
Sprawdził
Projektant
Układ ogólny stacji, kable ŚN i uziemienia
Tytuł rysunku:
Zmiany
mgr inż. J. Smaś
inż. F. Kuźnik
Rozdz. 400/230V
Aktualizacja dokumentacji technicznej na
stacje 20/0,4kV i 6/0,4kV zasilające studnie Pyskowice
Temat:
ZPWiH "ELEKTRO F.K." Katowice
GPW S.A. Katowice
Inwestor:
Bat. kondensat.
Falownik
Kiosk obsługi
Uprawnienia
1:50
Podziałka
6/78
345/77
Nr rys.
09.2011
Data
Podpis