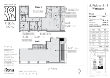
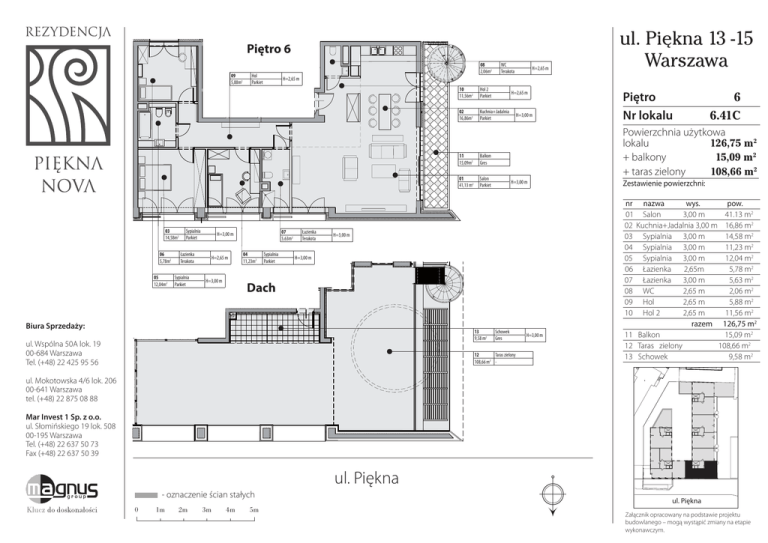
ul. Piękna 13 -15 Warszawa

Transkrypt

ul. Piękna 13 -15 Warszawa
Piętro 6
09
5,88m2
03
14,58m2
06
5,78m2
05
12,04m2
Sypialnia
Parkiet
Łazienka
Terakota
Sypialnia
Parkiet
08
2,06m2
Hol
Parkiet
07
5,63m2
H=3,00 m
04
11,23m2
H=2,65 m
H=2,65 m
H=3,00 m
H=2,65 m
WC
Terakota
ul. Piękna 13 -15
Warszawa
Sypialnia
Parkiet
Łazienka
Terakota
10
11,56m2
Hol 2
Parkiet
02
16,86m2
Kuchnia+Jadalnia
Parkiet
11
15,09m2
Balkon
Gres
01
41,13 m2
Salon
Parkiet
H=2,65 m
H=3,00 m
H=3,00 m
H=3,00 m
Dach
13
9,58 m2
ul. Wspólna 50A lok. 19
00-684 Warszawa
Tel. (+48) 22 425 95 56
6
6.41C
Powierzchnia użytkowa
lokalu 126,75 m2
+ balkony 15,09 m2
+ taras zielony
108,66 m2
H=3,00 m
Biura Sprzedaży:
Piętro
Nr lokalu
Schowek
Gres
12
Taras zielony
108,66 m2 -
H=3,00 m
Zestawienie powierzchni:
nr nazwa
wys.
pow.
01 Salon
3,00 m
41.13 m2
02 Kuchnia+Jadalnia 3,00 m 16,86 m2
03 Sypialnia 3,00 m
14,58 m2
04 Sypialnia 3,00 m
11,23 m2
05 Sypialnia 3,00 m
12,04 m2
06 Łazienka 2,65m
5,78 m2
07 Łazienka 3,00 m
5,63 m2
08 WC
2,65 m
2,06 m2
09 Hol
2,65 m
5,88 m2
10 Hol 2
2,65 m
11,56 m2
razem 126,75 m2
11 Balkon
15,09 m2
12 Taras zielony
108,66 m2
13 Schowek
9,58 m2
ul. Mokotowska 4/6 lok. 206
00-641 Warszawa
tel. (+48) 22 875 08 88
Mar Invest 1 Sp. z o.o.
ul. Słomińskiego 19 lok. 508
00-195 Warszawa
Tel. (+48) 22 637 50 73
Fax (+48) 22 637 50 39
ul. Piękna
- oznaczenie ścian stałych
0
1m
2m
3m
4m
5m
ul. Piękna
Załącznik opracowany na podstawie projektu
budowlanego – mogą wystąpić zmiany na etapie
wykonawczym.